鸿荣源珈誉玖玺(深圳宝安·鸿荣源珈誉玖玺)售楼中心电话|楼盘详情/户型/价格/学校

钦州楼市发布

2025-07-23 11:57:52

购房群

买房如何避坑,加入购房群,看看他们怎么说

立即进群

深圳宝安·鸿荣源珈誉玖玺售楼处电话:400-033-9667

鸿荣源珈誉玖玺售楼中心24小时电话:400 033 9667【营销中心】

温馨提示:看房请提前来电预约,谢谢配合!看房请提前来电预约,谢谢配合!(中介勿扰)

鸿荣源珈誉玖玺售楼处24小时电话:400 033 9667(预约咨询热线)现场详细解答丨项目介绍丨户型图丨在售房源丨特价房丨学校丨交通位置丨样板房丨小区图片丨交房时间丨周边配套

【“玖”系瑧品 湾区全能生活大城封笔钜著】

约248万㎡人居全能生活大城,稀缺人居,私藏大平层,湾区圈层进阶首选!

基本信息:

【占地面积】:约4.79万㎡

【园林面积】:约2.9万㎡

【户型产品】:约124-199㎡臻奢4房

【装修情况】:带装修交付

【产权年限】:70年(2022.5-2092.5)

【项目地址】:深圳·宝安大道和凤塘大道交汇(11号线塘尾站)

【玖仰·圈层舒居】:建面约124-199㎡臻奢4房,稀缺大平层

【玖遇·围合式艺术大园林】

约2.9万㎡舒居艺术大园林

🌿围合式布局,最大楼间距约161米

源于西班牙著名画家《记忆的永恒》为灵感的超现实主义花园,打造多重梦境空间

【玖奢·品质生活—6栋】

纯板楼设计,二梯二户,外立面部分采用铝板,尽显品质;

入户大堂采用大理石地面及花纹石材墙面;

奢阔3.15m层高,体验归家礼序,尽享圈层人生

【玖享·全龄双泳池 礼遇归家礼仪轴线】

配备全龄子母双泳池、亲子乐园、交流花园,构建全龄活动功能配套,主出入口列阵式礼仪轴线,体现归家仪式感,品质尊崇感

交通配套【玖畅·地铁直连 通达全城】

下楼即达地铁:直连地铁11号线,畅享都市便捷生活

地铁:家门口即11号线塘尾站,6站宝中、7站前海、9站后海、11站车公庙,便捷通达南山、福田核心片区

距离地铁口更近,更享便捷速达生活

商业配套【玖繁·百亿商业 咫尺繁华 】

下楼即享商业:百亿超级商圈,定鼎西部新中心

鸿荣源斥资打造又一湾区城市级购物中心

约50万㎡“湾区壹方”、约10万㎡“熊出没”主题华强广场

宝安首家山姆会员店、海岸城20万㎡商业,缤纷商业集聚

共筑百亿超级商圈,定义湾区城市商业新模式,定鼎西部新中心

教育配套

高质学府资源环绕,周边书香氛围浓厚

下楼即享学校:优教深外宝 目送式教育

项目周边04-09和12-01地块拟规划建设深外宝安学校(集团)南校区

深圳外国语学校(集团)宝安学校 深外优质教育环伺

压轴登场,精品之作,其核心价值体现出——稀缺。从地段到配套再到产品,是一种对稀缺资源的匹配。

首推的6#栋是169-199㎡的楼王单位,纯板楼设计,大开间的南北通透户型、梯户比是2梯2户,实现专梯入户!

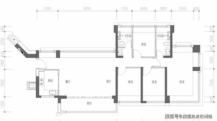
124平户型图

137平户型图

169平户型图

199平户型图

开发商售楼处热线:400 033 9667 【营销中心】

本文内容为广告推广,涉及房价或现有房源可能出现变更,请致电详询并以售楼部为准

免责声明:本文如无意中侵犯了某方的知识产权告知即删,部分内容图片可能来源于网络,无法核实其真实出处,如涉及侵权请联系本网站删除!!!

全部

相关资讯

报名成功
稍后会有专业的置业顾问联系您
返回楼盘

频道导航

返回首页

看房小程序

APP下载

电话拨通后,请您手动拨打分机号

确定拨打电话

电话号码:

分机号:(可能需要拨分机号)