最新消息:中粮悦章凤凰里售楼处电话:400-102-7502【营销中心电话】☎✔✔✔【售楼中心】「中粮悦章凤凰里」样板间已开放,户型图独家首发!专业一对一热情服务,让您用专业眼光去买房。
中粮悦章凤凰里售楼处电话:400 102 7502【营销中心电话】☎✔✔✔【中粮悦章凤凰里售楼中心】(包含楼盘简介,楼盘积分,房价,价格,楼盘地址,户型图,交通规划,备案价,项目配套,楼盘详情,售楼处电话,最新消息,最新详情,周边配套,最新进展等详情咨询)
温馨提示:网上售楼中心〢预约可享内部优惠〢欢迎来电恭迎品鉴〢

【美好生活新悦章丨中粮悦章·凤凰里项目笔记】 前海轴芯·立新湖畔·悦系新章 建面约84-128㎡湖景美宅,载誉归来
中粮悦章凤凰里项目基本信息--
开发商:中粮地产
占地面积:3.3万㎡;总建面:21.2万㎡
总户数:1426户(可售758户,保障房668户)
面积:84㎡3房1.5卫,98㎡3房2卫,114-128㎡4房2卫。
项目全南向7栋围合布局,包括住宅、8600㎡特色社区商业及12班幼儿园配套,精装修交付。社区周边配套完善,临近立新湖公园,交通便利,距离地铁11号线桥头站约700米。教育资源丰富,社区内规划有幼儿园,周边多所学校环绕。整体品质较高,适合追求品质生活的购房者。
中粮悦章凤凰里区域地段
深圳向西发展:沿罗湖-福田-南山-前海及宝安的发展脉搏,2021年前海8倍扩容,深圳向西势不可挡。三重国家战略:前海一级辐射区、会展海洋城、空港新城三重国家级战略叠加,“黄金内湾”崛起。
一带两心四片:未来宝安以“一带两心四片”为发展布局,福海既是“临空经济总部带”黄金节点,又是西部城市中心的重要组成部分。千亿产业集群:区域内汇聚“环立新湖科创总部区”、“大族激光智能制造产业基地”、“平安高科技城”、“深港先进制造业合作区”四大千亿产业集群,未来将虹吸全市高智人才
中粮立新湖产业统筹片区:立新湖位于宝安北部核心地带,紧邻宝安大道和107国道,近深圳宝安国际机场和国际会展中心、机场东枢纽,和凤凰山森林公园、福永河共同构成宝安山海连城的主要廊道,是“黄金内湾”的“流量入口”,也是大湾区具有独特空间价值的区域。
交通配套
中粮悦章.凤凰里位于深圳市宝安区大洋路与塘新路交汇处西侧,距离地铁11号线桥头站约600米。交通地铁:项目与11号线桥头地铁站直线距离约600米,临近宝安大道和广深公路,无论是地铁出行还是自驾都比较便捷。
商业配套
项目自带1.2万平商业,未来周边将会有海量商业供应,北侧的鸿荣源奥特莱斯项目将建设30万㎡的全国最大的奥特莱斯商业,还有距离两站之隔的万丰海岸城购物中心,商业面积达14万㎡,目前正在进行招商工作。
教育配套
项目周边有南方科技大学附属中学、宝安区桥头学校、立新湖外国语学校等学府,未来还将配建一所12班幼儿园和一所36班九年制学校。
小区品质
经典围合式布局,“醒在花园里”主题园林,打造独具特色的度假型花园酒店社区
自然轻奢的品质感归家入口、深圳第一座“花园”主题泳池、全季节会客廊架、自然友好型儿童活动天地、共享休闲运动场地、四大主题架空层、独立的宠物花园等节点空间,为业主营造“下楼即度假”的全新生活体验,结合酒店品质的景观感受,让业主在家即可实现“酒店理想”。
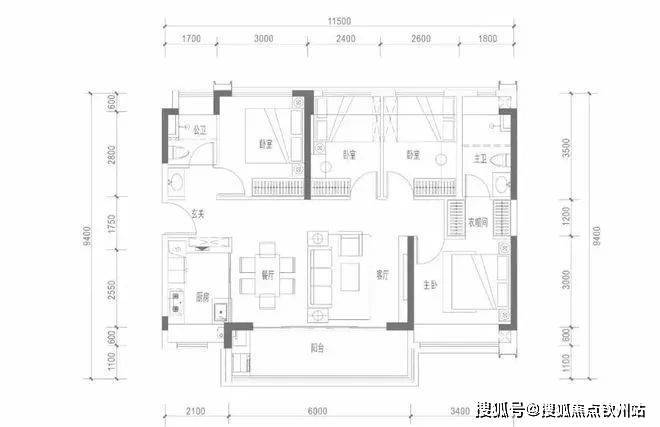
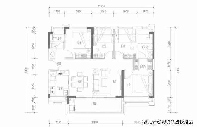
项目4栋商品房户型排布一致,东南和西南朝向,属于比较常见的蝶状塔楼设计,分布了84㎡及98㎡的三房两厅两卫,114㎡及128㎡的四房两厅两卫。
户型设计户户南向,采光和日照不错,得房率均在78%左右,属于目前市场较高水平
84㎡竖厅三房两厅两卫,动静分区做的比较好,主卧展示做的1.5卫设计,实则根据需求多加出一个淋浴间。
98㎡竖厅正规三房两厅两卫,6.5M景观大阳台贯穿次卧,采光和休闲舒适度高。
114㎡横厅四房两厅两卫,属于比较常见的设计方案,环窗飘窗设计增加了空间利用,但餐厨由于建筑结构也会有部分影响。
128㎡通透四房两厅两卫,通风及采光日照好,近7M景观大阳台,部分户型看湖景,居住空间大、景观舒适度高。
✅中粮悦章凤凰里:400-102-7502【24小时预约热线】
✅中粮悦章凤凰里售楼处电话:400-102-7502【来电可享受优惠】
✅过来售楼中心看房请提前预约,可尊享内部特惠,价格包您满意!
✅为您安排楼盘内场专业销售人员一对一接待服务!让你买的放心,住的舒心!
本文内容为广告推广,涉及房价或现有房源可能出现变更,请致电详询并以售楼部为准
免责声明:本文如无意中侵犯了某方的知识产权告知即删,部分内容图片可能来源于网络,无法核实其真实出处,如涉及侵权请联系本网站删除!!