中粮悦章凤凰里楼盘详情/户型/价格/学区/地址/配套@售楼处

钦州楼市发布

2025-06-13 11:09:10

购房群

买房如何避坑,加入购房群,看看他们怎么说

立即进群

中粮悦章凤凰里售楼处电话:400-066-0916【售楼处已认证】

中粮悦章凤凰里开发商电话:400-066-0916【售楼处已认证】

✅ 为您安排楼盘现场销售全程接待并讲解,给您更贴心的看房体验!

中粮悦章凤凰里营销中心电话:400-066-0916【售楼处已认证】

中粮悦章凤凰里展示中心电话:400-066-0916【售楼处已认证】

☞☞Vip贵宾置业==欢迎来电预约尊享内部折扣===匠心钜制恭迎品鉴☜☜

✅ 过来参观样板房烦请记得提前来电预约!

项目基本信息

【项目名称】中粮·凤凰里

【占地面积】约3.3万㎡

【建筑面积】约21.2万㎡

【推售产品】约84㎡-128㎡3房-4房

【交付标准】毛坯

【交房时间】2025.3

【产权年限】70年

【房产性质】住宅

【可售户数】758套

【车位数】1564个(1:1.096)

【使用率】78%

【容积率】4.62

【绿化率】40%

【梯户比】3T6户

【开发商】大悦城控股集团有限公司

【物业公司】中粮物业

【项目地址】深圳·福永·11号线桥头站旁,塘新路与大洋路交汇处.

项目效果图:

园区环境

万坪“醒在花园里”主题园林,打造度假型花园社区

自然轻奢的品质感归家入口、全龄“花园”主题泳池、全季节会客廊架、自然友好型儿童活动天地、共享休闲运动场地、独立的宠物花园等节点空间,为业主营造“下楼即度假”的全新生活体验,结合酒店品质的景观感受,让业主在家即可实现“酒店理想”。

项目价值

立新湖公园,日均人流量超5000人

环立新湖板块,唯一在售地标社区临街商铺

距立新湖公园直线距离约400米,被誉为“深圳西部最美的公园”,公园日均人流量超5000人,超强人气汇聚,将成为立新湖畔活力时尚商业新地标。

环立新湖板块近年来无新地块供应入市,悦章·凤凰里作为环立新湖板块最后的在售一手社区商铺,稀缺价值不言而喻。

六大校园环伺 集聚超6000人师生资源

项目300米范围内,自带12班幼儿园/大洋童心幼儿园/凤凰里幼儿园/24班立新湖小学/12班立新湖中学/福桥高级中学/景山实验学校 环伺,集聚约6000稳定师生资源,覆盖上万户家庭,定向吸附钱潮涌动。

凤凰里一二期,1.2万常住人群

集聚成熟住区,高阶消费家庭

周边聚集中粮凤凰里、大洋花园、景山花园、凤凰世纪、凤城花园等成熟小区,常住居民约达5w+;

凤凰里一二期社区2900户,共计约12000名住户,稳定客群为商铺提供稳定的现金流。

交通配套

中粮悦章.凤凰里位于深圳市宝安区大洋路与塘新路交汇处西侧,距离地铁11号线桥头站约600米。交通地铁:项目与11号线桥头地铁站直线距离约600米,临近宝安大道和广深公路,无论是地铁出行还是自驾都比较便捷。

商业配套

项目自带1.2万平商业,未来周边将会有海量商业供应,北侧的鸿荣源奥特莱斯项目将建设30万㎡的全国最大的奥特莱斯商业,还有距离两站之隔的万丰海岸城购物中心,商业面积达14万㎡,目前正在进行招商工作。

教育配套

项目周边有南方科技大学附属中学、宝安区桥头学校、立新湖外国语学校等学府,未来还将配建一所12班幼儿园和一所36班九年制学校。

生态配套

目前周边只有南侧的300米与凤凰山立新湖公园,距离约6直线距离约4公里。

区域价值

深圳前海 国家战略:沿罗湖-福田-南山-前海及宝安的发展脉搏,2021年前海8倍扩容,深圳向西势不可挡。前海一级辐射区、会展海洋城、空港新城三重国家级战略叠加,“黄金内湾”崛起。

一带两心四片:宝安以“一带两心四片”为发展布局,福海既是“临空经济总部带”黄金节点,又是西部城市中心的重要组成部分。

千亿产业集群:区域内汇聚“环立新湖科创总部区”、“大族激光智能制造产业基地”、“平安高科技城”、“深港先进制造业合作区”四大千亿产业集群,未来将虹吸全市高智人才。

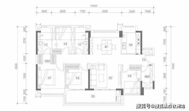
【中粮悦章·凤凰里户型图】

约84㎡三房两厅1.5卫

约98㎡三房两厅两卫

约114㎡四房两厅两卫

约128㎡四房两厅两卫

中粮悦章凤凰里

中粮悦章凤凰里售楼处电话:400-066-0916【售楼处已认证】

中粮悦章凤凰里开发商电话:400-066-0916【售楼处已认证】

中粮悦章凤凰里营销中心电话:400-066-0916【售楼处已认证】

中粮悦章凤凰里展示中心电话:400-066-0916【售楼处已认证】

☞☞Vip贵宾置业==欢迎来电预约尊享内部折扣===匠心钜制恭迎品鉴☜☜楼盘最新介绍:备案价、折扣、学区、地铁、交通、

户型图、特价房、优缺点、得房率、优惠活动、小区图片、开盘时间、交房时间、周边配套、最新详情等咨询。

全部

相关资讯

报名成功
稍后会有专业的置业顾问联系您
返回楼盘

频道导航

返回首页

看房小程序

APP下载

电话拨通后,请您手动拨打分机号

确定拨打电话

电话号码:

分机号:(可能需要拨分机号)