…东方凤雅名苑……东方凤雅名苑…

开发商:深圳市东方尊峪房地产开发有限公司
物业:惠名物业(服务费6元/㎡·月,车位比1:1.5)
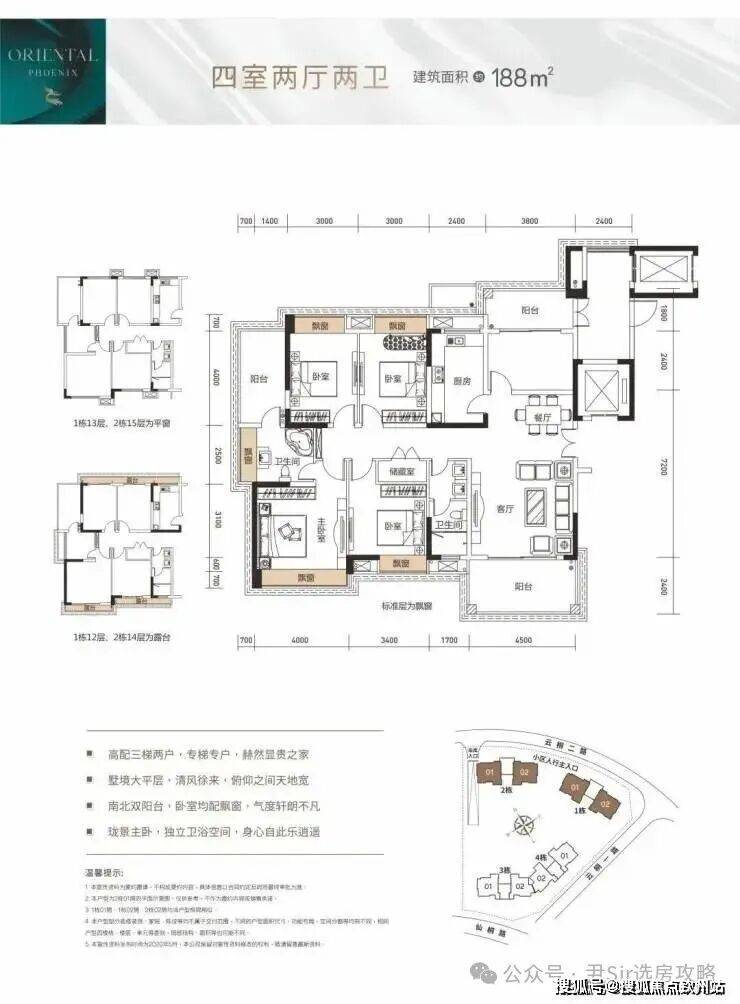
定位:4栋13-24层低密住宅,主推“纯板式大平层+现房+梧桐山景观”概念
价格:
备案均价
:9万/㎡(含8000元/㎡精装),促销后最低单价7.34万/㎡起
总价范围
:1200万-1860万(166-188㎡四房)
体量:总建面4.92万㎡,容积率3.5,绿化率30.14%
【交通配套】
东方凤雅名苑位于莲塘街道云桐一路1号。地铁:2号线东延线莲塘站;公交:M468路:莲馨家园、罗湖区中医院、国威路东;M207路:御景兰庭、畔山路;高速:莲塘口岸东部过境高速,连接深港。
【教育配套】莲塘不算大,但学校是真的多,莲南小学、莲塘小学、鹏兴实验学校,离家就几百步的距离。
其中 罗湖外语学校,创建于1999年,初中、高中学段教育学府。
以“外语优势、多元发展”为办学思路,培养全面发展的国际化人才,荣获广东省一级学校,第一批国家级示范高中,广东省重点中学。
学校综合实验班本科升学率100%,重本升学率75.45%, 连续十年被评为深圳市高考先进单位、高考卓越奖,凭借着优越升学率,罗湖外国语让大家知道了他的名气!
商业楼盘下面就是菜市场,东方超市,尖禾酒店,出门有华润万家,永丰百货,1000米左右有万象汇,可以满足基本的生活需求。到达罗湖东门、国贸商圈也仅是几个地铁站的距离,亦可共享罗湖成熟的商业配套。
【规划设计】
东方凤雅名苑项目位于天然氧吧梧桐山南麓,规划有四栋高层住宅,呈围合式布局,165㎡-188㎡4房,1、2栋3梯2户,3、4栋2梯2户,三面采光通风,低密舒居大宅,中心规划有新东南亚度假风情园林,是融合自然与现代的典雅高档生态住区。低密舒居:大宅尺度名仕生活纯板式,低容积率·生活尽善尽美纯专梯,三梯两户,专梯入户,私享超大入户花园纯板式结构,南北通透接纳更多梧桐绿意。