深业云筑(售楼处)深业云筑首页网站-深业云筑欢迎您-楼盘详情 @售楼处/样板间/价格/户型丨容积率-小区环境丨售楼处地址丨营销中心热线

钦州楼市发布

2025-06-07 11:53:07

购房群

买房如何避坑,加入购房群,看看他们怎么说

立即进群

✨✨✨✨欢迎进入【深业云筑】首页网站✨✨✨✨

✅《深业云筑》售楼处电话:☎400-112-1828【售楼处已认证☎】

✅ 过来参观样板房请记得提前来电预约!✨✨

✅《深业云筑》开发商电话:☎400-112-1828【售楼处已认证☎】

✅为您安排楼盘现场销售全程接待并讲解,给您更贴心的看房体验!

☞☞Vip贵宾置业==欢迎来电预约尊享内部折扣===匠心钜制恭迎品鉴☜☜

✅ 售楼部热线, 项目介绍,包括楼盘简介、售楼处电话、营销中心位置、房价、价格、折扣学校、地铁、交通、户型图、备案价、特价房、优缺点、得房率、优惠活动、小区环境、开盘时间`交房时间、售价、容积率 ,单价

👉光明买房必看#深业云筑

保价抄底💥最佳时机🔻

———————————————

✨32万㎡低密醇熟生活大城

🔥即买即住·学府旁国企现楼

🏠建面约87-143㎡云系臻品

———————————————

1.国企现楼,品质看得见,更放心

2.32万方纯居品质全能大城,更宜居

3.自带公立幼儿园,一路之隔教科院实验小学

4.临近15万㎡光明大仟里,天虹等多商业齐聚

5.6/13号线双地铁口+南光/龙大双高速加持

6.家门口三大公园,出入享私家生态盛境

7.双栖泳池+全龄品质园林,1:1.18超高车位比

8. 使用率超80%,33层低密纯居住区

项目基础信息

【项目名称】深业云筑

【占地面积】约4.9万㎡

【建筑面积】约32.7万㎡

【推售产品】建面约87-143㎡3房-5房

【交付标准】(简装)

【交房时间】已经交楼,现房发售

【产权年限】70

【房产性质】住宅

【可售套数】751套

【车位数】1520个

【容积率】4.33

【绿化率】约40%

【梯户比】2梯4户 /3梯6户

【开发商】深业鹏基南方(集团)有限公司

【物业公司】深业集团物业管理有限公司

【项目地址】深圳市光明区悦安路与芳园路交汇处

深业云筑位于光明区公明街道,南临公明南环大道,原为石家村里的工业园区旧改,曾用名是深业信宏城。

项目总占地约5万方,建筑面积约32万方,绿化率30%,容积率4.572,整体分为两期开发,以住宅为主,辅以少量底层商业。

项目分两期开发

周边配套

学校配套:深业云筑1期有1所12班幼儿园,根据2024年光明区教育局最新的学区划分,小学学区划分在深圳教科院实验小学(光明)、秋硕小学、龙豪小学、光明区实验学校小学部,初中学区划分在光明第二中学、光明区实验学校初中部。

深圳教科院实验小学(光明),在2024年的录取积分是第4类62.25分,属于非光明区户籍+学区租房生源,如果买了商品房,只有是深圳户籍是能保证就读的。

地铁配套:深业云筑2期距离在建的13号地铁线二期“公明广场站”距离1.1公里,“新庄站”(以前的公明南站)距离800米左右,另外深业云筑2期规划有公交首末站,可以快速接驳地铁站;现有的6号地铁线“公明广场站”距离有1.6公里,步行需要24分钟。

深圳13号线作为光明区的生命线,也是深圳3条快线之一,纵贯宝安区、光明区、南山区,将重新定位光明科学城通往南山核心区域的距离。

商业配套:深业云筑自带社区底商,距离约1.1公里就是公明最大的大仟里购物中心,也是光明首个一站式大型购物中心,光明人消费必选打卡地之一,另外距离约1.6公里范围内还有天虹商场,百佳华商场等商业体。

户型鉴赏

89㎡的3房2厅1卫,E2户型,设计的是竖厅格局,客厅3.6米开间,LDKB一体化设计,3个卧室分别做到了3.2米/3米/2.8米的宽度,L型厨房还带1个小生活阳台,卫生间三段式分离,得房率:79.89%(不含赠送),阳台有东南/西南或正南朝向。

89㎡的3房2厅1卫,E3户型,仅4栋/5栋A单元/7栋的03号房才有,设计的是竖厅格局,客厅3.6米开间,LDKB一体化设计,3个卧室分别做到了3.2米/3米/2.8米的宽度,二字型厨房还带1个小生活阳台,卫生间三段式分离,得房率:79.89%(不含赠送),阳台都是西南朝向。

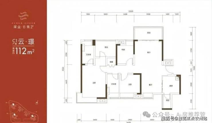
112㎡的4房2厅2卫,C1户型,仅4栋/5栋A单元/7栋的05号房才有,设计的是竖厅南北通透格局,客厅3.9米开间,餐客厅一体化设计,4个卧室分别做到了3.4米/3米/2.9米/2.4米的宽度,U型厨房还带1个小生活阳台,卫生间干湿分离,得房率:79.88%(不含赠送),阳台主朝西南向。

112㎡的4房2厅2卫,C2户型,仅5栋A单元/7栋的06号房才有,设计的是竖厅南北通透格局,客厅3.9米开间,餐客厅一体化设计,4个卧室分别做到了3.4米/3米/2.9米/2.4米的宽度,U型厨房,卫生间干湿分离,得房率:79.89%(不含赠送),阳台主朝东南向。

128㎡的4房2厅2卫,B1户型,仅5栋B单元的03号房才有,设计的是竖厅格局,南北通透双阳台,客厅4.2米开间,餐客厅一体化设计,4个卧室分别做到了3.6米/3米/3米/3米的宽度,U型厨房,卫生间干湿分离,得房率:79.71%(不含赠送),大阳台主朝正南向。

128㎡的4房2厅2卫,B4户型,仅4栋的06号房才有,设计的是竖厅南北通透格局,客厅4.2米开间,餐客厅一体化设计,4个卧室分别做到了3.6米/3米/3米/3米的宽度,U型厨房,卫生间干湿分离,得房率:80.14%(不含赠送),阳台主朝东南向。

143㎡的5房2厅2卫,A1户型,设计的是竖厅格局,南北通透双阳台,客厅4.5米开间,餐客厅一体化设计,5个卧室分别做到了3.7米/3.2米/2.9米/2.9米/2.5米的宽度,U型厨房,卫生间干湿分离,得房率:80.4%(不含赠送),阳台主朝正南向。

✅《深业云筑》售楼处电话:☎400-112-1828【售楼处已认证☎】

✅温馨提示:看房请提前来电预约,谢谢配合!✨✨

✅《深业云筑》开发商电话:☎400-112-1828【售楼处已认证☎】

☞☞Vip贵宾置业==欢迎来电预约尊享内部折扣===匠心钜制恭迎品鉴☜☜

✅楼盘最新介绍:备案价、折扣、学区、地铁、交通、户型图、特价房、优缺点、得房率、优惠活动、小区图片、开盘时间、交房时间、周边配套、最新详情等咨询

✅免责:本文部分内容来自网络,如有侵权,请联系删除!!!

全部

相关资讯

报名成功
稍后会有专业的置业顾问联系您
返回楼盘

频道导航

返回首页

看房小程序

APP下载

电话拨通后,请您手动拨打分机号

确定拨打电话

电话号码:

分机号:(可能需要拨分机号)