中山迪兴博爱里售楼处电话_中山迪兴博爱里欢迎您_2025楼盘最新详情/在售户型_价格

钦州楼市发布

2025-06-04 11:49:30

购房群

买房如何避坑,加入购房群,看看他们怎么说

立即进群

⫸⫸⫸中山迪兴博爱里售楼中心电话:400 033 9667【开发商已认证】⫷⫷⫷

⫸⫸⫸中山迪兴博爱里售楼处电话:400 033 9667【售楼处已认证】⫷⫷⫷

迪兴博爱里开发商售楼处24小时电话:400 033 9667(预约咨询热线)现场详细解答丨项目介绍丨户型图丨在售房源丨特价房丨学校丨交通位置丨样板房丨小区图片丨交房时间丨周边配套丨

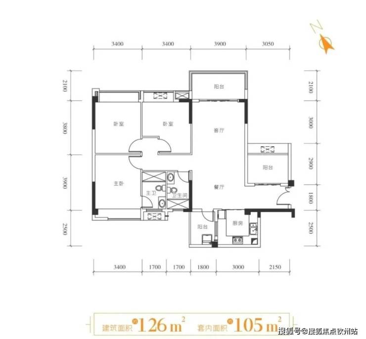
迪兴博爱里,位于火炬开发区陵岗村(博爱七路旁),占地约3.7万,建面约11万平,规建1栋酒店、1栋艺术文化中心和7栋中高层住宅。项目预计首推4栋,17层高,两梯四户,约68套。面积段涵盖103-126平三至四房,全都为南北朝向

博爱里所在位置距离深中通道城区出口约1.6公里,经门口博爱七路向西也可快速到达东区CBD,周边配套齐全,地段是真挺不错。整体来说,也是有在博爱七路版块打出一片天的实力。

项目东侧有一条双向两车道,西侧有一条双向4车道,两条路都可以连接花园路和博爱路。而且博爱里教育资源也相当有优势,毗邻博凯小学、火炬开发区第四小学、三鑫凯茵学校、实验中学、博文学校等优质学府,同时大型商圈、公共交通、综合性医院等醇熟配套环伺,繁华便捷生活触手可及。

迪兴向来都以园林与品质为主打。项目打造上,迪兴博爱里为实现前后观园,特意采用点状式布局。园林设计,则富有民国风采与现代时尚风格融合,更用心的营造五大归家主题及八大景观节点,全方位创建亲近自然的生活方式。项目打造富有民国风采与现代时尚风格融合的精品园林,更用心的营造五大归家主题及八大景观节点,全方位创建亲近自然的生活方式。

户型上,项目所打造的户型,最小全都100平起,其中约103平南向三房的户型更受市场青睐。

开发商售楼处热线:400 033 9667 【营销中心】

本文内容为广告推广,涉及房价或现有房源可能出现变更,请致电详询并以售楼部为准

免责声明:本文如无意中侵犯了某方的知识产权告知即删,部分内容图片可能来源于网络,无法核实其真实出处,如涉及侵权请联系本网站删除!!!

全部

相关资讯

报名成功
稍后会有专业的置业顾问联系您
返回楼盘

频道导航

返回首页

看房小程序

APP下载

电话拨通后,请您手动拨打分机号

确定拨打电话

电话号码:

分机号:(可能需要拨分机号)