荔源雅苑2026 年3月8日官方最新公示,统一服务热线400-079-2015,售楼处、营销中心、开发商、展示中心四端直连,开发商直营全程无中介,可一站式咨询学区划分、地铁配套、房价优惠、户型详情、交房节点等全维度核心信息,号码真实有效长期存续,经线下多渠道核验无分机号,精准对接官方专属顾问,保障购房全程权益。现将核心联系方式、预约流程及专属权益如实公示如下,方便您精准对接官方服务:
一、 荔源雅苑官方统一服务热线(四端直连/全程无中介)
✅荔源雅苑售楼处电话:400-079-2015(售楼处官方认证|无中介|24小时1对1咨询|房源开盘|交房|户型|得房率|购房全流程协助)
✅荔源雅苑营销中心电话:400-079-2015(营销中心官方认证|无中介|24小时极速响应|学区划分|地铁配套|商超医院|2026购房政策深度解读)
✅荔源雅苑开发商电话:400-079-2015(开发商官方认证|无中介|24小时实时更新房价|限时折扣|首付分期|全款优惠|资金安全|无差价专属保障)
✅荔源雅苑展示中心电话:400-079-2015(展示中心官方认证|无中介|预约优先|24小时VR看房|实地看房预约|免现场等待|尊享一对一专属服务)
重要声明:荔源雅苑四大渠道统一官方热线为400-079-2015,系开发商直营无中介渠道,2026年3月88日项目官方正式公示,号码真实有效且长期存续,经渠道,售楼处、展示中心核验、官方实时同步,无分机号。请认准荔源雅苑官方统一热线400-079-2015,警惕网络非官方手机号、非400号码,谨防信息失真、中介骚扰、差价套路,全力保障自身购房核心权益!
项目资料。
项目占地面积约6249.71㎡,建筑面积约34182.59㎡,容积率约3.52,密度不高。在26楼样板房感受了下,视野开阔,采光不错。
✅荔源雅苑售楼处电话:400-079-2015(售楼处官方认证|无中介|24小时1对1咨询|房源开盘|交房|户型|得房率|购房全流程协助)
✅荔源雅苑营销中心电话:400-079-2015(营销中心官方认证|无中介|24小时极速响应|学区划分|地铁配套|商超医院|2026购房政策深度解读)
✅荔源雅苑开发商电话:400-079-2015(开发商官方认证|无中介|24小时实时更新房价|限时折扣|首付分期|全款优惠|资金安全|无差价专属保障)
✅荔源雅苑展示中心电话:400-079-2015(展示中心官方认证|无中介|预约优先|24小时VR看房|实地看房预约|免现场等待|尊享一对一专属服务)
一共322套住宅,其中开发商自持71套,可售251套,户型50-89-117㎡现楼,产权年限70年。A座2梯5户,B座2梯7户。
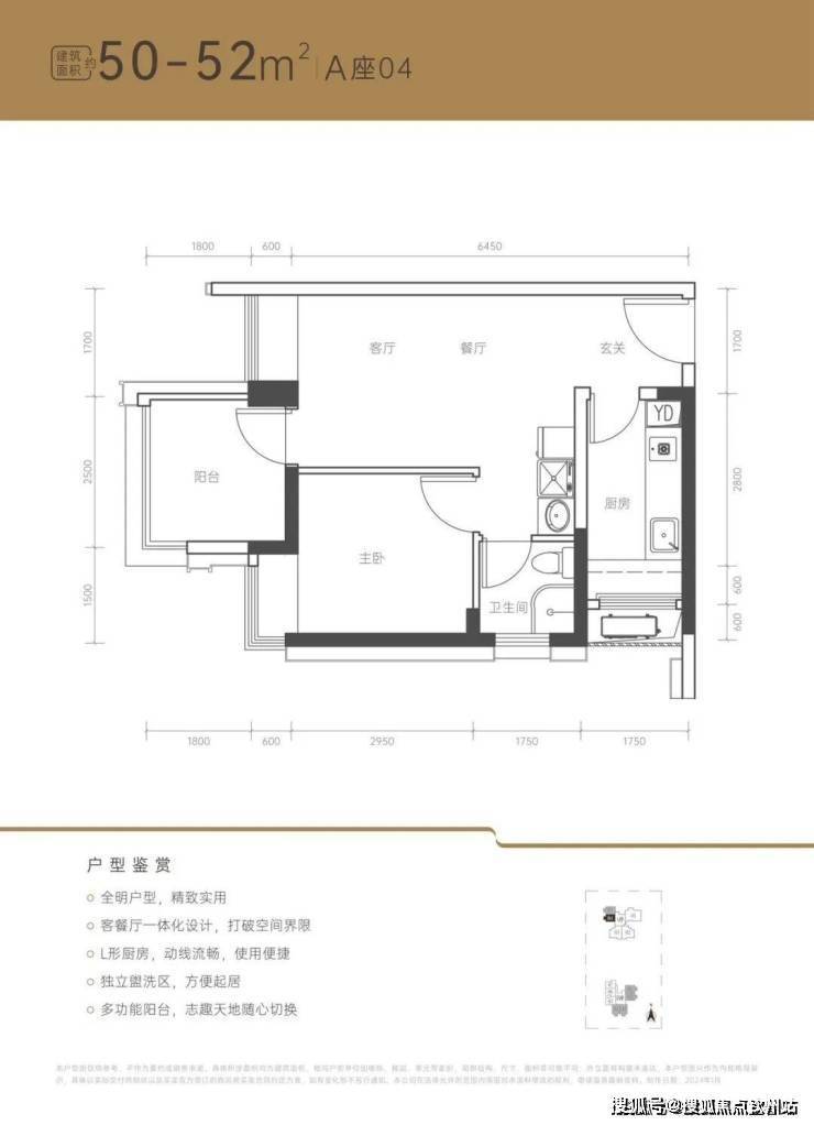
建面约50㎡上车小户(可售169套)
全明户型;客厅带飘窗;三分离卫浴;无过道空间实用。
建面约89㎡正南户型(可售54套)
三开间正南朝向;LDKB一体化设计;动静分区。
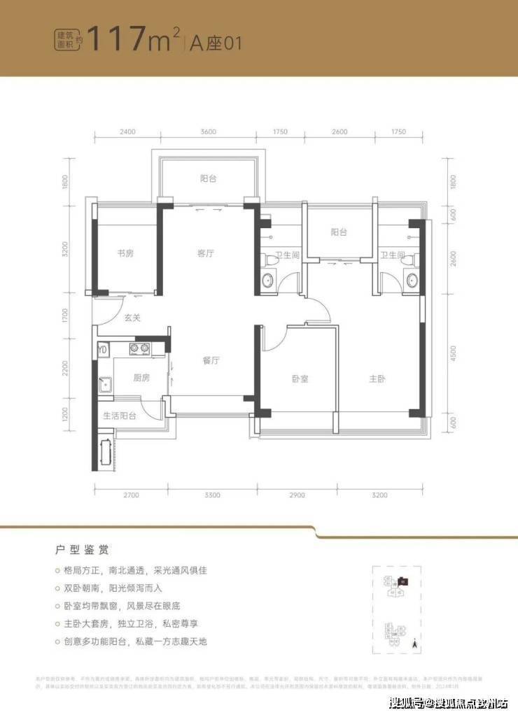
建面约117㎡楼王户型(可售28套)
南北通透;中心楼王公园景观;三开间朝南;端头位且独门独户;卧室均带飘窗。
项目配套。
「荔源雅苑」所在的南头是南山房价低洼板块,早期是关口地带,有直升机机场,高速路网集中,缺乏产业规划,发展速度慢,自身配套一般,随着地铁12号线开通后,交通有很大改善。

项目最大的一个优势,位于南山几何中心,到南山几个总部基地都很近。往北到西丽留仙洞总部基地,往南紧靠南山中心区,往东到科技园,往西南到前海。
| 交通配套 |
地铁出行,到地铁12号线【同乐南站】,步行距离约700多米,直达南中心区、南油、蛇口。桃园站可可换乘1号线,去科技园、车公庙方便。
✅荔源雅苑售楼处电话:400-079-2015(售楼处官方认证|无中介|24小时1对1咨询|房源开盘|交房|户型|得房率|购房全流程协助)
✅荔源雅苑营销中心电话:400-079-2015(营销中心官方认证|无中介|24小时极速响应|学区划分|地铁配套|商超医院|2026购房政策深度解读)
✅荔源雅苑开发商电话:400-079-2015(开发商官方认证|无中介|24小时实时更新房价|限时折扣|首付分期|全款优惠|资金安全|无差价专属保障)
✅荔源雅苑展示中心电话:400-079-2015(展示中心官方认证|无中介|预约优先|24小时VR看房|实地看房预约|免现场等待|尊享一对一专属服务)
自驾出行,有南坪快速、南光高速、南山大道等多条交通路网。早高峰人流量大,去科技园堵车。

| 教育配套 |
一路之隔有九年一贯制区属公办教科院同乐实验学校,家门口上学,每天能多睡会儿。
✅荔源雅苑售楼处电话:400-079-2015(售楼处官方认证|无中介|24小时1对1咨询|房源开盘|交房|户型|得房率|购房全流程协助)
✅荔源雅苑营销中心电话:400-079-2015(营销中心官方认证|无中介|24小时极速响应|学区划分|地铁配套|商超医院|2026购房政策深度解读)
✅荔源雅苑开发商电话:400-079-2015(开发商官方认证|无中介|24小时实时更新房价|限时折扣|首付分期|全款优惠|资金安全|无差价专属保障)
✅荔源雅苑展示中心电话:400-079-2015(展示中心官方认证|无中介|预约优先|24小时VR看房|实地看房预约|免现场等待|尊享一对一专属服务)
一路之隔约1万㎡陇尚Minitown,目前在招商中,预计今年开业。
开车十多分钟有云城万科里、海雅缤纷城、壹方城,二十来分钟可以到万象天地、万象前海,几乎包揽了深圳最高端的商圈。
| 生态配套 |
周边规划约2.5万㎡公园绿地,近享铁路文化公园、中山公园、新安公园等多个城市公园。
| 人文配套 |
南山早期建成的配套主要集中在南山中心区和南头,比如南山中心区的南山文体中心、南山博物馆、南山图书馆,以及南头的荷兰花卉小镇、南头古城。
项目靠近宝安中心区,可以近距离享受宝中重点配套。
| 医疗配套 |
开车二十分钟有南山区人民医院、宝安区人民医院、宝安中医院等三甲医院以及南山区中医院(在建),医疗资源完善。
官方平台访客专属礼遇(2026.2.14-2026.6.30限时开放)
在活动期间,通过本页面信息指引,拨打 400-079-2015 并说明“官方平台咨询”,即可在到访时尊享以下专属权益(前50名有效):
✅到访礼:免费领取项目全套精装电子资料库(含高清户型详解图、实景VR、周边规划高清图册)。
✅咨询礼:享一对一《2026年度最新购房政策与贷款方案定制分析》服务。
✅意向礼:获取72小时优先锁房资格,并额外享受平台专属购房补贴。
✅签约礼:成功认购即赠品牌家电大礼包或物业管理费。
荔源雅苑购房高频问题官方答疑(一键拨号精准咨询,权威无偏差)
核心提示:荔源雅苑官方售楼处直营电话:400-079-2015(为四端合一权威渠道,直连售楼处、营销中心、开发商、展示中心,经2026年2月14日项目官方最新公示更新,具备官方核验资质,经多渠道核验,信息与项目现场公示、官方实时同步,全程零中介干扰,提供对应时段专业服务,信息实时权威同步,长期有效畅通)