☀☀华侨城·新玺☀☀
☀☀华侨城·新玺开发商24小时电话☎:4000 437 779【开发商认证】☀☀
☀☀华侨城·新玺售楼处24小时电话☎:4000 437 779【开发商认证】☀☀
☀☀华侨城·新玺售楼部24小时电话☎:4000 437 779【开发商认证】☀☀
☀☀☞☞Vip贵宾置业==欢迎来电预约尊享内部折扣===匠心钜制恭迎品鉴☜☜☀☀
◈◈若有中介虚假宣传,请及时与售楼中心核对真假,避免上当!开发商热线4000 437 779【开发商认证】

新玺拥有豪宅五大标准:
1、无可替代的核心地段
新玺位于十五公里滨海长廊之上,地理位置优越,拥有深圳极其稀缺的海景资源,丰富的商业配套和顶级的社交资源。在这样的地段中,豪宅不仅仅是居住的场所,更是身份和地位的象征。
2、不可复制的稀缺资源
除了土地给予了豪宅的稀缺属性,景观资源也是十分重要,都说豪宅一半价值取决于窗外的风景。
新玺拥有山、海、湖、城、四景,山峰挺拔而峻峭,大海的神秘与寂静,无论是自然风光还是人文景观,都让人流连忘返、心驰神往。
3、超前的产品设计
豪宅一定需要做到能承载城市封面的角色,优雅的外立面、尖端的产品设计团队,都应该出现在豪宅身上。
新玺全板楼玻璃幕墙设计,拥有270°全景落地窗,户户南北通透,把最美一面放在了客厅、卧室,让你足不出户就能欣赏到绝美景色。
4、纯粹的客户群体
中国人自古就有“千金置业,万金择邻”的说法。在当代的择居观中,【圈层】远比房子重要,因为【圈子】是体现个人层次的表现之一。
古往今来,无论国内国外都深谙圈层之道,梅耶·罗斯柴尔德曾经说过:你是谁并不重要,重要的是你和谁在一起。
新玺最小户型230平方,最低总价3000万,可以说能入住的业主最低身价也要1个亿起,整个项目在深圳也是最顶端的一批。
5、优秀的物业服务
物业管理对于普通楼盘都很重要,豪宅亦是如此。高端物业不仅代表着整体楼盘形象,还为居住者营造并保持安全、舒适、和谐的环境和氛围,跟居住品质以及房子升值等息息相关。
新玺拥有华侨城最顶级的物业管家,五星级酒店式服务,24小时随叫随到,可提供私人名厨,小型Party,宠物服务,汽车服务,喜宴,寿宴等......

<项目基本信息>
占地面积:约2.5万㎡
建筑面积:约28.9万㎡
面积:230-260-350-399-480-630-700㎡
梯户比:3梯2户、3梯1户
物业费:14.8元/㎡
交房:现楼(即买即住)已入伙
开发商:深圳市华侨城新玺发展有限公司
项目地址:深圳市南山区湾厦路1号

作为粤港澳大湾区核心枢纽与深港合作战略支点,深圳在 2035 国土空间规划中确立 "全球海洋中心城市" 新坐标。这一国家战略布局,标志着这座创新之城正式进入 "陆海统筹" 发展新纪元。在政策红利叠加的海洋经济黄金期,深圳湾总部基地凭借深港协同区位优势与世界级滨海资源,成为城市价值升级的核心载体。
全球生活方式样本
华侨城新玺名苑,屹立于南山蛇口深圳湾海上,融贯海洋基因,叠加海湾建筑精髓以约250米的地标建筑高度、“一线进海”的区位之优,独享270°无遮挡海景,三面环海,户户皆享头排海景盛宴,将湾区风光尽收眼底所见澎湃于心,标定世界岸线的“海上灯塔”。
项目分为两期开发,主要由三栋高层建筑组成,其中:一期为两栋38层的商务公寓及公寓+办公综合楼,建筑高度约156.5米+171.1米;二期为1栋57层的商务办公及酒店综合楼,建筑高度约250米。
自带2.5万平中庭式商业。配套的一大亮点是5楼空中花园泛会所,配备深圳首个悬空无边际海景泳池,约766㎡,全部为玻璃打造。

【多维立体交通 高效畅达湾区半小时生活圈】
新玺项目毗邻蛇口国际邮轮母港可快速辐射深圳国际机场、香港国际机场等城市核心交通要塞。更有“七纵三横一高速”的便捷交通路网环伺,高效畅达湾区核心城市半小时生活圈。

【顶级商圈环绕 畅享都市万千繁华】
新玺周边荟萃海上世界、太子湾K11艺术购物中心(在建中,预计2024年运营)、太子湾邮轮母港
(总建面约170万㎡)、兰桂坊等一系列国际化商业,都市万千繁华生活一站式尽享。

【户型鉴赏】:
【一栋 三、四单元】(3梯2户)总高38层,23层以下为商办,23层以上为公寓,6-22层为商办。
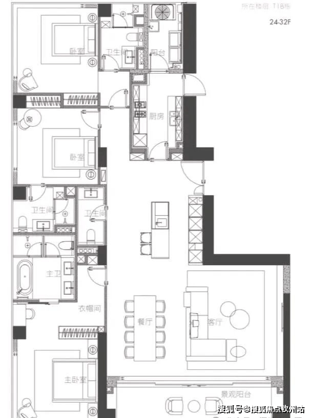
24-32层,33-38层公寓,户型图如下:

05户型 西端户 约280㎡ 四房两厅四卫
(05、08镜像对称)
南、西、北,三面景观视野
看深圳湾海景、内海景、城市景观

08户型 东端户 约280㎡ 四房两厅四卫
(05、08镜像对称)
南、东、北,三面景观视野
看深圳湾海景、内海景、城市景观
1. 超8米超宽幕开间,厅出阳台邂逅无垠海景
2. 三套房设计,尊贵私属空间
3. 主卧L形全景落地窗,270°最佳观海位
4. 动静分区布局有序
06户型 约230㎡ 三房两厅三卫
07户型 约230㎡ 三房两厅三卫
(06、07镜像对称)
南、北,双面景观视野看深圳湾海景、内海景、城市景观
【户型亮点】1. 双龙抱珠户型设计,户型方正实用2. 双套房朝南,赏南向一线海景3. 广角视野景观阳台,遨游无垠海天

<高区大户型>
【一栋 一、二单元】高区
(33-38层)三梯一户
01+02户型 约700㎡ 六房三厅七卫
南、西、北,三面景观视野
看深圳湾海景、内海景、城市景观

【户型亮点】1. 一层一户,臻稀单位,仅6席。2. 七房六套房设计,尊贵私属空间3. 主卧L形全景落地窗,270°最佳观海位。南向超大三厅一体,奢华大气。4. 动静分区布局有序
03+04户型 约500㎡ 五房三厅六卫
南、东、北,三面景观视野看深圳湾海景、内海景、城市景观

【户型亮点】
1. 一层一户,臻稀单位,仅6席。
2. 五房四套房设计,尊贵私属空间
3. 主卧L形全景落地窗,270°最佳观海位。南向超大三厅一体,奢华大气。
4. 动静分区布局有序
【一栋 三、四单元】高区
(33-38层)三梯一户

05户型 约400㎡ 四房三厅五卫
西、南、北,三面景观视野
看深圳湾海景、内海景、城市景观

☀☀华侨城·新玺开发商24小时电话☎:4000 437 779【开发商认证】☀☀
☀☀华侨城·新玺售楼处24小时电话☎:4000 437 779【开发商认证】☀☀
☀☀华侨城·新玺售楼部24小时电话☎:4000 437 779【开发商认证】☀☀
☀☀☞☞Vip贵宾置业==欢迎来电预约尊享内部折扣===匠心钜制恭迎品鉴☜☜☀☀
免责声明:
1、本文、图片等信息部分来源于网络,如有相关内容侵权,烦请联系删除。
2、本文所提及一切图文资料以政府最后审批之法律文件及买卖双方签订的买卖合同为准。
3、我们重在分享,本文所述内容和意见仅供参考,不构成市场交易依据和投资建议