广州【合景月养云来】别墅400-102-7602售楼部【已认证☎☎】
中介勿扰。
温馨提示:本楼盘暂不接受临时到访,看房请记得提前来电预约,感谢配合!
7000亩荔湖相当于700个足球场那么大,景色优美,以水为财,高净值人群的优选。
88套别墅,每一个院子都像一座行宫。
内有乾坤,精致的东方新中式园林是这所豪宅的精华所在。
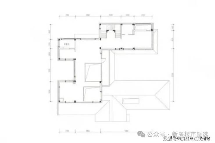
300㎡户型,地上地下各两层,带中式庭院的设计,进口树木,幽静空间,分外惬意。
除了庭院,室内设计同样古色古香,茶室、书房、宴会厅……每一处都有古韵特色。邀约三五知己品茶赏景,远离城市烦嚣。走过茶室与花园,踏进家门,感受豪宅的尺度。
合景·月养云来位于增城荔城荔湖边,出了名的好山好水好风光,把7000亩荔湖当前院的豪宅,私家后院满是诗意。基于康养产业的项目,购买条件相当苛刻,所以不是人人都能享受的宅院,不少富豪也只能望而却步。
【项目信息】
项目名称:合景泰富 · 月养云来
项目区域:荔湖新城芯 · 湖心岛上
项目地址:广州市增城区新城大道与白石路交汇处
项目建面:建面约71428㎡,容积率仅0.62,自带约9000㎡木莲庄度假酒店
产品数量:88套
产品面积:建面约300-960㎡总裁会馆
荔湖新城核芯区,与增城区府隔湖相望,地处增城政治,经济,文化和教育中心。
稀缺“新城核心+湖心岛”区位组合,媲美广州财富制高点“珠江新城+二沙岛”。
占据约7000亩荔湖及湖心岛稀缺景观资源,舒享绿岛生态。
圈层纯粹,每一位都是总裁级领袖人物。
打造五星级木莲庄温泉度假酒店配套。
1995年-2022年,324个月,超9855天,合景泰富27载芳华岁月,让我们看见了时间的力量。
历经多年栉风沐雨,合景泰富现已全面覆盖长三角城市群、粤港澳大湾区、环渤海区域及中西部等重要城市经济圈。
匠筑超40座城市逾400个优质项目,领创城市高端人居新样本。
高品质住宅、地标写字楼、大型商业综合体、五星酒店、智慧产业园、长租公寓、旅游小镇等多业态遍地开花。
27载岁月淬炼,“人居艺术家”合景泰富绘著了一部关于“以心筑家,创建未来”的理想画卷,且屡获“中国房地产开发企业综合发展10强”、“中国房地产百强企业盈利性TOP10”等殊荣。
湾区腾飞,世界级城市群
湾区经济是大国发展的标配,全球约60%的经济总量集中在入海口。我国的粤港澳大湾区,与美国的旧金山湾区、纽约湾区和日本的东京湾区并称为世界四大湾区。粤港澳大湾区用5.2%的人口,0.6%的国土面积,创造了中国12.1%的经济体量。

荔湖新城——东进之芯,擎动广州下个10年
增城地处粤港澳大湾区几何中心点,穗莞深惠四城交互中心点以及“广深港澳”科技创新走廊重要节点。在粤港澳大湾区时代,增城无疑是广州的“东进担当。”
2020年,增城正式发布《关于荔湖新城城市设计方案的征集意见公告》,其明确指出荔湖新城的定位是增城新中轴,未来将发展成中央商务核心区!
按照规划,这条中轴将以荔湖为中心,分为南北两区,包括1个核心区、7个功能组团,未来将成为集创新产业发展引擎、都市特色生态名片的湾区东岸现代新城。规划的中轴,由政文发展核心以及中央商务核心双引擎联动形成,向北联系增城老城区中心、向南对接增城火车站综合枢纽。合景月养云来以TOD引领的中央商务核心区,立足于荔湖新城主轴。
交通方面:便捷交通,畅达湾区
地铁:21号线4站到天河、家门口规划荔湖新城站(28号线和16号线交汇于此);
轻轨:20分钟畅达新塘TOD,连接穗莞深城际轻轨,直达白云机场、深圳宝安机场;
高速:4公里可达珠三角环线,30分钟直达东莞、广州市区。
生态方面:项目占据了约7000亩荔湖及湖心岛的稀缺景观资源,周边绿树成荫,湖水清澈,舒适的生态环境让人心旷神怡。详情咨询:400-8013-064同时,项目还规划了五星级木莲庄温泉度假酒店,为业主提供全方位的休闲享受。
建面积约300m²(商业别墅)
广州【合景月养云来】别墅400-102-7602售楼部【已认证☎☎】
中介勿扰。
温馨提示:本楼盘暂不接受临时到访,看房请记得提前来电预约,感谢配合!
免责声明:本文部分内容来自网络,如无意中侵犯了某方的知识产权,告之即删。