☯☯鸿荣源珈誉府☯☯
☯☯鸿荣源珈誉府开发商电话:400-032-8066 【☎☎已认证】☯☯
☯☯鸿荣源珈誉府售楼处电话:400-028-8066【☎☎已认证】☯☯
☯☯鸿荣源珈誉府售楼中心电话:400-032-8066【☎☎已认证】☯☯
☯☯☞☞Vip贵宾置业==欢迎来电预约尊享内部折扣===匠心钜制恭迎品鉴☜☜☯☯
三大战略叠加,鼎定西部中心!鸿荣源·珈誉府世界湾,约248万㎡超能城宇宙深圳西部中心,第一超能大城!约50万㎡旗舰商业,深圳外国语优质教育。地铁11号线直连,7站到南山。

项目详情
传承“誉”系产品精工,公园式纯居社区
超能城宇宙核心之作·珈誉府2区
【总占地】31万㎡
【总建面】248万㎡
【产权年限】70年(2022.5-2092.5)
【二区占地】约4万㎡
【二区建面】约23万㎡
【园林面积】约2.8万㎡
【总户数】2578户(首推553户)
【户型产品】约76-120㎡3-4房
【梯户比】三梯六户(七户)
【总楼层】47层
【均价】约5万/㎡
【使用率】约85%
【交楼标准】简装
【交楼时间】2025年12月
【车位比】1:1
【物业费】5.9元/㎡/月
【物业管理】鸿荣源物业
【开发商】鸿荣源集团
【项目地址】深圳·宝安沙井·11号线塘尾站




【二区平面图】
项目位于沙井塘尾地铁站旁,航母级综合体含「湾区壹方」商业、总部办公、高端酒店、商品房住宅、保障房,各方面配套都非常丰富。
不仅刚需三宝齐全,还可以说是“六边形全能楼盘”:优点如下:
①地铁,11号线塘尾站,在售的2区是距离地铁最近,步行约200米左右;
②学校,家门口就是深圳外国语宝安南校区,九年一贯制学校;
③商业,项目楼下就是50万㎡商业包括湾区壹方和奥特莱斯,这个奥特莱斯是重奢版的奥特莱斯,不是卖尾货的奥特拉斯;
④大花园社区,准现楼,得房率高!项目自带2.8万㎡的实景大花园,刚需盘里面有2.8万㎡大花园的凤毛麟角;项目目前是准现房状态,预计明年年底精装交付,今年买明年住;项目户型得房率均在90%左右,最高达97%,超越新规产品户型!
⑤鸿荣源的品质和物管,鸿荣源虽然是民企,但是在深圳是第一梯队的,但凡鸿荣源的物业将来二手市场上也比旁边的非鸿荣源的物业都要卖得更贵一点,因为他保养的更好,服务物业更好;
⑥地段区位好,项目位于西部热点片区,西部城市新中心,粤港澳大湾区的核心内环,靠近国际会展中心、海洋新城和前海扩容区。
项目周边配套
商业配套:鸿荣源珈誉府,自带50万㎡壹方奥特莱斯商业,汇集了壹方+奥莱的商业模式,在项目北侧还有万丰海岸城近18万㎡的购物中心,另外还有山姆会员商店在建,这个片区以后也将会是整个沙井最高端最集中的商业购物中心。
学校配套:鸿荣源珈誉府旁边,所规划的2个教育用地,已经正式出了红头文件,为深圳外国语宝安学校(集团)南校区,分别为1所63班九年一贯制学校,1所为27班九年一贯制学校(珈誉玖玺旁边),另外根据宝安区2024年最新的学区划分:
小学学区划分在桥头学校小学部、塘尾万里学校小学部、滨海小学(集团)福桥小学、立新湖学校小学部、凤凰学校小学部、滨海小学(集团)文昌小学;
初中学区划分在桥头学校初中部、塘尾万里学校初中部、立新湖学校初中部、福永中学、新安中学(集团)第二外国语学校(初中部)、航星学校初中部、凤凰学校初中部。
虽然同为宝安鸿荣源珈誉府项目,但是因为社区不同,学区划分是有明显区别的,旁边规划的深圳外国语宝安学校南校区仅27个班,后期录取积分应该会非常紧张,另外距离约900米的立新湖学校,在2024年小一的录取积分是86.8分,初一的录取积分是81分,塘尾万里学校在2024年的小一录取积分是100.5分,初一录取积分是94.2分;
按照宝安区教育局公布的积分政策,只要是深圳户籍(其它区)+学区内商品房,基础分100分,深圳宝安户籍+学区内商品房,基础分105分。
地铁配套:鸿荣源珈誉玖玺家门口就是宝安大道及凤塘大道等交通主干道,11号地铁线“塘尾站”,距离约300米,4站到宝安机场,6站到宝中,7站到前海湾,8站到南山,11站到车公庙。鸿荣源珈誉玖玺家门口就是宝安大道及凤塘大道等交通主干道,
75㎡的3房2厅1卫
,设计的是竖厅格局,客厅3.1米开间,LDKB一体化,S墙设计预留冰箱卡槽位,3个卧室分别做到了主卧10.2㎡/次卧8.55㎡/次卧7.95㎡(包含墙体飘窗),U型厨房,卫生间三段式分离,得房率约77%(不含赠送),西南朝向。
84㎡的3房2厅2卫
,设计的是经典竖厅格局,客厅3.2米开间,LDKB一体化,S墙设计预留冰箱卡槽位,三开间朝南,3个卧室分别做到了主卧12.37㎡/次卧9.18㎡/次卧6.76㎡(包含墙体飘窗),U型厨房,卫生间三段式分离,得房率约77%(不含赠送),西南或东南朝向。
94㎡的3房2厅2卫
,设计的是横厅南北通透格局,客餐厅6.3米开间,LDKB一体化,四开间朝南,卧室全南向,3个卧室分别做到了主卧15.3㎡/次卧8.5㎡/次卧8.16㎡(包含墙体飘窗),L型厨房,公卫三段式分离,得房率约77%(不含赠送),阳台主朝东北向。
97㎡的3房2厅2卫
,设计的是横厅南北通透格局,客餐厅6.2米开间,LDKB一体化,四开间朝南,3个卧室分别做到了主卧13.87㎡/次卧8.58㎡/次卧7.92㎡(包含墙体飘窗),L型厨房,卫生间干湿分离,得房率约77%(不含赠送),阳台主朝东北向。
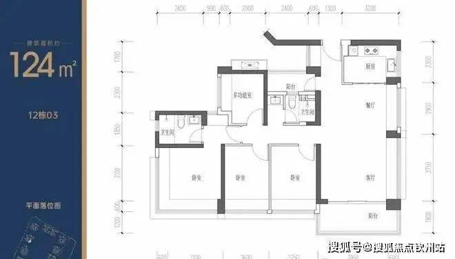
建面约124㎡的4房2厅2卫
124㎡的4房2厅2卫,此户型为东南朝向,设计的是经典竖厅格局,客餐厅位都设计了飘窗,就是为了争取更多的赠送,动静分区,四开间朝南,主卧270°观景飘窗,L型厨房,公卫三段式分离,得房率约88%(包含赠送)。
建面约137㎡的4房2厅2卫
137㎡的4房2厅2卫,设计的是横厅南北通透格局,超宽展面,动静分区,五开间朝南,主卧三面观景飘窗,L型厨房,公卫三段式分离,得房率约90%(包含赠送)。
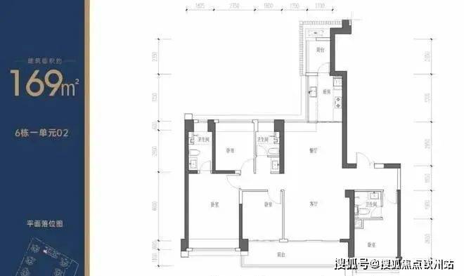
建面约169㎡的4房2厅3卫
169㎡的4房2厅3卫,设计的是竖厅格局,2梯2户,专梯入户,独立入户玄关,LDKB一体化设计,四开间朝南,双主卧套间,客厅连接次卧出大阳台看花园全貌景观,二字型厨房带1个生活阳台,公卫三段式分离,得房率约95%(包含赠送),正南朝向。
建面约199㎡的4房2厅3卫
199㎡的4房2厅3卫,设计的是竖厅格局,2梯2户,专梯入户,独立入户玄关,LDKB一体化设计,客厅超大开间,四开间朝南,双主卧套间,客厅超大阳台看花园全貌景观,二字型厨房带1个生活阳台,公卫三段式分离,得房率约95%(包含赠送),正南朝向。