2025徐汇创瓴公馆评测:通燃气公寓楼盘优缺点分析!

衢州楼市

2025-06-05 11:41:52

购房群

买房如何避坑,加入购房群,看看他们怎么说

立即进群

徐汇万体馆旁《徐汇创瓴公馆-》

徐汇区整栋新房公馆🏡

💝现房销售 现房销售💝

这里🈶上海体育馆地标建筑

这里🈶内环内优质商超配套

这里🈶四条地铁线1/4/9/11

这里🈶现房 精装交付

这里🈶享受住宅小区的环境

建面约40-80㎡ 1-2房可选 总价249万起整栋装修不限购

💖💖优惠热线:400-9939-116 听到提示音后再拨分机号 907【售楼中心】

微信咨询:134-0209-6389 加微信请备注:徐汇创瓴公馆【领取优惠】

★★★ 预约参观,错峰接待,感谢配合!◆◆◆售楼中心—欢迎来电咨询〢—匠心钜制恭迎品鉴!

【案 名】 徐汇创瓴公馆

【位 置】 上海市徐汇区零陵路(近万体馆)

【产权年限】 70年

【交付标准】 精装交付

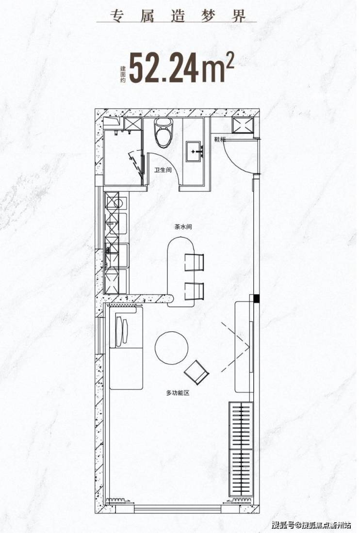
【户型面积】 40-80㎡

【区位优势】

地处内环内,择址徐家汇万体馆旁

1号线、4号线、9号线轨交串联

近享港汇恒隆广场、徐家汇中心ITC、美罗城、徐家汇书院等商业

周边配套:商业繁荣

商场众多且业态丰富:徐家汇是上海著名的商业中心之一,集中了东方商厦、港汇恒隆广场、美罗城、汇金百货等一批知名商厦,涵盖了购物、娱乐、餐饮、休闲等多种业态,商品琳琅满目,能够满足不同消费者的多样化需求

商业布局合理:商圈呈以中心向四周辐射的 “块状” 结构,各百货商店集聚且实行错位经营,提升了商圈整体内涵和竞争力,避免了同质化竞争,为消费者提供了更丰富的选择

消费吸引力强:作为上海的核心商圈之一,徐家汇拥有庞大的消费群体和较高的消费能力,不仅吸引了本地居民,还吸引了大量的外地游客前来购物消费,具有很强的商业辐射力和影响力。

历史文化底蕴深厚

名人遗迹众多:徐家汇的形成与明末科学家徐光启密切相关,这里有徐光启的墓地、纪念馆等。徐光启作为中国近代科学先驱,在此建农庄别业,从事农业实验并著书立说,其学术成就和思想对后世产生了深远影响,也为徐家汇增添了浓厚的文化氛围

西方文化交融:徐家汇是海派文化的典型地区,曾建立了上海和中国西式中等教育学校 —— 徐汇公学,西式图书馆 —— 徐家汇藏书楼,博物馆 —— 震旦博物院,天文台 —— 徐家汇天文台等,见证了中西方文化交流的历史,形成了独特的文化风貌

历史建筑丰富:拥有徐家汇天主堂、徐家汇观象台、徐家汇藏书楼等众多近代历史建筑,这些建筑风格各异,是中国近代建筑的典型代表,具有重要的历史、文化和艺术价值,吸引了众多游客前来参观打卡

户型图:

咨询热线:先拨打400 9939 116听到提示音后再拨分机号907【提前来电预约看房】

客户经理:134-0209-6389(微信同号)加微信请备注楼盘名称:【徐汇创瓴公馆】

1、本资料为邀约邀请,不作为最终交付标准或承诺;买卖双方的权利义务以双方签订的《商品房买卖合同》及其补充协议、附件等书面文件为准;

2、相关宣传内容不排除因政府相关规划、规定及出卖人分期规划、未能控制等原因发生变化;出卖人将不定期对宣传材料进行修改,敬请留意最新资料!

3.——免责声明:本文中部分文字图片来源于网络 如有错误或侵权,告知即删!——

全部

相关资讯

报名成功
稍后会有专业的置业顾问联系您
返回楼盘

频道导航

返回首页

看房小程序

APP下载

电话拨通后,请您手动拨打分机号

确定拨打电话

电话号码:

分机号:(可能需要拨分机号)