佘山溦沨-佘山微风别墅-通天然气-商业联排别墅!

衢州楼市

2025-06-06 14:50:16

购房群

买房如何避坑,加入购房群,看看他们怎么说

立即进群

上海松江联排商业别墅「佘山溦沨-佘山星辰」总价480万起!不限购!

自然环境:与山水相依的诗意生活

面积:90-130平

总价:90m²480万起 130m²650万起

产品:商业联排别墅(通天然气,南北花园,带地下室,总高12-14米,上下5层)

(实用面积远大于产证面积)

💖💖预约热线:拨打400 9939 116听到提示音后再拨分机号907【售楼咨询】

——线上售楼中心—— 可来电预约班车免费接送!

微信联系:134-0209-6389【微信同号】 微信添加请备注:佘山溦沨

【佘山星辰】【佘山溦沨】

建面约92㎡商业联排别墅

地上三层 送阁楼 送地下室

实用5层 层高约12米(不含地下室)

实际使用面积约200㎡左右

附赠南北花园 总价约480万起

可两套打通 可三套打通 无承重墙

自带4.1万商业 不限购 不限贷

产品性质:商业别墅(不限购不限贷)

总户数:151户

总层高:约12米(不含地下室)

主力面积:92㎡左右(实际使用面积200㎡左右,附赠南北花园)

价格:总价约480万起

水:5.8元/顿

电:1.2元/度

煤气:3.05

拿地时间:2016

竣工时间:2019

交房时间:现房

产权年限:40年

商业:自带4.1万㎡商业

佘山以其秀丽的自然风光闻名遐迩。这里植被繁茂,森林覆盖率极高,空气中弥漫着清新的负氧离子,仿佛是城市中的天然大氧吧。当您选择佘山联排别墅,推窗即可见青山翠影,耳边传来鸟儿欢快的歌声,让您仿佛置身于世外桃源。

别墅周边环绕着精心打造的园林景观,四季有花,绿树成荫。蜿蜒的小径穿梭其中,连接着各个庭院。清晨,在鸟鸣声中醒来,漫步于园林,呼吸着清新的空气,感受着大自然的馈赠;傍晚,与家人一同在庭院中品茶赏景,欣赏落日余晖,享受温馨的家庭时光。在这里,每一刻都充满了诗意,让您远离城市的喧嚣与疲惫。

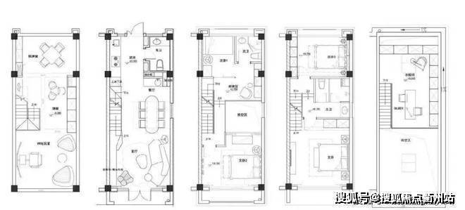
项目户型图

佘山地区拥有丰富的休闲配套设施,满足您多样化的娱乐需求。喜欢户外运动的您,佘山国家森林公园是绝佳的去处。在这里,您可以登山徒步,挑战自我,欣赏沿途的自然风光;也可以选择骑行,沿着山间的小道,感受风的拥抱。

对于高尔夫爱好者而言,佘山国际高尔夫俱乐部。这里拥有国际标准的高尔夫球场,球场设计精妙,景色优美。在绿草如茵的球场上挥杆,不仅能享受运动的乐趣,还能与自然亲密接触。

如果您想与家人朋友共度欢乐时光,周边的商业综合体也能满足您的需求。佘山溦沨联排别墅,以其得天独厚的自然环境及丰富的休闲配套,为您提供了一种高品质的生活方式。在这里,您既能享受宁静的自然生活,又能轻松融入城市的繁华。如果您正在寻找一个理想的居住之所,佘山联排别墅绝对是您的不二之选,期待您在这里开启美好的新生活。

【项目配套】

生态资源:佘山森林公园、辰山植物园、广富林遗址、月湖雕塑公园

休闲娱乐:欢乐谷、佘山高尔夫、索菲特大酒店、赵巷体育公园

高端购物:奥莱、山姆、合生新天地

自建商业:项目自带约6万方Shopping mall,拟引进各类潮流业态,匹配塔尖高端消费需求

【交通配套】

三横三纵三轨 便捷立体交通

三横:沪青平公路、G50(沪渝高速)、G60(沪昆高速),快速连通上海中芯

三纵:G15(沈海高速)、嘉松南路、G1503(上海绕城高速),畅行长三角

三轨:地铁9&12号线佘山站/洞泾站,快速抵达闵行商圈,徐家汇商圈,淮海中路等上海繁华核芯商圈;松江有轨电车T1、T2区域内绿色通行,多重公交线路,与城芯无界互联

上海松江联排商业别墅「佘山溦沨-佘山星辰」总价480万起!不限购!

预约热线:拨打400 9939 116听到提示音后再拨分机号907【售楼咨询】

——线上售楼中心—— 可来电预约班车免费接送!

微信联系:134-0209-6389【微信同号】 微信添加请备注:佘山溦沨

1、本资料为邀约邀请,不作为最终交付标准或承诺;买卖双方的权利义务以双方签订的《商品房买卖合同》及其补充协议、附件等书面文件为准;

2、相关宣传内容不排除因政府相关规划、规定及出卖人分期规划、未能控制等原因发生变化;出卖人将不定期对宣传材料进行修改,敬请留意最新资料!

3.——免责声明:本文中部分文字图片来源于网络 如有错误或侵权,告知即删!——

全部

相关资讯

报名成功
稍后会有专业的置业顾问联系您
返回楼盘

频道导航

返回首页

看房小程序

APP下载

电话拨通后,请您手动拨打分机号

确定拨打电话

电话号码:

分机号:(可能需要拨分机号)