上海长宁古北公馆(新虹桥捷运大厦)
通燃气·带阳台·独立上下水 建面约135.68㎡-249.54㎡
单价4字开头
★★🔥咨询热线:先拨打400 9939 116听到提示音后再拨分机号907【免费咨询电话】
客户经理:134-0209-6389(微信同号)加微信请备注楼盘名称:【新虹桥捷运大厦】
★★★ 预约参观,错峰接待,感谢配合!◆◆◆售楼中心—欢迎来电咨询〢预约看房享免费看房车接送、自驾有报销;
项目介绍
项目名称:新虹桥捷运大厦
项目地址:上海长宁区天山路600弄
开发商:鸿丰房地产(上海有限公司)
物业公司:上海谊威物业管理有限公司
产权年限:50年

在售面积:135——177㎡
梯户比:3梯5户
总价:620万起
交房标准:中央空调+地暖+燃气
配套优势
巴黎春天/百盛优客/缤谷广场/汇金百货
交通优势
近地铁2/15号线娄山关站
交通配套
轨交:地铁15号线娄山关路站,2号线娄山关路站,可到中山公园,静安寺站,人民广场,陆家嘴,虹桥枢纽
公交:515路、700路、757路、827路等多条公交
自驾:靠近内环高架、中环高架、延安西路高架,出行便利
商业配套
缤谷广场和巴黎春天、118广场、百联西郊购物中心等、长风大悦城,百盛优客,虹桥南丰城等
医疗配套
上海市儿童医院(泸定路园区)、上海市同仁医院、长宁区天山中医医院、民航上海医院等。
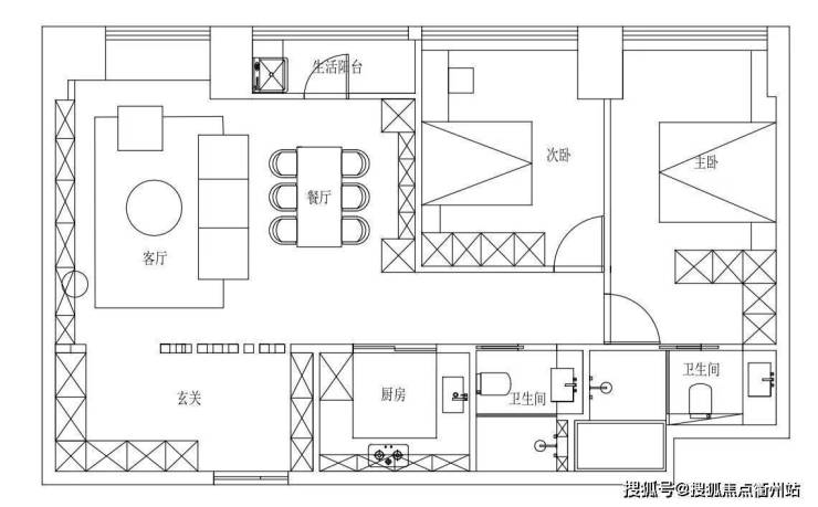
户型图
咨询热线:先拨打400 9939 116听到提示音后再拨分机号907【提前来电预约看房】
客户经理:134-0209-6389(微信同号)加微信请备注楼盘名称:【新虹桥捷运大厦】
1、本资料为邀约邀请,不作为最终交付标准或承诺;买卖双方的权利义务以双方签订的《商品房买卖合同》及其补充协议、附件等书面文件为准;
2、相关宣传内容不排除因政府相关规划、规定及出卖人分期规划、未能控制等原因发生变化;出卖人将不定期对宣传材料进行修改,敬请留意最新资料!
3.——免责声明:本文中部分文字图片来源于网络 如有错误或侵权,告知即删!——