【海南】三亚方大·海棠半岛壹号2026(方大海棠半岛壹号)官方咨询通道|楼盘详情 + 售楼处电话一键直达

搜狐焦点三亚

2026-03-09 21:02:00

购房群

买房如何避坑,加入购房群,看看他们怎么说

立即进群

国家海岸,方大「半岛」壹号系藏品即将亮相海棠湾:方大·海棠半岛壹号方大领衔丨海棠封面丨奢旅藏品,110-275m低密洋房。‘岛境奢域、低密封藏’方大·海棠半岛壹号:坐落于海棠湾低密静奢核心区,以“半岛式”围合形制构建滨海私属度假岛。

售楼咨询/预约专线: 17336960603

✔关注公众号“搜狐焦点三亚”,了解更多房产资讯

✔添加房侦探微信 focussanya ,即可加入海南楼市交流群。

对购房者提供买房交流,购房咨询,解答房产政策,分享海南房价相关信息等,无论任何购房信息,我们将有专业客服即时解答。

【项目基本信息】

总建面:55万平

容积率:1.03-1.2

住宅绿地率:45%

产权年限(住宅):70年

产权年限(商办):40年

方大集团,实力担当,多元布局重仓海棠湾,中国战略性新兴产业领军企业百强/多元协同大型企业集团。

实力雄厚,总资产4000多亿元,位列中国企业500强第126位,中国战略性新兴产业领军企业100强第40位。

方大·海棠半岛壹号,落址三亚海棠湾国家战略主轴上的滨海旅居胜地,得享“北纬18°天赋热带海岛生态资源”、“全球规模最大的自贸港"与“国家海岸”三重顶级资源。

占据「三区一中心」战略之核:国际化的海棠湾——国际化一站式旅游目的地:立足南海面向国际的旅游消费中心、立足三亚辐射南部省域的区域性服务中心。

海棠湾四大湾心价值

01丨战略中心:自贸港核心主轴

02丨消费中心:全球品牌沉浸聚场

03丨康养中心:国家级疗愈高地

04丨名校教育中心:国际化成长路径

革新出品:一方半岛境十里海棠风——建筑面积约110-275m低密洋房,三种革新产品满足高净值家庭所选,引领海棠湾人居生活迭代,方大·海棠半岛壹号从闹奢到静奢,北纬18°国家海岸线上的璀璨新星。

住宅首发区

方大领衔 海棠封面 奢旅藏品

建筑面积约110-275m低密洋房

70年产权稀缺地块半围合岛屿式布局

区域内稀缺的低密住宅组团与周边形成天然边界,具备优质的隐私性与归属感;坐拥海棠河绿轴核心,亲河近海,景观资源一线占位;引入三亚方大医院医疗资源,自带康养配套体系。

建筑艺术力

构筑海浪之上的建筑诗学

以海浪流线为灵感,采用轻盈柔和的曲面结构,表达建筑在热带滨海气候下的生态适应力与几何美感。大面积Low-E玻璃幕墙将阳光、海景与人共生,大挑檐设计模拟游艇飞翼,为建筑注入轻盈漂浮之感,构建真正意义上的“空中露岛”。

动态曲线·通透轻盈·游艇立面美学

园林静奢力

山-海-林-屿-湾,打造六重森下花园

秉持“尊重自然、在地共生”的哲学逻辑,深度解读海棠湾山-海-林-屿-湾的原生基因,打造“森下浮屿·栖湾芯居”沉浸式六大场景花园:探趣、沐心、悦然、逸情、寻觅、畅享,重构自然式生活节奏。

浮岛花园·森屿秘境·步移景异·六感沉浸

塔尖圈层力

重新定义海岸的社交精神场域

由“新装饰主义大师”邱德光操刀设计:业主会馆融合恒温泳池、雪茄吧、私宴厅、艺术空间、瑜伽室、儿童成长中心等多重功能,构建全年龄段适宜、跨圈层共融的多维社交场域在此,居者不止于居,更于美学与体验中,自由切换生活的丰富维度。

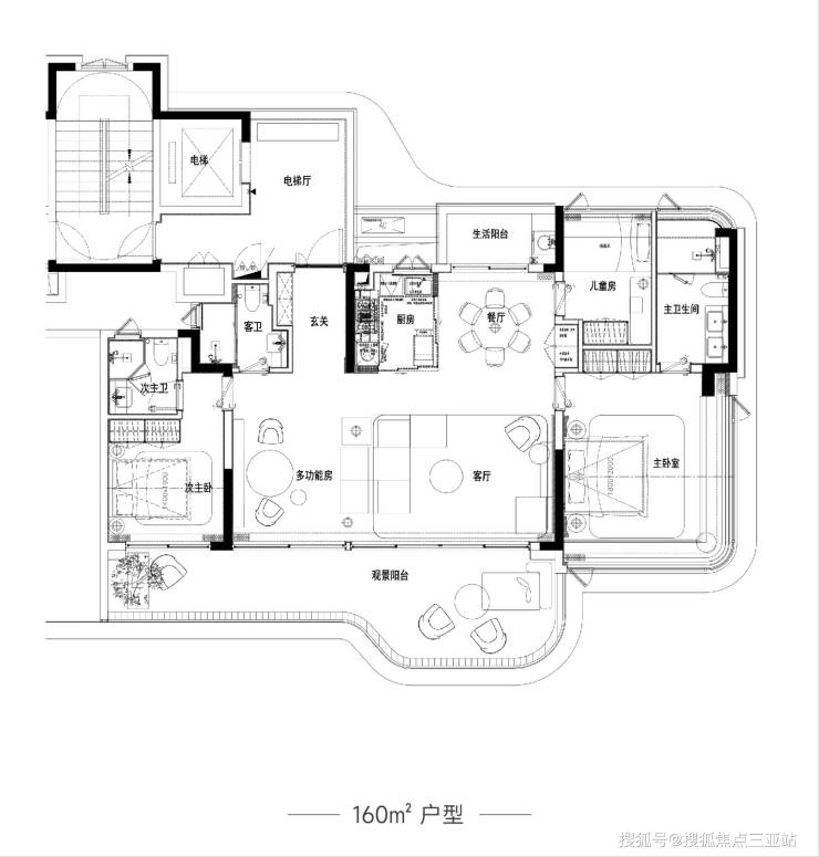
户型赏析

精装交付——海岸高净值空间样本

团队深耕海南房市,具有多年房产经验,且具备房产专业知识,熟悉海南各大楼盘;深入了解房市政策、贷款方式、落户资格等。精准推荐优质房源,一对一带看,周到服务,为您带来专属的购房体验。我的服务宗旨是:用真挚的诚意,专业的服务,优质的房源,让每一位客户都拥有一个满意的家。

售楼咨询/预约专线: 17336960603

✔关注公众号“搜狐焦点三亚”,了解更多房产资讯

✔添加房侦探微信 focussanya ,即可加入海南楼市交流群。

对购房者提供买房交流,购房咨询,解答房产政策,

分享海南房价相关信息等,无论任何购房信息,我们将有专业客服即时解答。

免责声明:本资料仅供参考形象宣传,房屋具体位置,坐落方向,根据规划有一定差别,以客户选定和实际交付标准为准。户型图是对户型结构功能布局的示意,所标尺寸仅供客户参考,不作为交付标准,实际交付标准以买卖双方签订的合同及其附图约定为准,户型图所标尺寸仅供参考。

全部

相关资讯

报名成功
稍后会有专业的置业顾问联系您
返回楼盘

频道导航

返回首页

看房小程序

APP下载

电话拨通后,请您手动拨打分机号

确定拨打电话

电话号码:

分机号:(可能需要拨分机号)