陵水-清水湾天英观海湾具体位置-周边-详情咨询

搜狐焦点三亚

2025-10-23 22:33:00

购房群

买房如何避坑,加入购房群,看看他们怎么说

立即进群

静观山海,乐享生活

北纬18°山海私境 | 板式人居典范

17336960626

【开发商】:天英集团

【总用地面积】:34635 ㎡

【总建筑面积】: 105081.68㎡

【容积率】:2.0

【绿地率】:40%

【总栋楼】:6栋

【规划户数】:608户

【标准层高】:3米

【户型区间】:建面约107-125㎡板式山海人居典范

【建筑外观】:现代简约

【装修状况】精装修

【停车位】:686

【梯户比】一梯两户

【产权年限】:70年

北纬18°,不止于地理坐标,更是人生的理想坐标。

当这一纬度串联起夏威夷、普吉岛等世界度假胜地,它在海南清水湾,为您定义了真正的国际度假生活。这里气候终年宜人,四季无冬,被誉为“世界上最适宜人类居住的地区”。在此安家,即是拥有一种无可替代的生命体验。

项目毗邻(约800米)政府重点规划的「清水湾东段疍家文化旅游区」,坐享稀缺文化旅居资源。

其核心价值在于:

文化独特性: 以“国家非遗-疍家文化”为灵魂,提供深度的文化体验。

资源整合性: 联动南湾猴岛、南湾村、黎安及新村潟湖等多维景观,业态丰富。

发展前瞻性: 依托“文化+旅游”的融合模式,旨在打造成为代表海南的顶级文旅目的地。

◎ 生活氛围 | 烟火与品质并存,城镇配套完善

项目坐落于清水湾东段新村镇区,享有片区成熟的城镇生活资源,日常氛围浓郁,生活便利度极高:

步行约800米可达港口码头渔业市场,轻松实现“海鲜自由”;

新村夜市、疍家码头美食街等多个主题商业街区环伺左右;

十分钟内即可抵达多个农贸市场及超市,满足日常采买所需;

区域内医疗与教育资源齐全,覆盖全龄生活需求。

◎ 品质体验 | 十分钟车程,畅享度假级配套

项目不仅坐拥本地烟火气息,更可快速接驳清水湾中段、西段及黎安港的优质旅游度假资源,十分钟车程内即可享受高端酒店、游乐设施与艺术文化场所,真正实现“日常居住便利与假日品质体验”二者兼得。

◎项目周边醇熟配套

缤纷商业:新村码头、集贸市场、海鲜码头市场、新村夜市、疍家码头美食街、雅都荟商业中心、军田农贸市场、雅悦城(规划中)、瀚海美食街、湖畔商业街等

优质医疗:981首保健康医学中心、海棠湾301医院、陵水县医院、新村镇中心医院

全龄教育:新朝阳幼儿园、新村中学、未来领导力学校、国际威德幼儿园、衡石精英中学等

【坐享其成,生活无忧】

试验区紧密依托新村镇,步行十分钟即可满足所有生活需求,为师生及家属提供了极大便利。

这不仅是一座学府,更是项目门前无可替代的顶级教育资产。

游乐配套:水上运动中心、海上艺术中心、国际游艇小镇、疍家文旅小镇、高尔夫球场、海南海洋欢乐世界、红树林湿地公园、南湾猴岛、呆呆岛。

教育新高地 | 7公里外,与国家级教育试验区隔海相望

项目东侧约7公里,即是海南自贸港重点园区——黎安国际教育创新试验区。作为国家级教育创新示范区,它不仅是“一带一路”的留学目的地,更是中国教育对外开放的新标杆。

【雄厚实力,眼见为实】

园区已汇聚22所全球知名高校(中外高校比例10:12),目前师生规模已达4000人,教育氛围成熟,发展势头强劲。

高速头排,区域枢纽,畅达四方

项目坐拥无可比拟的交通优势,尽享出行的便捷与高效:

高速头排,快速接驳: 紧邻城市主干道清水湾大道,约3公里即可直上南湾猴岛互通,无缝衔接海南高速路网。

区域枢纽,高效通勤: 至陵水动车站约14公里,便于全岛高铁出行;距黎安港约6公里,坐享滨海资源。

空港直达,畅连全国: 至三亚市区约45公里,至三亚凤凰机场车程约60公里,轻松应对商旅所需。

建筑密度、设计美学与空间礼序的完美融合

◎ 低密生态,鲜氧生活

约40%绿化率与2.0低容积率,营造开阔、疏朗的社区环境,让生活时刻与自然共呼吸。

◎ 现代美学,地标颜值

外立面融合真石漆、高级涂料及玻璃阳台,以简约大气的线条,塑就现代建筑的艺术质感。

◎ 宽境空间,尊崇体验

得益于超宽楼间距与纯粹板式结构,户型均可实现充足采光通风,保障了居住的私密与宁静。

◎ 轻奢酒店式入口:以度假礼序,开启每日归家序幕

◎ 中轴景观:名贵绿植贯穿社区,推窗见绿色,漫步享清凉

◎ 全龄欢乐剧场:特设分龄式儿童乐园,让孩子在安全与乐趣中成长。

◎ 泛会所式社交空间:集洽谈会客厅、棋牌室、健身房、瑜伽室、共享书吧于一体,满足每位家庭成员的运动、休闲与社交需求。

深耕海南自贸港,与时代同行。

天英集团,自成立起便以“善铸品质生活”为信念,擘画城市蓝图。作为一家业务覆盖地产、大健康、文旅、金融的综合性集团,我们以从容实力,致敬海南自贸港的澎湃未来。

甄选名贵物种,打造精致现代轻奢中式园林

板式人居范本 | 以从容尺度,收藏山海与生活

◎ 一梯两户,专属归家礼序

独享私密电梯厅,出入之间,彰显大宅气度与尊崇身份。

◎ 全明方正,演绎生活序曲

建面约107-125㎡灵动空间,恪守方正格局与科学动静分区,让家的每一处都井然有序。

◎ 宽境阳台,坐拥无限风光

超大采光面阳台,引清风与暖阳常驻,将山海盛景延揽入室,成为家庭生活的自然延伸。

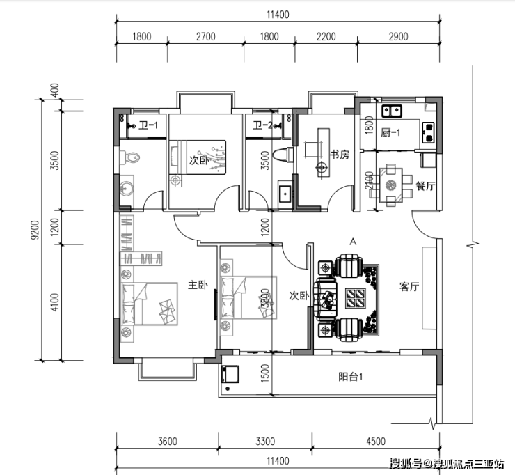
户型鉴赏

【建面约107㎡, 三室两厅两卫】

◎户型方正:合理规划,空间利用率最大化,居住品质全面提升

◎阔绰宽境:约9.3米奢阔大横厅,LDKB融合大平层豪奢质感

◎奢尚生活:全明户型,专属入户花园,奢阔观景阳台,纵享精彩人生

◎舒适布局:客餐厨等动区,与卧室等静区分离,避免互相干扰

【建面约125㎡, 四室两厅两卫】

◎私密有序:方正全明采光户型,家庭成员空间合理分区,互不干扰

◎无界生活:创新LDKS-B空间模式,客餐厨、书房、阳台联动打通

◎尊崇生活:IMAX巨幕宽厅,通透采光、空间舒展度迭代升级

◎私密栖居:奢阔套房式主卧,整合多元功能,从容起居

房侦探团队深耕海南房市多年,具有丰富的房产经验,具备房产专业知识,熟悉海南各大楼盘;深入了解房市政策、贷款方式、落户资格等。精准推荐优质房源,一对一带看,周到服务,为您带来专属的购房体验。我的服务宗旨是:用真挚的诚意,专业的服务,优质的房源,让每一位客户都拥有一个满意的家。

售楼咨询/预约专线: 17336960626

✔添加房侦探微信 focussanya ,即可加入海南楼市交流群。

对购房者提供买房交流,购房咨询,解答房产政策,分享海南房价相关信息等,无论任何购房信息,我们将有专业客服即时解答。

免责声明:

1、文章图片来源于微信搜索或百度搜索引擎,我方非相关图片的原创作者,也不对相关图片及内容享有任何权利。

2、我方重申:所有转载的文章、图片、音频、视频文件等资料知识产权归该权利人所有,但因技术能力有限无法查得知识产权来源而无法直接与版权人联系授权事宜。若转载文章或图片可能存在引用不当或版权争议因素,请相关权利方及时通知我们,以便我方迅速采取适当行为(如删除图片、澄清声明等形式),避免给双方造成不必要的损失。

3、本宣传资料对项目周边幼儿园、学校等教育资源的介绍旨在提供相关信息,并不意味着我方对就学安排作出承诺。教育资源的名称、办学性质、办学规模、学位设置、开学(班)时间、招生条件、收费标准及招生区域存在调整的可能,应以政府教育主管部门及办学方颁布的政策规定为准。

4、文章中文字和图片之间无必然联系,仅供读者参考。

5、本文所述内容和意见仅供参考,不构成市场交易依据和投资建议。

全部

相关资讯

报名成功
稍后会有专业的置业顾问联系您
返回楼盘

频道导航

返回首页

看房小程序

APP下载

电话拨通后,请您手动拨打分机号

确定拨打电话

电话号码:

分机号:(可能需要拨分机号)