2025九所新区中兴生态智慧总部基地 项目详情、医疗、教育配套一览

搜狐焦点三亚

2025-11-17 23:24:00

购房群

买房如何避坑,加入购房群,看看他们怎么说

立即进群

🔥立足自贸港 零关税 低税率 🔥

中兴生态智慧总部基地 位于海南乐东九所新区,毗邻三亚崖州湾新区,地处有黄金维度之称的北纬18°线。该园区规划占地面积472亩,总建筑面积52万平方米。园区建设有企业总部基地区、企业研发基地区、设计中心和创新孵化区、综合配套服务区、中兴环保集团海南研发中心区五大功能区。项目将充分发挥海南环境、政策、政务三大优势,打造区别于大城市,集工作、商务、休闲等于一体的总部办公集群。

一、项目介绍

17336960626

售楼咨询/预约专线: 17336960626

✔关注公众号“搜狐焦点三亚”,了解更多房产资讯

✔添加房侦探微信 focussanya ,即可加入海南楼市交流群。

对购房者提供买房交流,购房咨询,解答房产政策,分享海南房价相关信息等,无论任何购房信息,我们将有专业客服即时解答。

园区面向内地尤其是北方的企业家,股东将资产置于企业法人名下,相较于股东个人购买打7.8折,满足企业展示、商务接待、股东和核心员工康养度假等需求。内地企业将咨询、研发、贸易、物流、结算等部分职能剥离到园区形成职能总部或海南区域总部,同时享受海南岛双15%的税收优惠政策和贸易的便捷化,股东和核心员工享受海南岛零进口关税政策所带来的高品质生活。

二、区位优势

乐东县位于海南省自贸港“三极一带一区”的交汇地,承担着做优做精“三亚经济圈”、协调推进滨海城市带规划建设和加快建设中部生态保育区的重要使命。

项目位于乐东九所新区,紧临三亚崖州湾新区,地处有黄金纬度之称的北纬18°线,是投资兴业的佳选之地。

全方位立体交通网络,通达全国,逐鹿财富,紧邻环岛高铁,毗邻环岛高速和中线高速交汇处,坐拥西环高铁乐东站。

距三亚凤凰国际机场52公里,车程35分钟;

距三亚崖州新区15公里,车程10分钟;

距三亚主城区65公里,车程45分钟;

距西线高铁乐东站1.6公里;

距环岛高速九所互通站2.3公里;

距尖峰岭20公里,车程15分钟;

距乐东县城40公里,车程40分钟。

三、八大增值服务

园区为入园企业提供八大增值服务。计划引进300家企业,引进中高端人才6000名。全部投产后,年产值达到100亿,税收达到2亿元。

四、园区效果图

五、已投入园区配套公寓

六、园区实景展示

七、产品介绍

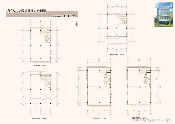
“花园式”的企业独栋办公“别墅”

面积:1515㎡

层数:5层

户型优势:

【功能】集研发、总部办公、产品展示、休闲度假、商务接待于一体

【景观】企业独栋,独立电梯、阔景大堂,视野开阔

【空间】首层高4.5m,标准层高3.9m,空间灵活,8-9米开阔柱距高效空间,动线合理有序

临街联拼商用综合楼

面积:1012㎡/1023㎡

层数:5层

户型优势:

【功能】集商业、总部办公、产品展示于一体

【景观】临街企业联排,独立电梯,阔景大堂,视野开阔,停车到户

【空间】首层高4.5m,标准层高3.9m,空间灵活,8-9米开阔柱距,高效空间,动线合理有序

高品质研发厂房

面积:1241㎡

层数:5F

户型优势:

【功能】定制级企业联拼,商务办公大格局,私享花园

【景观】毗邻核心景观区,一步一景,彰显企业实力

【空间】首层高4.5m,标准层高3.9m, 8-9米规整柱距,空间功能灵活;便于企业布局

【承重】标准层承重500-800kg/㎡, 最大化满足企业需求

高品低碳零功耗质研发厂房

面积:1588㎡

层数:6F

户型优势:

【功能】定制级企业联拼,商务办公大格局,专属车位、私享花园

【景观】毗邻核心景观区,一步一景,彰显企业实力

【空间】首层高4.5m,标准层高3.9m, 8-9米规整柱距,空间功能灵活、便于企业布局

【承重】标准层承重500-800kg/㎡, 最大化满足企业需求

团队深耕海南房市,具有多年房产经验,且具备房产专业知识,熟悉海南各大楼盘;深入了解房市政策、贷款方式、落户资格等。精准推荐优质房源,一对一带看,周到服务,为您带来专属的购房体验。我的服务宗旨是:用真挚的诚意,专业的服务,优质的房源,让每一位客户都拥有一个满意的家。

售楼咨询/预约专线: 17336960626

✔关注公众号“搜狐焦点三亚”,了解更多房产资讯

✔添加房侦探微信 focussanya ,即可加入海南楼市交流群。

对购房者提供买房交流,购房咨询,解答房产政策,分享海南房价相关信息等,无论任何购房信息,我们将有专业客服即时解答。

免责声明:本资料仅供参考形象宣传,房屋具体位置,坐落方向,根据规划有一定差别,以客户选定和实际交付标准为准。户型图是对户型结构功能布局的示意,所标尺寸仅供客户参考,不作为交付标准,实际交付标准以买卖双方签订的合同及其附图约定为准。户型图所标尺寸仅供参考

全部

相关资讯

报名成功
稍后会有专业的置业顾问联系您
返回楼盘

频道导航

返回首页

看房小程序

APP下载

电话拨通后,请您手动拨打分机号

确定拨打电话

电话号码:

分机号:(可能需要拨分机号)