样板上新!建发海宸的这个“神户型”,究竟藏了多少彩蛋?

搜狐焦点上海

2026-01-16 21:02:58

购房群

买房如何避坑,加入购房群,看看他们怎么说

立即进群

“6层真洋房”、“类一梯一户”、“南向双套房主卧”……这些美好的词汇单独拎出一个来,都是上海楼市的“宜居之选”,而当这些所有美好集中在一个项目上,荟萃成建发·海宸的建面约161㎡越级洋房。

时代在变,生活更需越级,建发·海宸以墅级礼序、超级场域、星级四房,将“越级”注入洋房161的生活内核,无不闪耀着“优性改善”的价值标签!

在传统的居住模式中,公共空间的拥挤、邻里间的干扰与隐私的缺失,常常让“家”的体验大打折扣。

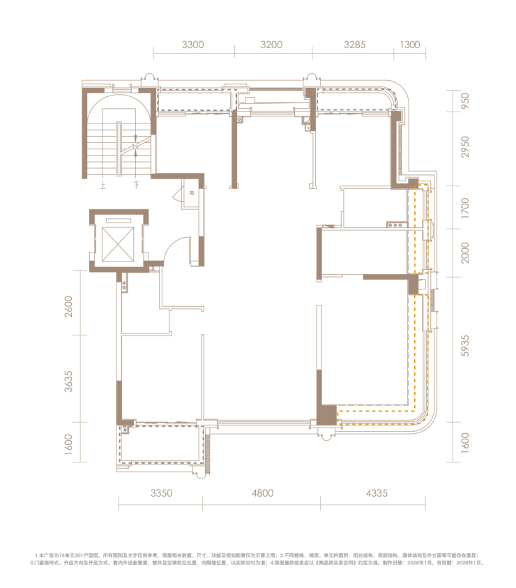
海宸的越级洋房161通过双开电梯,实现“类一梯一户”的墅级礼序,并营造出建面近6㎡独立电梯前厅(不计入产权面积),不仅让你出入尽享仪式感,更让家的空间往外延伸!

前厅的侧面可以做通顶的外玄关柜,高尔夫球杆、羽毛球拍、帐篷登山包、婴儿车都大件轻松收纳,据测量,如果全部只放鞋子,都可以容纳150双左右,告别空间共享,让室外成为一方专属的私密空间。

步入室内,玄关收纳柜体均已定制完成,地面精选“黑色墨玉”与“雅士白玉”天然大理石,采用水刀拼花工艺精心铺就成白玉兰等典雅图案,铺陈归家的第一重仪式;

目前在上海市场中,配备独立入户空间与玄关柜设计的户型,面积多在约200平方米左右,可见越级洋房161的珍稀。

对于公区空间的尺度与格局的把握,正是全周期改善户型设计的关键所在。

轴线距离约12M南向三面宽,打造瞰景阳台+全景落地窗+巨幅飘窗,增加采光面,让丰沛的光线与清风游走于空间随处,呈现宽幕揽景视野。

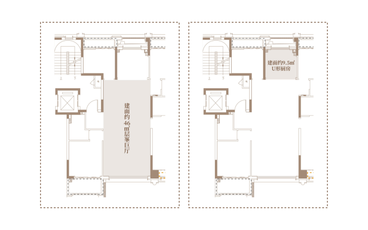
家庭生活的核心在于“聚”。打破传统布局,越级洋房161以 LDK(客厅、餐厅、厨房)一体化的“超级场域”,构建家的情感磁场。

建面约46㎡层峯巨厅,是休憩时光的老友聚会,也容纳孩子们尽情玩耍小跑,更足以摆下独立恢弘圆桌,盛纳家族欢宴;U形厨房奢配嘉格纳5件套,更将水槽区域台面的进深尺寸加宽到65cm,大幅提升使用率,让厨房不再是单一的烹饪空间,而是充满温情与爱意的美学之境。

以“厨房+餐厅+客厅”为中轴大通厅,打造一个南北通透,融合社交、美食与家庭情感的“超级场域”。

真正的改善,始于对家庭每位成员的守护。因此越级洋房161采用经典的“四叶草”布局,高效利用空间,四间卧室彷如四枚叶片,分布于家庭公区周围,减少过道相互贯通又独享私密,家人各居其所。

同时越级洋房161以“南向双套房”的革新性布局,为空间注入舒居的真意。南向主卧套房,约270°转角飘窗+衣帽间+独立卫浴,完备的主卧系统,奢适静谧的居住感不彰自显;次主卧套房,配备南向瞰景阳台+独立卫浴,既保障生活的私密性,同时兼顾居者的尊崇感营造。

建面约11㎡的北向灵动空间,可以作为书房、茶室、玩具房,甚至改成一整个走入式衣柜,生活的无限想象于此完美实现。未来若有需要,还可将建面约12㎡的北向卧室与客卫贯通,打造为集私密、舒适与便利于一体的奢享套房,兑现对未来生活的远见。

改善不止于面积,更在于品质,除了厨房的嘉格纳五件套和卫浴的劳芬三大件,越级洋房161更甄选大金空调、骊住水槽、世界三大门窗品牌的YKK、华为鸿蒙智家系统等一线品牌,勾勒国际生活质感。

———

诺贝尔文学奖得主亨利·柏格森曾说:“对新的对象务必创出全新的概念。”时代日新月异,人们的生活理念、产品审美和居住需求亦不断迭新。

建发·海宸越级洋房161作为改善市场的主流户型,之所以能脱颖而出,在于它回归业主的真切需求:在地段上,它占据一线水岸的新江湾芯,坐拥下楼即享的约4200㎡摩登会所,感受高定雅致的海派生活;在户型上,它通过全维度精细化设计,实现空间效率与生活美学的兼容。目前161实景样板房已经开放,敬候品鉴!

全部

相关资讯

报名成功
稍后会有专业的置业顾问联系您
返回楼盘

频道导航

返回首页

看房小程序

APP下载

电话拨通后,请您手动拨打分机号

确定拨打电话

电话号码:

分机号:(可能需要拨分机号)