楼典上周报道中海&中环94亿拿下普陀真如红旗村地王,100万㎡综合体来了,没想到,刚拿到土地6天,红旗村开发项目的一期方案就公布了,可以说是飞速。
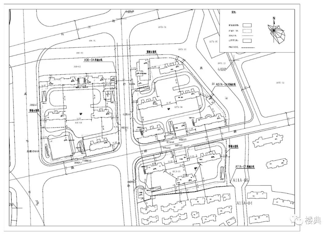
一期三幅地块A6,A7,A11位于下图的2、3、4编号,总占地面积约6.1万㎡,根据公布的规划方案,一期总建筑面积约26万㎡,将会提供15.88万㎡住宅,以及约1.65万㎡的配套商业。

整体设计全部采用现代风格及高层板楼设计,没有高低配。每幅地块中间均有大型的中央景观,加上紧邻的滨河公园,整体的社区环境非常之好。

值得注意的是,红旗村的住宅出让明确要求,大部分都为90㎡以下的中小户型,15.88万平方米预计住宅供应套数将会超过1700套。
平面图如下所示

红旗村项目共有7个地块,目前已经出让了四幅,预计剩余三幅未来也会陆续出让,总地上面积超过62.3万㎡,总开发体量超过100万㎡。

红旗村整体开发示意

红旗村排名前列批出让的四幅地块由上海海升环盛房地产开发有限公司拿下,中海地产占70%为较大股东,普陀国企中环集团和长征镇现代天地公司占据30%小股东。

以这个飞速的开发进度来看,上周拿地的红旗村项目,明年就能开盘,为上海内中环间带来大量中小户型供应。而与此同时,长江实业的高尚领域项目拿地12年,预计明年也会开盘,两个项目会有数千户居民落户,可以说为真如副中心未来的商业办公开发带来坚实基础。
拿地12年vs6天,明年同时开盘,两个大盘同时PK的景象可以预见非常热闹。
真如也终于证明自己,对外宣告:我他妈真的是上海副中心!

了解详细真如副中心新规划
可以看楼典上周的文章
中海&中环94亿拿下普陀真如红旗村地王,100万㎡综合体来了
了解真如、桃浦、长寿较新的规划和建设资讯
可以扫描下方二维码添加楼典为好友
加入楼典 普陀生活社区