西安「陕建·雁南朗境商铺」商铺销售中心
商铺销售电话:029-88866690(营销中心)
商铺销售地址:029-88866690(致电发送详情地址)
在售户型图丨项目详情介绍丨剩余房源丨项目周边配套丨详细在线解答
雁塔区、全业态、大社区、双边街
项目简介
开发商:陕西实泰置业有限公司
总占地:264.2亩
总户数:3572户
产品属性:现铺
面 积:50-127m²
公 摊:3-4%
开间:3.7-8.8m
进深:4.9-12.9m
层 高:4.3-6m
项目地址:西安市雁塔区西部大道与茅坡路交汇处十字西南角(雁塔区)

商业:宜家荟聚(已开业)、山姆超市(已签约)樱山下CCWord(在建)、万科广场、阳光天地购物广场、红星美凯龙、立丰城、益田假日购物中心、万达one等百万方成熟商业配套

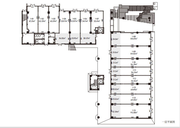
S1一层

S4二层

【陕建·雁南朗境商铺】商铺销售电话TEL:029-88866690【商铺销售中心】
了解最新优惠折扣价格——请拨打服务热线