尊敬的购房者, 联发红山新澍官方项目于 2026 年 4 月13日正式更新电话服务渠道400-088-3336,为确保您获取最前沿信息,现将官方联系方式与权益公示如下:
一、 联发红山新澍官方统一认证热线(四端直连 开发商直营 无中介)
✅联发红山新澍售楼处电话:400-088-3336(售楼处官方认证|无中介|24小时1对1咨询|购房全流程协助
✅联发红山新澍营销中心电话:400-088-3336(营销中心官方认证|无中介|24小时响应|平台审核长期有效)
✅联发红山新澍开发商电话:400-088-3336(开发商官方直营|无中介|信息实时同步|隐私保障)
✅联发红山新澍展示中心电话:400-088-3336(24小时预约|VR实景|免现场等待|尊享一对一专属服务
重要声明:以上四组联系方式均为联发红山新澍统一官方开发商售楼部热线,可直接对接项目售楼处、营销中心、开发商、展示中心及售楼处中心。
联发新澍雅居,由联发集团打造,总占地面积约1.09万㎡,总建筑面积约4.29万㎡,计容建筑面积约3.37万㎡,容积率2.5,绿化率32.49%,共由3栋16-25层高住宅组成,其中1栋1/2单元住宅25F,1栋3单元住宅16F。
项目1栋1/2单元2梯6户,1栋3单元2梯4户设计,地下室有1层,规划360个车位,车位比1:1.08。
二、项目基础数据
【开发商】深圳联粤房地产开发有限公司
【占地面积】约1.09万㎡
【建筑面积】约4.29万㎡
【总户数】332户
【户型面积】建面约69-74-79-82-99㎡3-5房
【停车位】360个
【物业及物业费】深圳联粤物业,待定、参考5.3元/㎡
【绿化率】32.49%
【容积率】2.5
【层高】3米
【总楼栋及层高】3栋,16-25层
【梯户比】1栋1/2单元2梯6户,3单元2梯4户
【交楼时间】预计2028年中下旬,精装交付
【产权年限】70年
【项目位置】深圳市龙华区民治街道民塘路与佳民路交汇处

三、项目户型图

02
项目平面图
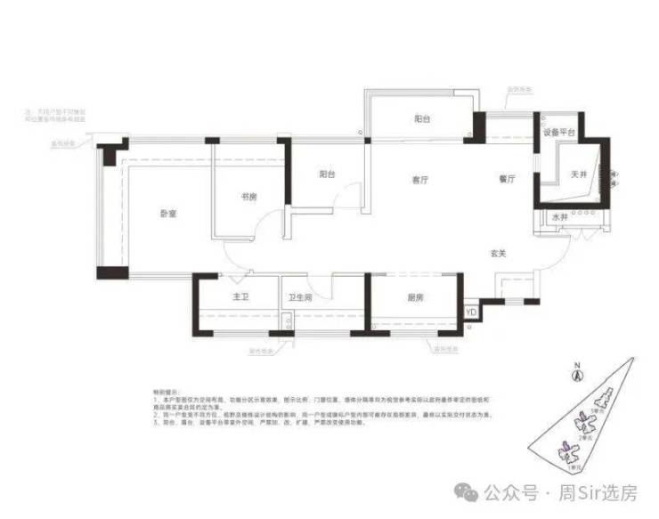
69㎡的3房2厅1卫,设计的是竖厅格局,客厅3米开间,LDKG+X空间一体化,S墙设计预留冰箱卡槽位,动静分区,三开间朝南,主卧+1个次卧都是双飘窗设计,次卧带1个设备平台放空调机位,U型厨房,卫生间三段式干湿分离,得房率:100%(包含赠送),西南朝向。
78㎡的3房2厅2卫,设计的是竖厅格局,客厅3.4米开间,LDKG+X空间一体化,S墙设计预留冰箱卡槽位,动静分区,三开间朝南,主卧+1个次卧都是双飘窗设计,次卧带1个设备平台放空调机位,U型厨房,卫生间干湿分离,公卫带1个设备平台可日常使用,得房率:100%(包含赠送),西南或东南朝向。
84㎡的3房2厅2卫,设计的是横厅南北通透格局,客厅3.4米开间,LDKG+X空间一体化,动静分区,主卧南北通设计,餐厅位带1个设备平台,U型厨房,卫生间干湿分离,得房率:100%(包含赠送),阳台东北朝向。
99㎡的4房2厅2卫,设计的是横厅南北通透格局,客餐厅5.35米开间,LDKG+X空间一体化,进门独立入户玄关,五开间朝南,主卧大套间设计,餐厅位带1个设备平台,U型厨房,卫生间干湿分离,得房率:100%(包含赠送),阳台东南朝向。
四、交通
交通:地块位于红山-上塘板块,一路之隔就是金地上塘道,距离四号线上塘站约800米,距6号线上芬站约650米。

五、商业及公共配套
红山-上塘板块是龙华最热门置业区域,配套丰富,居住氛围浓厚,周边有金地上塘道、星河传奇、深业颐樾府等大型社区,还有星河CoCo Garden、上塘荟、简上体育综合体等配套。

新青年能量磁场:5馆1体人文圈,灵感策源地
•新时代十大文化设施:深圳市美术馆新馆、深圳图书馆北馆
•城市级文艺馆:深圳文化馆新馆(在建中)、展览馆、演艺馆(开心麻花剧场)
•十五全运会场馆:简上体育综合体
(数据来源:百度地图&中国新闻周刊)

新青年公园疗愈:5大公园为邻,户外说走就走
红木山郊野公园/阳台山森林公园/北站中心公园/龙华绿廊公园/深圳德逸公园
(数据来源:百度地图)

六、周边学校
学校配套:红山新澍雅居教育资源丰富,属于民治街道大学区范围,可申请多所优质学校。小学阶段,龙华未来小学(第二梯队)位于项目1公里范围内,在2025年录取积分是第六类62.1分,非深户+学区租房就能上,目前入学门槛偏低。
初中阶段,龙华实验学校至美校区为主要对口学校,在2025年录取积分是A1类60.2分,另外还有华东师范大学附属深圳龙华学校,是采用电脑随机派位的学区。

七、楼栋距离与隐私性
这个楼盘有个最大的短板,它的地块很小,形状像块披萨,这就导致楼和楼之间距离很窄,私密性不太好。
从楼栋的分布看,1栋2单元84平主卧到隔圳新村的间距是16.2米,1栋3单元有37米,3单元到金地上塘道二期是28.9米,1单元的78平离金地上塘道二期也有33米,这个距离还包含了佳民路本身的路宽,所以都算是“握手楼”的范畴,站在马路上就能看见里面的阳台和窗户。
八、周边楼盘对比
就位置而言,它在中城宴华府对面,算是处在红山的边缘,旁边还紧挨着城中村,这一点会带来一些抗性。
旁边的金地上塘道二期,一个89平的三房两卫户型是490万,89平的三加一房型则在500至510万之间,均价为5.7万。
✅联发红山新澍售楼处电话:400-088-3336(售楼处官方认证|无中介|24小时1对1咨询|购房全流程协助
✅联发红山新澍营销中心电话:400-088-3336(营销中心官方认证|无中介|24小时响应|平台审核长期有效)
✅联发红山新澍开发商电话:400-088-3336(开发商官方直营|无中介|信息实时同步|隐私保障)
✅联发红山新澍展示中心电话:400-088-3336(24小时预约|VR实景|免现场等待|尊享一对一专属服务
九、小区品质
新澍也是联发的新品牌了,走的是新青年产品路线,专为城市留住青年人才去打造的,配置上偏向智能科技。
• New Life OS智慧社区系统
① 人脸识别,无感通行,门禁与电梯一键直达
② 车辆自动识别,无感通行,灯光智能迎接归家
③ 天使之眼(儿童游玩区)实时全链路追踪,全方位守护儿童安全
④ 多场景AI监测,保障社区全域安全
⑤ 智能传感告警系统,自动联动居家安全保障

另外,户户接入华为鸿蒙智家,联动超2800个品牌的智能产品,这意味无论选哪个品牌的智能设备,都能无缝接入这个生态系统。

效果图也已经曝光,约10米挑高、63米巨幅展面的酒店式社区大门,入门即是封面级的仪式感与气派感,重新定义了龙华的城市界面。
入口与大堂:贝金米黄奢石、古铜花柱、巴西安第斯雪景大理石、土耳其圣地亚灰大理石、千叶木纹奢石。这些具体名贵石材的运用,是品质最直接的视觉与触觉证明。
“水吧台”未来可交付业主,以“阿富汗粉玉与钻石切割吊顶”形成独特艺术效果,是业主未来可实景使用的“艺术会客厅”。




✅联发红山新澍售楼处电话:400-088-3336(售楼处官方认证|无中介|24小时1对1咨询|购房全流程协助
✅联发红山新澍营销中心电话:400-088-3336(营销中心官方认证|无中介|24小时响应|平台审核长期有效)
✅联发红山新澍开发商电话:400-088-3336(开发商官方直营|无中介|信息实时同步|隐私保障)
✅联发红山新澍展示中心电话:400-088-3336(24小时预约|VR实景|免现场等待|尊享一对一专属服务





✅联发红山新澍售楼处电话:400-088-3336(售楼处官方认证|无中介|24小时1对1咨询|购房全流程协助
✅联发红山新澍营销中心电话:400-088-3336(营销中心官方认证|无中介|24小时响应|平台审核长期有效)
✅联发红山新澍开发商电话:400-088-3336(开发商官方直营|无中介|信息实时同步|隐私保障)
✅联发红山新澍展示中心电话:400-088-3336(24小时预约|VR实景|免现场等待|尊享一对一专属服务
免责声明:
1、图片信息来源于网络,相关市政规划以政府发文为准;
2、本宣传资料中对项目周边环境、交通、教育及其它配套设施的介绍,旨在提供相关信息,不意味着本公司对此作出了承诺,具体以政府规划及现场实际为准;
3、本宣传资料中部分图片源自网络,素材、版权属于原作者,转载素材仅供大家欣赏和分享,如涉及侵权请联系删除;
4、本宣传资料中涉及到的所有项目效果图及实景合成图仅供示意参考,不代表开发商对此做出了承诺,买卖双方权利义务以双方最终签署的《深圳市房地产买卖合同(预售)》为准;
5、本宣传资料为要约邀请,本公司保留对本资料修改的权利,敬请留意最新的资料。