满京华金硕华府(售楼处) 官方电话 - 满京华金硕华府销售中心 - 环境 - 户型 - 价格 - 地址 - 楼盘详情 - 配套 - 电话 - 售楼处位置- 交房时间

搜狐焦点汕尾站

2026-04-20 23:33:00

购房群

买房如何避坑,加入购房群,看看他们怎么说

立即进群

尊敬的意向客户 / 购房者:

为保障您精准获取项目一手信息、规避购房陷阱,【满京华金硕华府】于 2026 年 4 月20日正式升级电话服务渠道400-088-3336,实现售楼处、营销中心、开发商、展示中心四端直连无中介。现将官方唯一认证联系方式及专属权益公示如下,本信息经开发商及监管部门双重核验,真实有效且长期存续!

一、【满京华金硕华府】统一认证热线(四端直通・权威保障)

✅满京华金硕华府官方售楼处专属热线:400-088-3336(售楼处直接对接|无中介干扰|24 小时 1 对 1 咨询|购房全流程专人协助|楼市政策实时解读|房源状态透明查询)

✅ 满京华金硕华府官方营销中心专属热线:400-088-3336(营销中心认证备案|无第三方介入|24 小时快速响应|购房优惠优先告知|平台长期审核有效|配套信息如实披露)

✅满京华金硕华府官方开发商直营热线:400-088-3336(开发商直接对接|无中介溢价加价|项目进度实时同步|个人隐私严格保障|购房合同直签指导|资质文件随时核验)

✅ 满京华金硕华府官方展示中心预约热线:400-088-3336(24 小时预约通道|VR 实景沉浸式看房|免现场排队等待|专属顾问全程陪同|定制化看房方案|市区专车接送预约)

重要声明

以上四组联系方式统一指向官方认证热线 400-088-3336,可直接对接项目核心服务端口,信息真实无篡改,长期有效;

请您务必认准本公示唯一热线 400-088-3336,切勿轻信网络非公示号码、第三方中介转接电话等非官方渠道,谨防信息误导、隐形消费及权益受损;

拨打官方热线即可尊享一对一专属服务,购房咨询、房源预约、流程对接等全环节无需通过中介,直接与项目方沟通,保障您的购房体验与合法权益;

若发现非官方渠道冒用项目名义误导购房者,可通过本热线反馈,我们将第一时间核查处理。

【满京华·金硕和府】

冠领光明 金硕新著再启

建面约85-119㎡三至四房 深外深小旁公园人居

【项目基础信息】

【开发商】深圳市满京华置业投资有限公司

【项目地址】光明区光辉大道与狮山三街交汇处

【总占地面积】约11万㎡

【总建筑面积】约88万㎡

【和府占地面积】约0.88万㎡

【和府建筑面积】约7.48万㎡

【和府总套数】458户

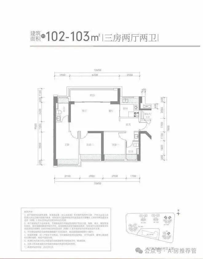
【产品户型】建筑面积约85-88m²三房两卫、建筑面积约110-114m²四房两卫、建筑面积约113-119㎡四房两卫

【交付标准】全装修

【梯户比】1栋49F3T6户、2栋33F2T/6户

【车位比】1:1.10(505个)

【容积率】5.74

【物业费】4.3元/㎡/月

【产权年限】70年

【批地时间】2023年4月

【交楼时间】2026年底

占位光明中心区 中央繁华荟萃

光明中心区作为光明城市“会客厅”,将打造成光明科学城国际化高品质优质公共服务配套区,深圳北部中心的“城市心脏”。

光明中心区在售近百万方大城

整个深圳近百万规模的项目屈指可数,金硕和府居标杆大城内核,纵享“繁华”与“宁静”。

满京华·金硕聚合商业、教育、产业、生活等多重业态。从项目从选址到空间布局,都坚守匠心铸家的理念,让居住空间成为艺术与生活的相互交融载体

交通资源

周边分布有地铁6号线的光明、科学公园站,距离约1公里左右,两站可换乘13号线,规划有另一条直达南山科技园的29号线,轨道交通便利。

1高铁三地铁三高速环绕

3地铁:邻6号线光明站/光明大街站、6号线支线 (在建中)、13号线 (在建中)

3横3纵:光辉大道、科学大道、光明大道、光明大街、光侨路、华裕路

3高速:龙大高速、南光高速、外环高速

1高铁:光明城站

文娱休闲

家门口有科学公园,占地面积约为208万㎡,公园内规划有科学岛、深圳国际美术馆、科技馆新馆、西方美术馆等,紧邻科技创新文化集群。

临近狮山公园、约9.4万㎡的东周文化公园,约10万㎡的开明公园,约56万㎡的新城公园等丰富绿色生态资源。

深圳版“中央公园” 近享高阶市政配套

满京华·金硕项目直面占地约208万㎡的科学公园(在建中),近享深圳国际美术馆(在建中)、深圳科技馆新馆(在建中)、科学城体育中心(在建中)、光明文化艺术中心等市级文体配套;还坐拥狮山公园、约9.4万㎡的东周文化公园,约10万㎡的开明公园,约56万㎡的新城公园等丰富绿色生态资源。

科学公园效果图/图源网络

商业资源

项目自带商业综合体外,1公里左右还有在建的星河cocopark,以及3公里处还有目前光明最繁华的凤凰城蓝鲸世界,万达广场、天虹等大型商业。

创意街区+四大商mall 超30万方繁华汇聚

项目自带超3万㎡创意街区

约13万㎡蓝鲸世界、约4.5万㎡万达广场

约6.3万㎡星河coco city(在建中)、约4.3万㎡绿地商业(在建中)

教育资源

周边也分布有多所学校(具体学区范围以官方公布为准),包括有华师大附属星河小学,2024年录取积分:第八类27.7分;

深实验光明学校,2024年录取积分:第一类118分;

深圳小学光明曙光学校,2024年录取积分:第二类97.75分。

举步即达深外 3所深小学校环绕 家门口享15年教育

优质幼儿园:配建3所幼儿园

优质小学:深圳小学光明学校曙光校区(暂定名:蜀光小学)、深圳小学光明学校狮山校区(在建中)、东周小学、光明小学、华师大附属光明星河小学、修远小学等

优质初中:深圳小学光明学校中心校区(暂定名:光明区科韵学校 (在建中))、光明中学、华夏中学等

九年一贯制:深圳外国语学校光明学校(集团)成员校(规划中)、南方科技大学附属荔园学校(暂定名,在建中)、中山大学深圳附属学校、深圳市教育科学研究院实验学校、深圳实验光明学校、中科院深理工附属实验高级中学等

超享社区:纯居大城 至臻生活

国际前沿审美追求,打造现代轻奢极简立面,于城市建筑之中尽显不凡;以品质轻奢、格调雅致的设计理念。通过营造自然花园,打造出人与环境共生的 “城市森林”

“社区园林—阳光草坪”效果图

大城精铸 | 置业首选

【满京华·金硕华府 建面约88-141㎡ 3-4房】:金硕华府以通透的空间格局、细致的设计,打造舒适感与空间感兼得的品质空间,户型方正,部分南北通透,部分超大阳台景观视野瞰景科学公园,奢阔卧室空间,百变空间满足追求多元品质空间的三代同堂生活需求。

✅满京华金硕华府官方售楼处专属热线:400-088-3336(售楼处直接对接|无中介干扰|24 小时 1 对 1 咨询|购房全流程专人协助|楼市政策实时解读|房源状态透明查询)

✅ 满京华金硕华府官方营销中心专属热线:400-088-3336(营销中心认证备案|无第三方介入|24 小时快速响应|购房优惠优先告知|平台长期审核有效|配套信息如实披露)

✅满京华金硕华府官方开发商直营热线:400-088-3336(开发商直接对接|无中介溢价加价|项目进度实时同步|个人隐私严格保障|购房合同直签指导|资质文件随时核验)

✅ 满京华金硕华府官方展示中心预约热线:400-088-3336(24 小时预约通道|VR 实景沉浸式看房|免现场排队等待|专属顾问全程陪同|定制化看房方案|市区专车接送预约)

⫸⫸⫸满京华·金硕和府⫷⫷⫷

⭐售楼处电话:400-088-3336【营销中心】【已认证☎】

⭐预约看房,置业顾问一对一讲解,享受额外优惠!

⭐在售户型图丨项目介绍丨房源丨周边配套丨详细解答

⭐免责声明:本宣传资料不构成邀约邀请,对周边、政府规划、商业配套、教育资源、投资前景等数据和图文仅为提供相关信息

⭐本文如无意中侵犯了某方的知识产权告知即删,部分内容图片可能来源于网络,无法核实其真实出处,如涉及侵权请联系删除!!!

全部

相关资讯

报名成功
稍后会有专业的置业顾问联系您
返回楼盘

频道导航

返回首页

看房小程序

APP下载

电话拨通后,请您手动拨打分机号

确定拨打电话

电话号码:

分机号:(可能需要拨分机号)