♐♐【松茂御城】售楼处24小时电话:400-088-3336(开发商直销)现场详细解答丨项目介绍丨户型图丨在售房源丨特价房丨学校丨交通位置丨样板房丨小区图片丨交房时间丨周边配套丨
♐♐售楼处电话☎:400-088-3336【售楼处预约热线】(一对一热情服务)
看房请务必提前致电销售确认时间,只有预约客户才能享受开发商提供的内部优惠以及专属的老客户推荐奖励!我们提供专业的一对一热情服务,助您以专业视角挑选理想的房产。

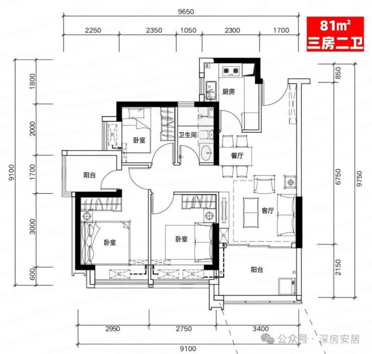
81平做三房已经很牛了,没想到还有更厉害的,松茂御城81平居然做四房!真是刚需福音!
松茂御城二期于2025年8月28日取证入市,本次拿证1栋A座-H座,共874套房源,面积有81㎡的3房2卫,89-109㎡的4房2卫,135m²的5房2卫户型,备案均价4.42万/m²,备案单价3.79-5.09万/m²,总价在304-685万/套,
松茂御城是整个光明唯二带深中、深实验、光明实验三大名校学区的新房,另一个是华润润臻园,不过跟润臻园超高层不同,其全部都是总高31-32层的住宅,也是准现房。
备案价格表

松茂御城二期开盘也给出了9.12折的综合优惠,虽然松茂御城二期全部房源都有拿证,但是这次实际上只首推1栋B/G/H/E座这4栋,共333套房源。
项目区域及楼盘介绍
松茂御城2期,位于光明区凤凰街道塘尾社区松白路与塘尾路交汇处,光明对外交通便捷。区内南光、龙大2条高速北连东莞市,南接福田区、南山区,距深圳中心区、宝安国际机场、前海蛇口自贸片区仅30分钟车程;大外环高速贯穿深圳东西,地铁6号线串联宝安、光明、龙华、福田等区,6号线支线将与东莞市轨道交通衔接,13号线北延段将经光明直达东莞市松山湖;广深港客专与赣深客专、深莞增城际(规划中)途经光明,在光明城站乘坐高铁30分钟可达广州、香港。
松茂御城,由松茂集团开发,总占地面积约4.53万㎡,总建筑面积约29.78万㎡,容积率4.67,绿化率40%,共分2期开发打造,后期将会有风雨连廊连接在一起,总规划2130户,停车位2321个,车位占比约1:1.09。
首推的松茂御城1期,总占地面积约1.4万㎡,总建筑面积约10.21万㎡,共由4栋住宅组成,其中1栋A/B座住宅33F,1栋C座住宅32F,2栋公寓32F,共规划905户,其中商品房279套,回迁房112套,公租房124套,另外还有390套商务公寓,停车位773个。
本次将推出的松茂御城2期,总占地面积约3.13万㎡,总建筑面积约20.74万㎡,计容建筑面积约16.21万㎡,容积率4.55,绿化率40%,共由8栋总高31-32层高的住宅组成,其中1栋A/B/C/D/E/H座住宅32F,1栋F/G座住宅31F,2栋规划1所幼儿园。
总规划1225户,全部都是商品房,是否有回迁房暂不确定,大概率是没有的,其中1栋E座是楼王2梯4户,1栋A座跟1栋H座2梯6户,其它栋数2梯5户设计,地下室有2层,规划1548个车位,其中充电桩车位465个,车位比约1:1.26。

楼盘基础信息
1、开发商:深圳市松茂房地产集团有限公司
2、物业公司:深圳市海天泰物业管理有限公司
3、物业管理费:3.8元/㎡
4、总占地面积:84.53万/㎡
5、总建筑面积:29.78万/㎡
6、容积率:4.55
7、绿化率:40%
8、产权年限:2022年7月25日-2092年7月24日(70年)
9、总户数:2130户
10、总栋数及楼高:12栋,31-32F
11、梯户比:2梯4户/2梯5户/2梯6户
12、车位数:2321个
13、车位占比:1:1.09
14、交楼时间:一期现房,二期准现房
15、交楼标准: 精装
平面图及户型图
81m²的3房2厅2卫,1H栋01户型,设计的是竖厅南北通透格局,客厅3.3开间,客餐厅分离设计,四开间朝南,得房率76.1%(不含赠送),U型厨房,卫生间干湿分离,阳台4.29m²东北朝向看花园。套内面积61.91m²+赠送面积11.25m²=实用面积73.16m²,加上赠送后得房率89.88%。
81m²的3房2厅2卫,1H栋03户型,设计的是经典竖厅格局,客厅3.4米开间,LDKB一体化设计,三开间朝南,动静分区,得房率76.1%(不含赠送),U型厨房,卫生间干湿分离,阳台4.42m²西南朝向。套内面积61.85m²+赠送面积9.64m²=实用面积71.49m²,加上赠送后得房率87.91%。
81m²的3房2厅2卫,1G栋03户型,设计的是经典竖厅格局,客厅3.4米开间,LDKB一体化设计,三开间朝南,动静分区,得房率79.6%(不含赠送),U型厨房,卫生间干湿分离,阳台5.61m²东南向看花园。套内面积65.01m²+赠送面积10.33m²=实用面积75.34m²,加上赠送后得房率92.23%。
82m²的3房2厅2卫,1G栋05户型,设计的是经典竖厅格局,客厅3.4米开间,LDKB一体化设计,三开间朝南,动静分区,得房率79.6%(不含赠送),U型厨房,卫生间干湿分离,阳台5.44m²西南朝向。套内面积65.32m²+赠送面积10.31m²=实用面积75.63m²,加上赠送后得房率92.13%。
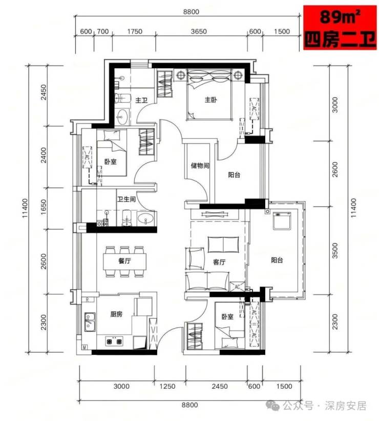
89m²的4房2厅2卫,1B栋01户型,设计的是竖厅南北通透格局,客厅3.5米开间,客餐厅分离设计,四开间朝南,得房率78.4%(不含赠送),U型厨房,卫生间干湿分离,阳台5.25m²东南朝向看松白路。套内面积70.34m²+赠送面积15.02m²=实用面积85.36m²,加上赠送后得房率95.17%。
89m²的4房2厅2卫,1B栋02户型,设计的是经典竖厅格局,客厅3.5米开间,LDKB一体化设计,四开间朝南,动静分区,得房率78.4%(不含赠送),U型厨房,卫生间干湿分离,阳台5.25m²东南朝向看松白路。套内面积70.35m²+赠送面积11.85m²=实用面积82.2m²,加上赠送后得房率91.62%。
109m²的4房2厅2卫,1B栋06户型,设计的是竖厅南北通透格局,客厅3.85米开间,客餐厅分离设计,四开间朝南,南北双阳台,得房率78.4%(不含赠送),U型厨房,卫生间干湿分离,阳台6.16m²西南朝向看花园。套内面积86.12m²+赠送面积16.43m²=实用面积102.55m²,加上赠送后得房率93.39%。
109m²的4房2厅2卫,1G栋02户型,设计的是经典竖厅格局,客厅3.9米开间,LDKB一体化设计,四开间朝南,动静分区,得房率79.6%(不含赠送),U型厨房,卫生间干湿分离,阳台6.43m²东南朝向看花园。套内面积87.19m²+赠送面积14.41m²=实用面积101.6m²,加上赠送后得房率92.73%。
135m²的5房2厅2卫,1G栋01户型,设计的是竖厅南北通透格局,客厅4.2米开间,客餐厅分离设计,四开间朝南,南北双阳台,得房率79.6%(不含赠送),U型厨房,卫生间干湿分离,阳台7.14m²东南向看花园。套内面积107.35m²+赠送面积21.81m²=实用面积129.16m²,加上赠送后得房率95.73%。
项目优劣势
1、区域板块,松茂御城不是当前的光明核心地段,不过从塘尾这么大面积的规划旧改体量来看,以后板块属性也不会差,毕竟有人口力支撑。
2、买房3件套,配套的深实验塘尾学校+深中光明科学城学校初中部,拥有2所四大名校加持,光明的生命线13号地铁线月亮路站距离400米,商业方面短期来看是短板,不过这么庞大的居住社区在周边,以后的商业体量肯定是不会差的,也会有大型商业会慢慢落地。
3、准现楼,松茂御城2期已经是准现房,所见即所得,不用担心烂尾或质量问题,外立面也是全部贴的瓷片,不是现在常见的外墙涂料。
4、得房率,松茂御城虽然是旧规楼盘,户型得房率明面上看备案数据是在77.27-79.26%,但是实际得房率是达到了100%的,也是光明得房率最高的楼盘,绝对名副其实,户型也做的很很好。
5、居住纯粹,松茂御城2期全部都是商品房,是否有回迁还不确定,相对于1期的居住人群纯粹很多,一期这里除了商品房外,还有回迁房+公租房+公寓,总共905户,其中商品房仅279套,如果只看一期地块,占比是不到31%的,并且都是共用的小区花园,包括公寓都是没有区分开的,都有共享园林。
项目现状
项目已经是准现房状态,即买即交付!实景拍摄
♐♐【松茂御城】售楼处24小时电话:400-088-3336(开发商直销)现场详细解答丨项目介绍丨户型图丨在售房源丨特价房丨学校丨交通位置丨样板房丨小区图片丨交房时间丨周边配套丨
♐♐售楼处电话☎:400-088-3336【售楼处预约热线】(一对一热情服务)
看房请务必提前致电销售确认时间,只有预约客户才能享受开发商提供的内部优惠以及专属的老客户推荐奖励!我们提供专业的一对一热情服务,助您以专业视角挑选理想的房产。
免责声明:
1、文章部分文字、图片、视频来源于网络。
2、我们所转载的文章、图片、音频视频文件等资料版权归版权所有人所有,因非原创文章及图片等内容无法和版权者联系
3.本网页如无意中侵犯了媒体或个人的知识产权,请留言或来电告知我们删除。