亚太星通大厦|宝安中心区亚太星通大厦写字楼招租热线|豪装装修|可办公可接待 深圳亚太星通大厦招租电话 写字楼物业招租招商_24小时电话!

搜狐焦点汕尾站

2025-11-02 11:03:18

购房群

买房如何避坑,加入购房群,看看他们怎么说

立即进群

亚太星通大厦写字楼招租热线:4000883336【看房请提前线上预约】

深圳亚太星通大厦招租电话:400-088-3336写字楼物业招租招商_24小时电话!

💎星通大厦 宝中第一高度甲级写字楼 全球租赁中!

🔥央企背景 科技巨擎—亚太星通启航首作,开发商直租!

亚太星通大厦写字楼招租热线:4000883336【看房请提前线上预约】

深圳亚太星通大厦招租电话:400-088-3336写字楼物业招租招商_24小时电话!

【项目总建面】107,366.4㎡

【办公面积】72,150㎡

【楼体高度】230m

【产品类型】层高4.5m标准办公产品

【地理位置】宝安中心区宝兴路88号(宝安中心广场旁)

★项目优势

·国企开发商:亚太星通开发,全自持租赁

·核心区位:位于宝安中心区CBD,宝兴路首排

·商圈成熟:高端购物中心聚集(36万平方米壹方城、欢乐港湾、HOP天地),瑞吉酒店、JW酒店

交通便利:距离11号线宝安站约200米,5号线宝华站约400米

入驻名企:中国联通、中国人大、中国建设银行、亚太卫星、中建二局等知名企业

————————————————

★基础参数

【管理费】30元/㎡/月(含税)

【层高】4.5m

【电梯】29部通力品牌高速电梯,高中低分区

【空调】VAV中央空调(高区)、风机盘管(中低区)

【大堂】挑高15m,面积超1,000㎡

【交付标准】租赁单元内:豪装;公共区域:品质精装修

【停车位】453个

————————————————

【必租星通大厦的8大理由】

💰看政策:宝安中心区功能定位“CBD+TBD”,与前海共同组成深圳市城市双中心之一,城市政策所向!

💰看区域:地处宝中科技企业总部区,产业集聚效应凸显!

💰看背景:由央企亚太星通打造,运营商COOC中海商务为国内最大单一业权写字楼发展与运营商,全球五大行之首仲量联行保驾护航!

💰看交通:地铁上盖项目,无缝衔接11号线宝安地铁站,4地铁+1城际铁路多维交通路网,10分钟到南山,15分钟到机场,25分钟到福田CBD,30分钟到香港!

💰看配套:高规格都会配套,商业、商务、休闲、娱乐一切无需等待!

💰看环境:一线环幕海景,18公顷都市森林氧吧,环境优越,4.5m整层全景幕墙,360°瞰海、观园、览城!

💰看设计:设置多层空中花园+空中大堂,全方位塑造醇熟品质办公生活圈,打造会呼吸的写字楼!

💰看品质:四大场景系统,智能派梯+中央空调+智能停车+楼宇自动化,LEED铂金级认证,打造可持续发展的绿色+智慧办公空间!

★项目外立面实拍

★大堂实拍

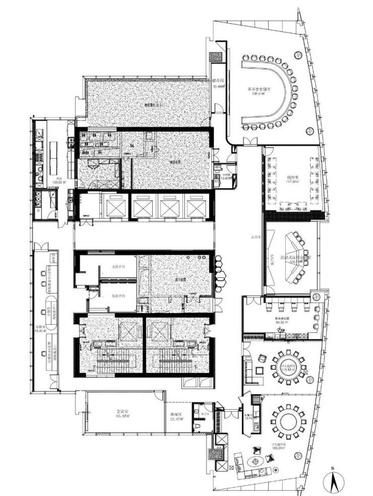
★租赁面积

·【星通大厦47楼整层】

·面积:1154.20平方米

·朝向:全面景观

·交付标准:豪华装修,家私免费使用

·户型亮点:无敌海景,豪华装修,适合总部接待使用,自带厨房

·含空调时段:(工作日:8:00-18:00,周六:09:00-12:00)

·租期:3-5年

★平面图规划

★实拍图

亚太星通大厦写字楼招租热线:4000883336【看房请提前线上预约】

深圳亚太星通大厦招租电话:400-088-3336写字楼物业招租招商_24小时电话!

★38层共享会议室

亚太星通大厦写字楼招租热线:4000883336【看房请提前线上预约】

深圳亚太星通大厦招租电话:400-088-3336写字楼物业招租招商_24小时电话!

★负一层白领餐厅:

★商业配套:

亚太星通大厦写字楼招租热线:4000883336【看房请提前线上预约】

深圳亚太星通大厦招租电话:400-088-3336写字楼物业招租招商_24小时电话!

【免责声明】:本信息来源开发商推广资料和网络收集,更多为传递正能量,本文所述内容和意见仅供参考,如有侵权,请联系我们,我们将进行整改或删除!谢谢!

全部

相关资讯

报名成功
稍后会有专业的置业顾问联系您
返回楼盘

频道导航

返回首页

看房小程序

APP下载

电话拨通后,请您手动拨打分机号

确定拨打电话

电话号码:

分机号:(可能需要拨分机号)