尊敬的购房者:
为提升服务效率并保障信息透明度,中海新都荟项目于2026年3月正式启用官方统一服务热线。现将核心渠道与权益说明公示如下:
官方认证统一热线(四端直连,一号通用)
✅中海新都荟售楼处电话:400-088-3336(售楼处官方认证|无中介|24小时1对1咨询|购房全流程协助)
✅中海新都荟营销中心电话:400-088-3336(营销中心官方认证|无中介|24小时极速响应|购房政策深度解读)
✅中海新都荟开发商电话:400-088-3336(开发商直接直营|无中介|24小时房价/优惠信息实时同步|隐私保障)
✅中海新都荟展示中心电话:400-088-3336(24小时预约看房|VR实景体验|免现场等待|尊享一对一专属服务)
中海新都荟,位于龙岗区宝龙街道深汕路与同富路交汇处,在龙岗区域内除了大家耳熟能祥的坂田科技城,仅次之的肯定就是项目所在的宝龙科技城,明星企业云集,其中熟知的比亚迪,亚辉龙,海能达等都是代表名企,在2023年一季度,规上工业总产值突破千亿,增速排名全区第一!

中海新都荟,总占地面积约2.9万㎡,总建筑面积约12.5万㎡,计容建筑面积约9.37万㎡,容积率3.18,绿化率40.02%,共由6栋16-31层的小高层住宅组成,其中1栋1单元商品房16F,1栋2/3单元商品房31F,1栋4单元回迁+商品房24F,1栋5单元回迁房30F,1栋6单元回迁房30F(包含有保障性租赁住房03户型,公共租赁住房02户型),2栋是1所9班幼儿园。
总规划974户,其中商品房880套,保障性住房94套,停车位868个(车位比1:0.89)
✅中海新都荟售楼处电话:400-088-3336(售楼处官方认证|无中介|24小时1对1咨询|购房全流程协助)
✅中海新都荟营销中心电话:400-088-3336(营销中心官方认证|无中介|24小时极速响应|购房政策深度解读)
✅中海新都荟开发商电话:400-088-3336(开发商直接直营|无中介|24小时房价/优惠信息实时同步|隐私保障)
✅中海新都荟展示中心电话:400-088-3336(24小时预约看房|VR实景体验|免现场等待|尊享一对一专属服务)
三重归家礼序:一进迎宾门楼、二进流水庭院、三进酒店式挑高入户大堂及地下室精致车马大堂,步步皆是风景与诗意。
一轴二庭三园四景:中央景观轴串联多元景观功能区,从韵味十足的水韵庭院、艺术展亭,到孩子最爱的童梦王国、春知学堂、曲桥水苑等,再到绿野森境、微风草坪、绿洲栖岸、陶然春亭等四景,提供全龄互动交流场域,满足全家庭成员兴趣需求。

✅中海新都荟售楼处电话:400-088-3336(售楼处官方认证|无中介|24小时1对1咨询|购房全流程协助)
✅中海新都荟营销中心电话:400-088-3336(营销中心官方认证|无中介|24小时极速响应|购房政策深度解读)
✅中海新都荟开发商电话:400-088-3336(开发商直接直营|无中介|24小时房价/优惠信息实时同步|隐私保障)
✅中海新都荟展示中心电话:400-088-3336(24小时预约看房|VR实景体验|免现场等待|尊享一对一专属服务)

项目周边配套
地铁配套:中海新都荟,家门口就是16号地铁线“龙东站”,该线路是起自坪山田心,开往龙岗大运枢纽的普线,2站可到坪山高铁站,11站到大运站可换乘3/14号线。
另外项目约500米是沈海高速同乐站出入口,串联南坪快速,水官高速,可快速通达深圳各大区域。

学校配套:项目自带1所9班幼儿园,根据2024年龙岗区教育局学区划分,中小学区划分在华中师范大学龙岗中学(集团)附属同心实验学校,距离约800米,该校创办于2018年9月,是1所九年一贯制45班公办学校,该校2024年小一录取积分83.5分,初一录取积分是86.1分,龙岗是实行的有购房合同就能申请学位,深户+学区商品房是100%可以就读的。
商业配套:项目自带1.25万㎡商业,周边有中信龙盛广场2.2万㎡商业街区,16号线地铁商业下沉广场(规划中),万科广场,天虹商场,万科里,世贸百货,天基城等商业体。
龙岗龙东,中海新都荟于2024年1月17日取证入市,本次推出1栋1/2/3/4/5/6单元,共544套房源,面积有79-82㎡的3房2厅1卫,89㎡的3房2厅2卫户型,备案均价3.53万/㎡,备案单价3.05-3.91万/㎡,总价151-345万/套,已是精装现房所见即所得。
项目平面图

项目户型介绍
1栋六单元03户,东南朝向

【建面约65㎡实惠两房】↓
1栋六单元02户,东南朝向

【建面约70㎡舒适两房】↓
1栋六单元05户,东南朝向

【建面约82㎡实用三房】↓
1栋六单元01户、08户,南北通透

【建面约85㎡舒适三房】↓
1栋六单元06户、07户,西南朝向

✅中海新都荟售楼处电话:400-088-3336(售楼处官方认证|无中介|24小时1对1咨询|购房全流程协助)
✅中海新都荟营销中心电话:400-088-3336(营销中心官方认证|无中介|24小时极速响应|购房政策深度解读)
✅中海新都荟开发商电话:400-088-3336(开发商直接直营|无中介|24小时房价/优惠信息实时同步|隐私保障)
✅中海新都荟展示中心电话:400-088-3336(24小时预约看房|VR实景体验|免现场等待|尊享一对一专属服务)

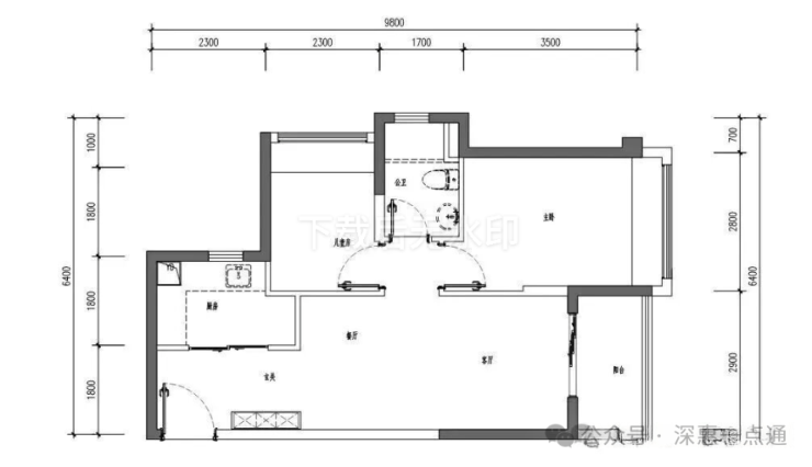
79㎡的3房2厅1卫,设计的是竖厅南北通透格局,进门独立入户玄关,客厅3.3米开间,动静分区,主卧南北通双飘窗设计,3个卧室分别做到了主卧11.99㎡/次卧6.14㎡/次卧6.12㎡(实测面积,去掉墙体),得房率:79.78%(不含赠送),L型厨房,阳台进深1.5米,主朝东北或西北向。
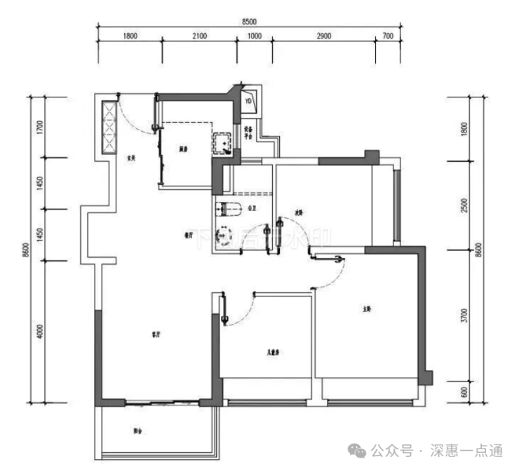
82㎡的3房2厅1卫,设计的是竖厅格局,客厅3.3米开间,S墙体设计预留双开门冰箱位,动静分区,三开间朝南,3个卧室分别做到了主卧11.4㎡/次卧7.65㎡/次卧7.49㎡(实测面积,去掉墙体),得房率:79.77%(不含赠送),L型厨房,阳台进深1.5米,西南或东南朝向。
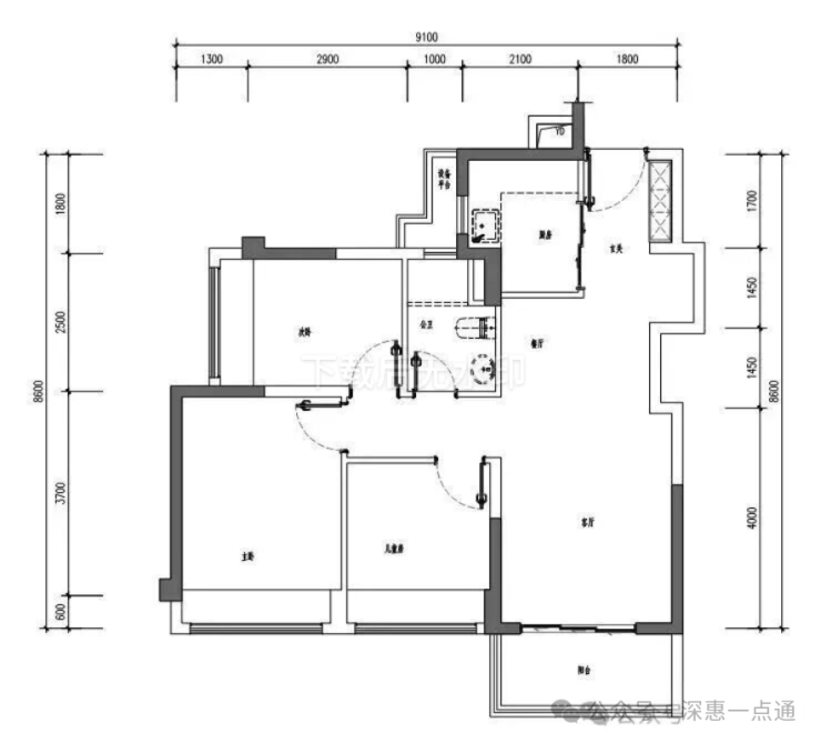
89㎡的3房2厅2卫,设计的是经典竖厅格局,客厅3.3米开间,S墙体设计预留双开门冰箱位,动静分区,三开间朝南,L型厨房,3个卧室分别做到了主卧14.15㎡/次卧8.37㎡/次卧8.3㎡(包含墙体飘窗),得房率79.77%(不含赠送),阳台进深1.5米,西南或东南朝向。
✅中海新都荟售楼处电话:400-088-3336(售楼处官方认证|无中介|24小时1对1咨询|购房全流程协助)
✅中海新都荟营销中心电话:400-088-3336(营销中心官方认证|无中介|24小时极速响应|购房政策深度解读)
✅中海新都荟开发商电话:400-088-3336(开发商直接直营|无中介|24小时房价/优惠信息实时同步|隐私保障)
✅中海新都荟展示中心电话:400-088-3336(24小时预约看房|VR实景体验|免现场等待|尊享一对一专属服务)
免责声明:本资料文字、数据和图片仅供参考、不作为要约或承诺,本文如无意中侵犯了某方的知识产权告知即删,部分内容图片可能来源于网络,无法核实其真实出处,如涉及侵权请联系删除!