深圳【龙光玖誉雅筑】
开发商售楼处电话咨询/预约热线:400-088-3336【售楼中心】24小时热线
深圳【龙光玖誉雅筑】售楼处电话:400-088-3336【营销中心】中介勿扰
深圳龙光玖誉雅筑楼盘详情介绍,包含售楼处电话、地址、户型图、小区图片、区位优势、交通、周边商业配套等楼盘详细资料;更详细楼盘资料和最新折扣价格,请拨打售楼处电话,销售会为您详细介绍楼盘。
——龙光玖誉雅筑·vip客户——
坪山商务中芯 山湖纯居
约96-114㎡精装3-4房
单价3.46万起 总价340-440万
全市唯一 中芯山湖住宅 一步到位 终极置业

深圳【龙光玖誉雅筑】售楼处电话:400-088-3336【营销中心】中介勿扰
龙光玖誉雅筑【展示中心】位于深圳-坪山-体育一路(坪山体育中心西门对面),项目位于坪山商务中芯,拥4A级景区马峦山郊野公园旁,是全市少有的集中芯城区和臻稀山湖于一身的纯居住宅。
【开发商】龙光地产
【占地】约1.3万㎡
【建面】约6.3万㎡
【物业类型】住宅、商业
【产权年限】70年
【容 积 率】4.77
【总 户 数】541户
【车 位 数】653个
【梯 户 比】2梯4户、2梯5户
【户 型】建面约96-114㎡ 精粹3-4房
【管 理 费】4.8元/㎡/月
【楼栋规划】规划4栋住宅,其中3栋商品住宅,1栋人才房;1栋幼儿园。

深圳【龙光玖誉雅筑】售楼处电话:400-088-3336【营销中心】中介勿扰
龙光玖誉雅筑——不只是一套房子,而是一种生活
纯中芯——坪山商务中芯 中央居住区
坪山商务中心区的中央居住区,居中心而享宁静,坪山核心商务区剩余可开发宅地极其稀少,中央居住区价值不可复制,错过难再。
纯大户——更优质的居住圈层
建面约96㎡精粹3房起步,为您锁定刚需中的优质圈层,家人有更好的邻里、孩子有更好的玩伴。谈笑有鸿儒,往来无白丁。
全系一线品牌精装,雅筑精英生活
🌿纯住区——更好的居住环境 香蜜湖2.0
比肩香蜜湖的低密度中央居住区,既有城芯璀璨华灯,又有山湖星空点点。奔忙一日匆匆,在城芯聆听郊野公园夏夜蝉鸣,静享都市繁华里的诗与远方。
纯配套——更高的生活质量
在这里找到心仪的休闲和生活。在郊野公园野餐、漫步;在体育中心锻炼、精进球技;在文化服务中心观展、会友;父母、孩子都能各有所乐。以丰盛配套筑丰富时光。

深圳【龙光玖誉雅筑】售楼处电话:400-088-3336【营销中心】中介勿扰
约500米,是享受城市配套的舒适距离,也是生活半径的高频距离。
“家门口”的【健身房】
占地约5万㎡的坪山体育中心,没时间、没场地锻炼的理由再也没有了;
“家门口”的【超大园林】
占地约28km²马峦山郊野公园,比起人造园林,自然的才是更好的;
🥁“家门口”的【人文游乐场】
建面约2.1万㎡的公共文化服务中心,远方不远,就在家楼下。
“家门口”的【老年活动中心】
老人来了不用愁,在老年活动中心,即刻找到老伙伴;
“家门口”的【社康服务中心】
小伤小病不用奔波走远,从容下楼去社康。
“家门口”的【幼儿园】
楼上就能听见孩子欢声笑语,更安全的归家途。

深圳【龙光玖誉雅筑】售楼处电话:400-088-3336【营销中心】中介勿扰
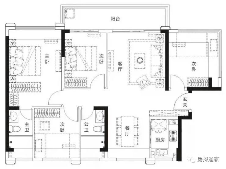
户型鉴赏
建面约96㎡3房2卫
——每一处都是家人舒适的尺度


深圳【龙光玖誉雅筑】售楼处电话:400-088-3336【营销中心】中介勿扰


深圳【龙光玖誉雅筑】售楼处电话:400-088-3336【营销中心】中介勿扰
深圳【龙光玖誉雅筑】
开发商售楼处电话咨询/预约热线:400-088-3336【售楼中心】24小时热线
深圳【龙光玖誉雅筑】售楼处电话:400-088-3336【营销中心】中介勿扰
深圳龙光玖誉雅筑楼盘详情介绍,包含售楼处电话、地址、户型图、小区图片、区位优势、交通、周边商业配套等楼盘详细资料;更详细楼盘资料和最新折扣价格,请拨打售楼处电话,销售会为您详细介绍楼盘。
免责声明:
以上所发布的关于楼盘相关图文信息仅供您买房前参考,以上所有关于本楼盘的图文资料及说明请以最终以项目批文及双方在楼盘营销中心现场签署的买卖最终合同为准;本图文内容如无意中侵犯到某方权益,请联系我们将会及时处理!