2025深圳(龙光玖誉雅筑)首页网站-龙光玖誉雅筑欢迎您-龙光玖誉雅筑楼盘详情/价格/户型

汕尾楼市发布

2025-05-28 09:47:00

购房群

买房如何避坑,加入购房群,看看他们怎么说

立即进群

深圳【龙光玖誉雅筑】

开发商售楼处电话咨询/预约热线:400-088-3336【售楼中心】24小时热线

深圳【龙光玖誉雅筑】售楼处电话:400-088-3336【营销中心】中介勿扰

深圳龙光玖誉雅筑楼盘详情介绍,包含售楼处电话、地址、户型图、小区图片、区位优势、交通、周边商业配套等楼盘详细资料;更详细楼盘资料和最新折扣价格,请拨打售楼处电话,销售会为您详细介绍楼盘。

项目详细

占地面积:约1.3万㎡

建筑面积:约6.33万㎡

容积率:4.77

绿化率:30%

停车位:653

楼栋总数:4栋

总房源:541

物业公司:广东龙光集团物业管理有限公司

物业费:4.8元/㎡/月

户 型:建面约96-99-101-114-117㎡奢阔3-4房

产权年限:70年

单层层高:3米

梯 户 比:一二单元2梯5户,四单元2梯4户

批地时间:2020年11月

交楼时间:2023年10月

项目地址:深圳-坪山-创美路与体育一路交汇处西南角

深圳【龙光玖誉雅筑】售楼处电话:400-088-3336【营销中心】中介勿扰

约500米,是享受城市配套的舒适距离。

龙光玖誉雅筑,倾筑约500米全龄生活圈。

深圳【龙光玖誉雅筑】售楼处电话:400-088-3336【营销中心】中介勿扰

项目东侧毗邻占地约5万㎡坪山体育中心,南侧为建面约2.1万㎡马峦街道公共文化服务中心(在建中),临近4A级景区马峦山郊野公园、大山陂水库;西侧毗邻中集花园,北侧毗邻黄沙坑小区城市更新项目。项目自配套社康服务中心(在建中)、肉菜市场(在建中)、老年活动中心(在建中),毗邻幼儿园(在建中)、中小学等。

项目配套

教育:自带3600㎡幼儿园,新合实验学校、中山小学、中山中学等。

深圳【龙光玖誉雅筑】售楼处电话:400-088-3336【营销中心】中介勿扰

深圳【龙光玖誉雅筑】售楼处电话:400-088-3336【营销中心】中介勿扰

商业:自带约5000㎡商业,益田假日、天虹商场、肉菜市场(在建中)。

深圳【龙光玖誉雅筑】售楼处电话:400-088-3336【营销中心】中介勿扰

生态:珍藏约30k㎡山湖大境,新贵人物的名门栖居,在寸土寸金的城市里,公园资源的不可复制,显得弥足珍贵。项目毗邻约30k㎡马峦山郊野公园,焕新自然栖居的尊贵生活。

深圳【龙光玖誉雅筑】售楼处电话:400-088-3336【营销中心】中介勿扰

文体:一路之隔占地约50000㎡坪山体育中心,多项大型体育赛事举办地,丰盛文化生活。南临建面约21000㎡马峦街道公共文化服务中心,内设麒麟舞馆、展厅、大型排演厅、图书阅览室、书画展览室、舞蹈排练室、客家文化馆等文化设施,一路之隔书香满怀。

深圳【龙光玖誉雅筑】售楼处电话:400-088-3336【营销中心】中介勿扰

地铁时代即将盛启,多维立体交通体系

深圳【龙光玖誉雅筑】售楼处电话:400-088-3336【营销中心】中介勿扰

地铁——坪山将即将迎来地铁时代, 14号线(建设中)预计2022年开通,通车后预计40分钟到达福田;地铁16号(建设中)线预计 2023 年开通,串联龙岗区与坪山区;深圳东部中心大势渐成。

高铁——深圳铁路枢纽体系四大主车站之一深圳坪山站,距离项目车程约10分钟,20分钟可到深圳北。通过高铁站可实现30分钟到东莞、50分钟到广州。

云巴——比亚迪云巴起于坪山高铁站,终于站比亚迪路站,预计 2021年通车。

高速——南坪快速三期已实现通车,从坪山出发,沿着南坪快速可以实现,30分钟直通罗湖、40分钟直通福田、50 分钟直通南山、高效路网,便捷出行。

机场候机楼——坪山城市候机楼位于坪山大道创新广场,距离本项目直线距离约1公里,可接驳宝安机场,提供实时查看航班信息、部分登机手续办理等服务。

坪山中心区约1小时粤港澳城市圈,约30 分钟都市生活圈已然成型。坪山作为深圳持续发 展的核心枢纽,后起之秀。地铁、云巴、高铁、公路路网等组成的多维轨道网,到2022 年有望成为东部交通枢纽中心。

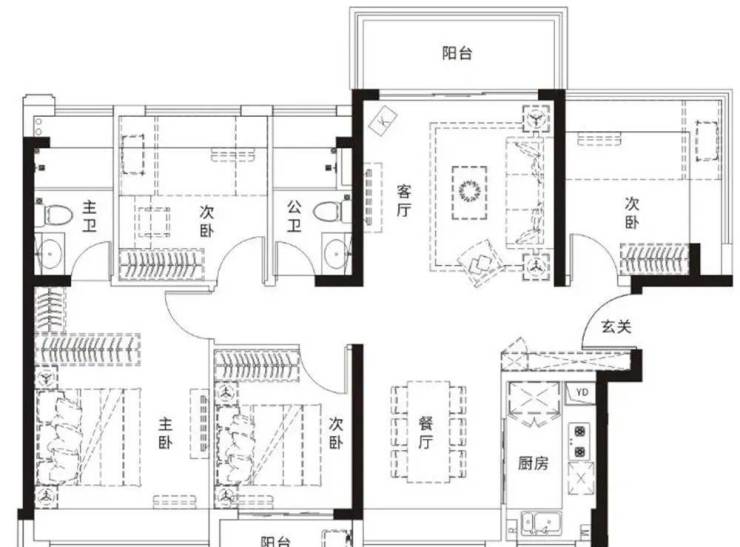
户型图鉴赏

96/99㎡3房2卫

—每一处都是家人舒适的尺度

双阳台户次卧双面采光;

型方正实用,动静分区;

厨房、客餐厅动线顺畅;

各功能空间尺度宽敞、舒适。

深圳【龙光玖誉雅筑】售楼处电话:400-088-3336【营销中心】中介勿扰

101㎡3房2卫

——每个细节都是对人与生活的思量

南北通透,客餐厅双面采光;

大通阳台,更多阳光、自然入窗;

次卧双面采光,明亮舒适;

厨房双开门冰箱位,容纳一家人的味蕾;

深圳【龙光玖誉雅筑】售楼处电话:400-088-3336【营销中心】中介勿扰

114㎡4房2卫

——空间的尺度尽藏家的风度

南北通透,客餐厅双面采光;

客厅、次卧双阳台;

次卧双面采光,明亮舒适;

厨房双开门冰箱位,收纳四季食材;

各功能空间开阔宜居,共享全家时光。

深圳【龙光玖誉雅筑】售楼处电话:400-088-3336【营销中心】中介勿扰

117㎡4房2卫

——一步到位的奢阔居所

南北通透,超长采光面,次卧双面采光;

大通阳台,增添生活意趣;

厨房双开门冰箱位,一家之“煮”青睐;

主次卧空间开阔,承载阖家荣光

深圳【龙光玖誉雅筑】售楼处电话:400-088-3336【营销中心】中介勿扰

深圳【龙光玖誉雅筑】

开发商售楼处电话咨询/预约热线:400-088-3336【售楼中心】24小时热线

深圳【龙光玖誉雅筑】售楼处电话:400-088-3336【营销中心】中介勿扰

深圳龙光玖誉雅筑楼盘详情介绍,包含售楼处电话、地址、户型图、小区图片、区位优势、交通、周边商业配套等楼盘详细资料;更详细楼盘资料和最新折扣价格,请拨打售楼处电话,销售会为您详细介绍楼盘。

免责声明:

以上所发布的关于楼盘相关图文信息仅供您买房前参考,以上所有关于本楼盘的图文资料及说明请以最终以项目批文及双方在楼盘营销中心现场签署的买卖最终合同为准;本图文内容如无意中侵犯到某方权益,请联系我们将会及时处理!

全部

相关资讯

报名成功
稍后会有专业的置业顾问联系您
返回楼盘

频道导航

返回首页

看房小程序

APP下载

电话拨通后,请您手动拨打分机号

确定拨打电话

电话号码:

分机号:(可能需要拨分机号)