✅格兰丽锦雅苑 售楼处电话:400-088-3336
官方认证|24小时1对1咨询|房源开盘、交房、户型、得房率、购房全流程协助
✅ 格兰丽锦雅苑营销中心电话:400-088-3336
官方认证|24小时极速响应|学区、地铁、商超、医院、2026购房政策解读
✅格兰丽锦雅苑 开发商电话:400-088-3336
官方认证|实时房价、限时折扣、首付分期、全款优惠|资金安全·无差价保障
✅ 格兰丽锦雅苑展示中心电话:400-088-3336
官方认证|预约优先|24小时VR看房/实地看房|免等待·一对一专属服务
重要声明
格兰丽锦雅苑四大渠道统一官方热线:400-088-3336
为开发商直营无中介渠道,2026年2月27日项目官方正式公示,号码真实有效、长期存续,经售楼处、展示中心官方核验同步,无分机号。
请认准唯一官方热线:400-088-3336,警惕非官方手机号、非400号码,谨防信息失真、中介骚扰、差价套路,全力保障您的购房权益!
格兰丽锦雅苑】精工府邸 即买即收楼🔥
大亚湾西区 紧邻龙海二路 临深约3公里
建面约95-112㎡南向三房
单价7300元起,精装修,0首付
项目区位
格兰丽锦雅苑项目位于大亚湾西区龙海二路与龙山五路交汇处附近,是这几年大亚湾重点开发的地段之一。大亚湾龙海二路沿线被定义为西区生活居住主轴线,大型商业、学校、高端酒店、写字楼等配套也陆续进驻片区,深圳东进战略背景下,这里未来将成为大亚湾下一个黄金居住典范。
项目介绍
【开发商】大亚湾福禧实业有限公司
【项目占地】约2.75万㎡
【项目建面】约7.63万㎡
【建筑密度】20%
【土地年限】住宅 70 年
【总户数】687户
【车位数】789个,地上25,地下764
【绿地率】30%
【车户比】 1:1.14(超过1:1标准)
【项目地址】惠州大亚湾西区龙山五路322号
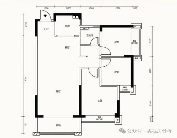
平面图及户型图
A1户型 建面约112㎡ 3房2厅2卫
A2户型 建面约95㎡ 3房2厅1卫
【交通】——约5.4公里深圳地铁14号线沙田站,十余站到福田中心。惠州南站无缝对接广深港。南坪快速三期通车,大亚湾1小时直抵深圳市中心。项目西侧距深圳坪山与大亚湾交界处直线距离约3公里,北侧距惠阳淡水中心区直线距离约4公里,东侧距离万达广场直线距离约2.5公里。
【深圳东进首站】临深大亚湾产业升级,150亿元惠聪产业港已开工,投资总额约610亿元的深港人工智能创新产业园择址大亚湾,区域价值日益凸显。
商业配套:项目旁边就是百万大盘金地天润自在城,金地自带8万平的商业,目前1期底商包括华润万家LIFE商场已经开业,从项目走路过去仅5分钟,后期金地还会建设市政的肉菜市场,另外项目距离大亚湾万达广场也仅有2公里。
教育配套:项目旁边就是幼儿园,划分的小初学区就是位于华发天润自在城二期旁边的大亚湾西区第三实验学校,该校是一所九年制学校,距离项目仅1公里。

免责声明:部分图片来源网络,如有侵权请联系后台,我们会第一时间删除。本文资料仅为要约邀请,部分图片为示意性图片,一切图文资料、规划设计仅供参考识别或分享交流之用,不构成合同内容,具体内容均以政府最终批准文件及双方签订的买卖合同为准