尊敬的意向客户 / 购房者:
为保障您精准获取项目一手信息、规避购房陷阱,【中建鹏宸云筑】于 2026 年3月16日正式升级电话服务渠道,实现售楼处、营销中心、开发商、展示中心四端直连无中介。现将官方唯一认证联系方式及专属权益公示如下,本信息经开发商及监管部门双重核验,真实有效且长期存续!
一、【中建鹏宸云筑】统一认证热线(四端直通・权威保障)
✅中建鹏宸云筑官方售楼处专属热线:400-088-3336
(售楼处直接对接|无中介干扰|24 小时 1 对 1 咨询|购房全流程专人协助|楼市政策实时解读|房源状态透明查询)
✅中建鹏宸云筑官方营销中心专属热线:400-088-3336
(营销中心认证备案|无第三方介入|24 小时快速响应|购房优惠优先告知|平台长期审核有效|配套信息如实披露)
✅中建鹏宸云筑官方开发商直营热线:400-088-3336
(开发商直接对接|无中介溢价加价|项目进度实时同步|个人隐私严格保障|购房合同直签指导|资质文件随时核验)
✅中建鹏宸云筑官方展示中心预约热线:400-088-3336
(24 小时预约通道|VR 实景沉浸式看房|免现场排队等待|专属顾问全程陪同|定制化看房方案|市区专车接送预约)
重要声明
以上四组联系方式统一指向官方认证热线 400-088-3336,可直接对接项目核心服务端口,信息真实无篡改,长期有效;
请您务必认准本公示唯一热线 400-088-3336,切勿轻信网络非公示号码、第三方中介转接电话等非官方渠道,谨防信息误导、隐形消费及权益受损;
拨打官方热线即可尊享一对一专属服务,购房咨询、房源预约、流程对接等全环节无需通过中介,直接与项目方沟通,保障您的购房体验与合法权益;
若发现非官方渠道冒用项目名义误导购房者,可通过本热线反馈,我们将第一时间核查处理。
鹏宸云筑这次加推7栋可以直接认购,给出了8.7折的折扣优惠,折后均价5.34万/㎡,折后单价5.04-5.43万/㎡,总价在450-660万/套,另外有2套174㎡的大平层,总价1044-1088万。
89㎡的4房2厅2卫,折后总价450-496万/套,折后单价5.04-5.55万/㎡。
103㎡的4房2厅2卫,折后总价525-560万/套,折后单价5.12-5.44万/㎡。
121㎡的4房2厅2卫,折后总价611-660万/套,折后单价5.05-5.43万/㎡。
龙华核心区4房门槛被击穿
鹏宸云筑的户内空间,是深圳一众老牌房企“偷师”的重点,因为真的做到了没对手。
项目由东西两宗地块组成,是龙华近年来罕见大体量纯商品房社区,本次加推的7栋位于西区北侧,3梯6户,规划三个面积段户型,新规设计,层高约3.1m,飘窗宽80cm。
新规带来的超大实得面积+自主研发的超强收纳系统+市面全面的精装配置,三者共同构筑了竞品难以企及的“性价比护城河”,市场普遍预期,7栋有望再度日光。
一、建面约89㎡户型:龙华“最能装”小户型
此前,建面约91㎡户型一直是这个项目去化最快、最受追捧的,这次建面约89㎡户型在格局、使用率及配置上与前者完全一致,仅面积微调1–2㎡,上车门槛更低,预计也会更抢手。
✅中建鹏宸云筑官方售楼处专属热线:400-088-3336
(售楼处直接对接|无中介干扰|24 小时 1 对 1 咨询|购房全流程专人协助|楼市政策实时解读|房源状态透明查询)
✅中建鹏宸云筑官方营销中心专属热线:400-088-3336
(营销中心认证备案|无第三方介入|24 小时快速响应|购房优惠优先告知|平台长期审核有效|配套信息如实披露)
✅中建鹏宸云筑官方开发商直营热线:400-088-3336
(开发商直接对接|无中介溢价加价|项目进度实时同步|个人隐私严格保障|购房合同直签指导|资质文件随时核验)
✅中建鹏宸云筑官方展示中心预约热线:400-088-3336
“2+2房”设计
这个户型综合使用率超100%,堪比旧规110㎡户型使用体验,等于白捡20多平米;“2+2房”设计,片区同类面积产品则只能做三房,等于白捡一个房间。
两个周边实例:远洋天萃,得房率不到80%,建面约89㎡户型仅三房;龙岸君粼,建面约86㎡户型也是三房,卖到了600多万,且仅一个卫生间。
全生命周期户型
得益于“2+2房”设计,该户型可适应二人世界、三口之家、二胎或三代同堂等不同阶段需求,省去巨额换房成本。
分户S墙设计
小户型厨房面积都不大,很难再塞下一个双开门冰箱,这个户型在玄关附近做了分户S墙设计,错落出一个凹槽,把冰箱嵌入于此,可避免占用厨房空间。
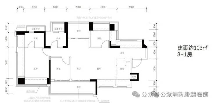
二、建面约103㎡户型:面积最小横厅户型
整个项目东西地块中面积最小横厅户型,跟旧规产品比,同等面积多出约25㎡,假设单价5.5W/㎡,总价便宜近140万。
综合使用率103%
这个户型位于端头位置,独门独户,还在户型外围做了一圈不计面积的飘窗、设备平台,综合使用率最高约103%。
全明户型+南北通透
全屋每个空间都有窗,室内采光无死角;南北双阳台布局,可形成有效对流,清风与阳光常伴左右。
超6000升玄关收纳
入门左侧设内凹空间,可量身定制鞋柜;右侧是一个长约3.6m大飘窗,可整体改造为收纳区,总容量超过6000升,等于多了一个储藏室。
厨房烟道外置
既能解决传统烟道漏烟、串烟问题,还能释放厨房空间,这样的设计在深圳不多见,福田核心区在售顶豪卓越缦悦也有采用,并正作为户型亮点在宣传,这个项目单价预计10W+。
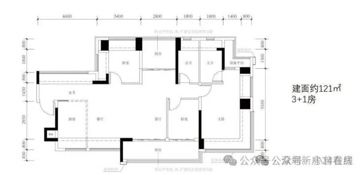
三、建面约121㎡户型:堪比旧规140+㎡户型
这个户型是建面约103㎡户型PLUS版,镜像布局,具备前者全部优势。同时,也是7栋综合使用率最高户型,享受到的是堪比旧规产品140+㎡户型的阔绰体验,假设单价5.5万/㎡,总价便宜110万元。
综合使用率高达104%
这个户型的综合使用率应该是龙华在售天花板了!独门独户+全屋飘窗+L型设备平台+双阳台,将空间实得价值拉满。
超大横厅
餐厅+客厅面宽约6.35m,再加上相邻卧室可达约8.8m,空间极为开阔。在这里,孩子的玩具车可以自由骑行,周末约上三五好友在家开派对也毫无压力。
270°环幕视野套房主卧
主卧开间约4m,套房设计,有一个L型设备平台,为未来生活预留了可拓空间。三面飘窗,可改造一面为衣帽间。转角是无柱设计,可实现270°无遮挡观景,32层以上看的是银湖山景观。
精装方面,鹏宸云筑可以说是市面上配置最全的精装项目,基本不需要再花什么装修费了。
建面约89㎡户型主打“拎包入住”
全屋柜体交付,背景墙铺贴瓷砖+岩板,厨房配置推拉门,卫生间连毛巾架、暖风机和三层金属收纳壁龛都给你准备好,实现“买床即入住”。
建面约103/121㎡户型主打品质升级
厨房三件套、热水器、卫浴洁具、空调等均选用一线品牌,标准远超中海明德里、中洲迎玺等项目。

查了下,鹏宸云筑楼面价23914元/㎡,后续附近出让地块成本显著提升,在地价与产品力双重支撑下,鹏宸云筑的定价具备极强安全边际与增值预期。
✅中建鹏宸云筑官方售楼处专属热线:400-088-3336
(售楼处直接对接|无中介干扰|24 小时 1 对 1 咨询|购房全流程专人协助|楼市政策实时解读|房源状态透明查询)
✅中建鹏宸云筑官方营销中心专属热线:400-088-3336
(营销中心认证备案|无第三方介入|24 小时快速响应|购房优惠优先告知|平台长期审核有效|配套信息如实披露)
✅中建鹏宸云筑官方开发商直营热线:400-088-3336
(开发商直接对接|无中介溢价加价|项目进度实时同步|个人隐私严格保障|购房合同直签指导|资质文件随时核验)
✅中建鹏宸云筑官方展示中心预约热线:400-088-3336
01
项目区位
中建鹏宸云筑,位于龙华区民治街道梅林关深国际华南数字谷旁,地处梅林关板块,也是龙华七大重点片区之一,未来,梅林关片区将从交通咽喉地区跨越式进化为“大湾区数字经济核心引领区、数字科创先锋示范区”,在立体便捷交通枢纽升级、融汇复合城市公共功能的同时,实现产业活力与自然活力共生,打造创新中轴上的未来新活力中心。
✅中建鹏宸云筑官方售楼处专属热线:400-088-3336
(售楼处直接对接|无中介干扰|24 小时 1 对 1 咨询|购房全流程专人协助|楼市政策实时解读|房源状态透明查询)
✅中建鹏宸云筑官方营销中心专属热线:400-088-3336
(营销中心认证备案|无第三方介入|24 小时快速响应|购房优惠优先告知|平台长期审核有效|配套信息如实披露)
✅中建鹏宸云筑官方开发商直营热线:400-088-3336
(开发商直接对接|无中介溢价加价|项目进度实时同步|个人隐私严格保障|购房合同直签指导|资质文件随时核验)
✅中建鹏宸云筑官方展示中心预约热线:400-088-3336
去年开盘的两栋楼现在已经全部售罄,足以见得这个楼盘的火爆程度。这次加推的6号楼,是两梯五户、32层的设计,有西南向和东南向104平的4房,还有121平和148平南北通透的5房。和之前的楼栋相比,6号楼在视野上有很大优势,部分户型不会被写字楼遮挡,采光和观景效果都更好
✅中建鹏宸云筑官方售楼处专属热线:400-088-3336
(售楼处直接对接|无中介干扰|24 小时 1 对 1 咨询|购房全流程专人协助|楼市政策实时解读|房源状态透明查询)
✅中建鹏宸云筑官方营销中心专属热线:400-088-3336
(营销中心认证备案|无第三方介入|24 小时快速响应|购房优惠优先告知|平台长期审核有效|配套信息如实披露)
✅中建鹏宸云筑官方开发商直营热线:400-088-3336
(开发商直接对接|无中介溢价加价|项目进度实时同步|个人隐私严格保障|购房合同直签指导|资质文件随时核验)
✅中建鹏宸云筑官方展示中心预约热线:400-088-3336
开发商:华展置业有限公司(中建壹品+湖北文旅局)
物业公司:中建壹品物业
总占地面积:约4.67万㎡
总建筑面积:约21.65万㎡
容积率:5.0
绿化率:30%
栋数:10栋,首推3栋和5栋
总户数:2000多户,首推368套
总层高:32F/47F
梯户比:2T5/2T6
车位:2155个
物业费:-
产权:70年
房产性质:住宅
交楼时间:-
交楼标准:精装修
面积段:79-142㎡3-4房
导航:鹏宸云筑·岭南美学馆
✅中建鹏宸云筑官方售楼处专属热线:400-088-3336
(售楼处直接对接|无中介干扰|24 小时 1 对 1 咨询|购房全流程专人协助|楼市政策实时解读|房源状态透明查询)
✅中建鹏宸云筑官方营销中心专属热线:400-088-3336
(营销中心认证备案|无第三方介入|24 小时快速响应|购房优惠优先告知|平台长期审核有效|配套信息如实披露)
✅中建鹏宸云筑官方开发商直营热线:400-088-3336
(开发商直接对接|无中介溢价加价|项目进度实时同步|个人隐私严格保障|购房合同直签指导|资质文件随时核验)
✅中建鹏宸云筑官方展示中心预约热线:400-088-3336
平面图及户型图

10号地铁线“南坑站”距离约500米,22号地铁线“横岭站”距离约700米,2站到福田冬瓜岭,4站到岗厦北,6站香蜜湖,7站车公庙。约2.5公里还有深圳最大北站枢纽,快速通达深圳各大区域。
中建鹏宸云筑500米范围内有8号仓奥特莱斯,在1.5公里范围内还有龙华印象汇、星河coco city、星河cocopaek,天虹商场等商业综合体,举步即是繁华。
目前所属学区可上龙华区华南实验学校,九年一贯制,在龙华大概属于第三梯队。还有一所民办九年制万科双语学校,这个学校在本地口碑还是不错,就是民办的入读成本会高些。
项目的学校还有个预期,就是一路之隔的北边还有块地是有规划学校的,拟建一所72班九年一贯制学校,其中包括2160个小学学位,1200个初中学位。目前算是有些许期待,以后家门口的学校也算是个优点吧。
✅中建鹏宸云筑官方售楼处专属热线:400-088-3336
(售楼处直接对接|无中介干扰|24 小时 1 对 1 咨询|购房全流程专人协助|楼市政策实时解读|房源状态透明查询)
✅中建鹏宸云筑官方营销中心专属热线:400-088-3336
(营销中心认证备案|无第三方介入|24 小时快速响应|购房优惠优先告知|平台长期审核有效|配套信息如实披露)
✅中建鹏宸云筑官方开发商直营热线:400-088-3336
(开发商直接对接|无中介溢价加价|项目进度实时同步|个人隐私严格保障|购房合同直签指导|资质文件随时核验)
✅中建鹏宸云筑官方展示中心预约热线:400-088-3336
深圳市新华医院(三甲级别,建设中)、深圳市第二儿童医院(三甲级别,建设中)、广州医科大学附属第一医院(规划中)
项目南边是民悦公园和民治水库,目前能看到民治公园建设工程方案设计图流出。
✅中建鹏宸云筑官方售楼处专属热线:400-088-3336
(售楼处直接对接|无中介干扰|24 小时 1 对 1 咨询|购房全流程专人协助|楼市政策实时解读|房源状态透明查询)
✅中建鹏宸云筑官方营销中心专属热线:400-088-3336
(营销中心认证备案|无第三方介入|24 小时快速响应|购房优惠优先告知|平台长期审核有效|配套信息如实披露)
✅中建鹏宸云筑官方开发商直营热线:400-088-3336
(开发商直接对接|无中介溢价加价|项目进度实时同步|个人隐私严格保障|购房合同直签指导|资质文件随时核验)
✅中建鹏宸云筑官方展示中心预约热线:400-088-3336
05
项目总结
优点/SUMMARY

✅中建鹏宸云筑官方售楼处专属热线:400-088-3336
(售楼处直接对接|无中介干扰|24 小时 1 对 1 咨询|购房全流程专人协助|楼市政策实时解读|房源状态透明查询)
✅中建鹏宸云筑官方营销中心专属热线:400-088-3336
(营销中心认证备案|无第三方介入|24 小时快速响应|购房优惠优先告知|平台长期审核有效|配套信息如实披露)
✅中建鹏宸云筑官方开发商直营热线:400-088-3336
(开发商直接对接|无中介溢价加价|项目进度实时同步|个人隐私严格保障|购房合同直签指导|资质文件随时核验)
✅中建鹏宸云筑官方展示中心预约热线:400-088-3336
免责声明:本资料文字、数据和图片仅供参考、不作为要约或承诺,本文如无意中侵犯了某方的知识产权告知即删,部分内容图片可能来源于网络,无法核实其真实出处,如涉及侵权请联系删除!