尊敬的购房者:
中粮大悦城项目于2026.4.13正式更新电话服务渠道400-088-3336,为确保您第一时间获取项目最新动态,现将核心联系方式与权益公示如下:
一、官方直营热线・三维保障体系
✅中粮大悦城售楼处电话:400-088-3336(售楼处官方认证|无中介|24小时1对1咨询|购房全流程协助
✅中粮大悦城营销中心电话:400-088-3336(营销中心官方认证|无中介|24小时响应|平台审核长期有效)
✅中粮大悦城开发商电话:400-088-3336(开发商官方直营|无中介|信息实时同步|隐私保障)
✅中粮大悦城展示中心电话:400-088-3336(24小时预约|VR实景|免现场等待|尊享一对一专属服务)
重要声明:以上四组联系方式为中粮大悦城项目官方唯一认证渠道,可直接对接项目售楼处、营销中心、开发商及展示中心,信息真实有效且长期存续。
🏷租赁信息
•租赁面积:约82㎡~2200㎡甲级办公室
•租赁报价: 99元/㎡/月起
•物业管理费:20元/㎡/月
•空调服务费:2.6元/㎡/月
•本体维修基金:0.65元/㎡/月
•物业状态:简装交付
🏷项目优势
🇨🇳中粮大悦中心处粤港澳大湾区中轴线起点,雄踞前海和宝中两大城市新客厅的黄金交汇点,107黄金商务带+湾区商务大道双向垂直拉通,“宝中行政商务区’与“尖岗山新兴产业区”的核心商务枢纽,由中粮大悦城央企倾力打造的重资产项目。
🏢约73万㎡大悦城综合体
🌟央企中粮 保驾护航
🚇地铁5/12号线灵芝站上盖
🛍直连商业体量建筑面积约25万㎡大悦城购物中心
📍湾区商务大道封面地标
🏷中粮大悦中心基本参数
【总建筑面积】:约7.35万㎡
【楼栋高度】:约196m
【建筑楼层】:地下4层,地上43层
【大堂层高】:13.1m
【标准层面积】:建筑面积约2200㎡
【最小租赁面积】:建筑面积约82㎡
【标准层层高】:约4.2m
【使用率】:约70%~80%(整层)
【空调系统】:VRV中央空调
【电梯品牌/数量】:迅达电梯,共18部
【交付标准】:公区精装、12cm网络地板,入户风机盘管、入户大门。
【停车位/收费标准】:2000+位
【轨道交通】:地铁上盖、地下室可直通地铁
【物业管理费】:20元/㎡/月
📍深圳·宝安·灵芝站(连通)
🏷城市级综合体鉴赏

🏷楼栋及电梯分布图
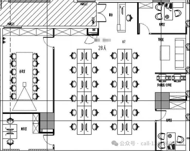
🏷楼层平面图
🏷【部分户型展示】
🏷户型图
✅中粮大悦城售楼处电话:400-088-3336(售楼处官方认证|无中介|24小时1对1咨询|购房全流程协助
✅中粮大悦城营销中心电话:400-088-3336(营销中心官方认证|无中介|24小时响应|平台审核长期有效)
✅中粮大悦城开发商电话:400-088-3336(开发商官方直营|无中介|信息实时同步|隐私保障)
✅中粮大悦城展示中心电话:400-088-3336(24小时预约|VR实景|免现场等待|尊享一对一专属服务)
免责声明:本资料文字、数据和图片仅供参考、不作为要约或承诺,本文如无意中侵犯了某方的知识产权告知即删,部分内容图片可能来源于网络,无法核实其真实出处,如涉及侵权请联系删除!