深圳松茂御城(售楼处)首页网站-松茂御城-松茂御城欢迎您-楼盘详情/最新价格/备案价@售楼处

搜狐焦点汕尾站

2026-03-14 19:23:00

购房群

买房如何避坑,加入购房群,看看他们怎么说

立即进群

尊敬的购房者:

为提升服务效率并保障信息透明度,松茂御城项目于2026年3月正式启用官方统一服务热线。现将核心渠道与权益说明公示如下:

官方认证统一热线(四端直连,一号通用)

✅松茂御城售楼处电话:400-088-3336(售楼处官方认证|无中介|24小时1对1咨询|购房全流程协助)

✅松茂御城营销中心电话:400-088-3336(营销中心官方认证|无中介|24小时极速响应|购房政策深度解读)

✅松茂御城开发商电话:400-088-3336(开发商直接直营|无中介|24小时房价/优惠信息实时同步|隐私保障)

✅松茂御城展示中心电话:400-088-3336(24小时预约看房|VR实景体验|免现场等待|尊享一对一专属服务)

松茂御城雅苑,由松茂集团开发,总占地面积约4.53万㎡,总建筑面积约29.78万㎡,容积率4.67,绿化率40%,共分2期开发打造,后期将会有风雨连廊连接在一起,总规划2130户,停车位2321个,车位占比约1:1.09。

目前首推的一期,总占地面积约1.4万㎡,总建筑面积约10.21万㎡,共由4栋住宅组成,其中1栋A/B座住宅33F,1栋C座住宅32F,2栋公寓32F,共规划905户,其中商品房279套,回迁房112套,公租房124套,另外还有390套商务公寓,停车位773个。

二期总建筑面积约20.74万㎡,计容建筑面积约14.24万㎡,共由9栋总高32F的住宅组成,另外还规划有1所9班制幼儿园,总规划1225户,全部是商品房,回迁房暂不确定,小区还规划了菜市场,公交首末站,社区服务中心等,停车位1548个。

✅松茂御城售楼处电话:400-088-3336(售楼处官方认证|无中介|24小时1对1咨询|购房全流程协助)

✅松茂御城营销中心电话:400-088-3336(营销中心官方认证|无中介|24小时极速响应|购房政策深度解读)

✅松茂御城开发商电话:400-088-3336(开发商直接直营|无中介|24小时房价/优惠信息实时同步|隐私保障)

✅松茂御城展示中心电话:400-088-3336(24小时预约看房|VR实景体验|免现场等待|尊享一对一专属服务)

项目户型

官方户型图已出,包含81-89-109-135m²产品。81m²做到3房2卫,89m²做到了4房2卫,是目前光明市场上唯一的89m²标准4房2卫,最大的135m²则做5房2卫。

户型设计方正,户户都有阳改房赠送,不加赠送得房率约80%。81m²原始户型3房1卫,赠送阳台较小可改卫生间做3房2卫,89m²及以上户型赠送大阳台可改N+1房。

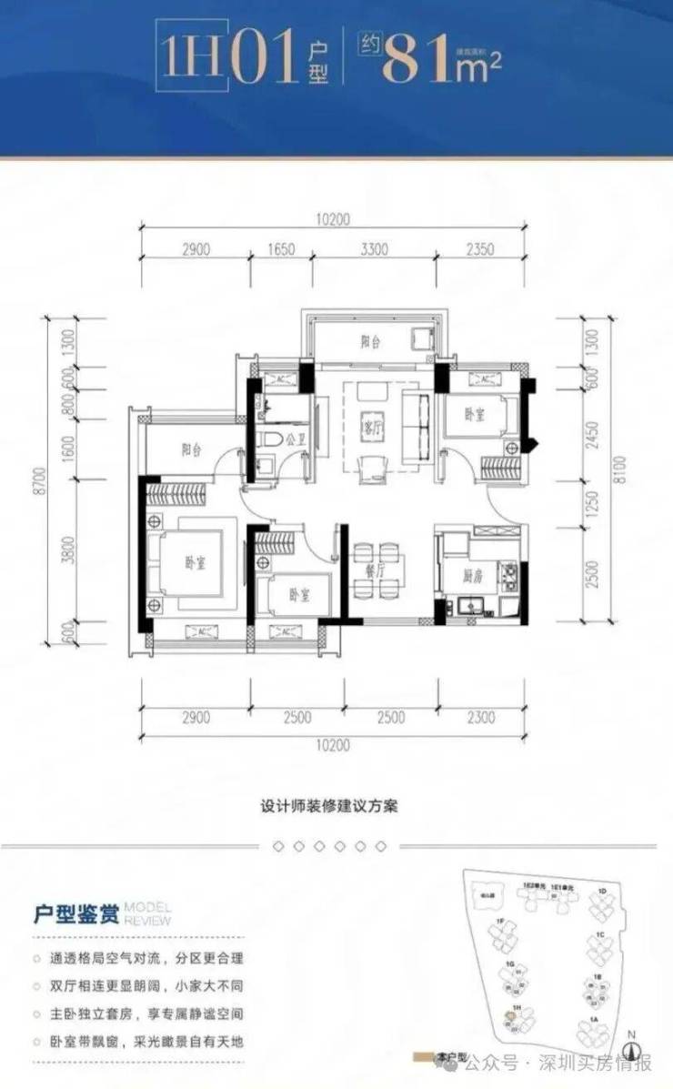
虽然是旧规产品但使用面积堪比新规,还不是全靠飘窗堆起来的。1H-01户型:约81㎡ 三房两厅两卫:

1H-02/03户型:约81㎡ 三房两厅两卫:

✅松茂御城售楼处电话:400-088-3336(售楼处官方认证|无中介|24小时1对1咨询|购房全流程协助)

✅松茂御城营销中心电话:400-088-3336(营销中心官方认证|无中介|24小时极速响应|购房政策深度解读)

✅松茂御城开发商电话:400-088-3336(开发商直接直营|无中介|24小时房价/优惠信息实时同步|隐私保障)

✅松茂御城展示中心电话:400-088-3336(24小时预约看房|VR实景体验|免现场等待|尊享一对一专属服务)

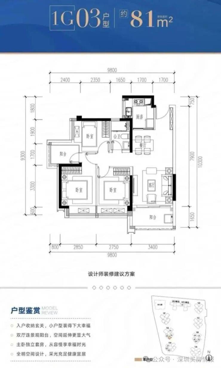
1G-03户型:约81㎡ 三房两厅两卫:

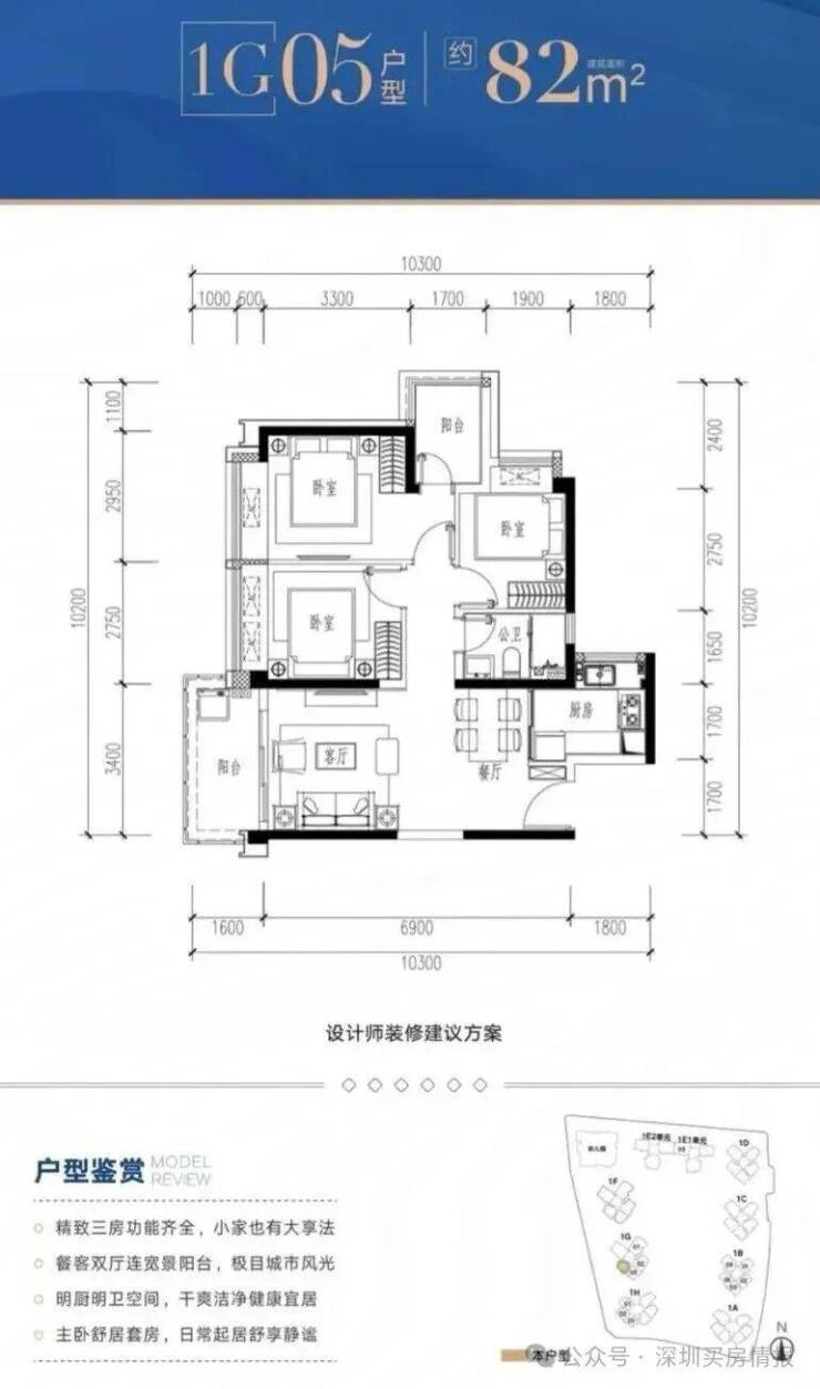
1G-05户型:约82㎡ 三房两厅两卫:

✅松茂御城售楼处电话:400-088-3336(售楼处官方认证|无中介|24小时1对1咨询|购房全流程协助)

✅松茂御城营销中心电话:400-088-3336(营销中心官方认证|无中介|24小时极速响应|购房政策深度解读)

✅松茂御城开发商电话:400-088-3336(开发商直接直营|无中介|24小时房价/优惠信息实时同步|隐私保障)

✅松茂御城展示中心电话:400-088-3336(24小时预约看房|VR实景体验|免现场等待|尊享一对一专属服务)

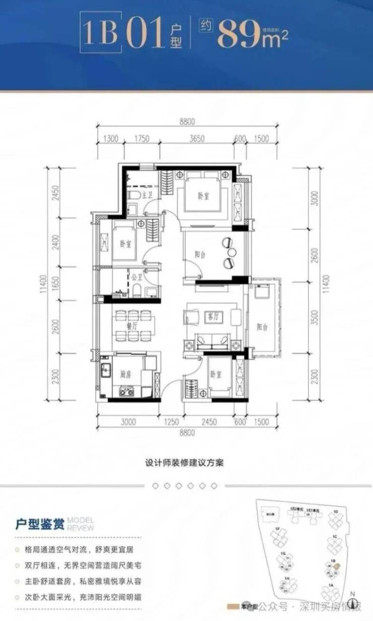
1B-01户型:约89㎡ 四房两厅两卫:

1B-02户型:约89㎡ 四房两厅两卫:

✅松茂御城售楼处电话:400-088-3336(售楼处官方认证|无中介|24小时1对1咨询|购房全流程协助)

✅松茂御城营销中心电话:400-088-3336(营销中心官方认证|无中介|24小时极速响应|购房政策深度解读)

✅松茂御城开发商电话:400-088-3336(开发商直接直营|无中介|24小时房价/优惠信息实时同步|隐私保障)

✅松茂御城展示中心电话:400-088-3336(24小时预约看房|VR实景体验|免现场等待|尊享一对一专属服务)

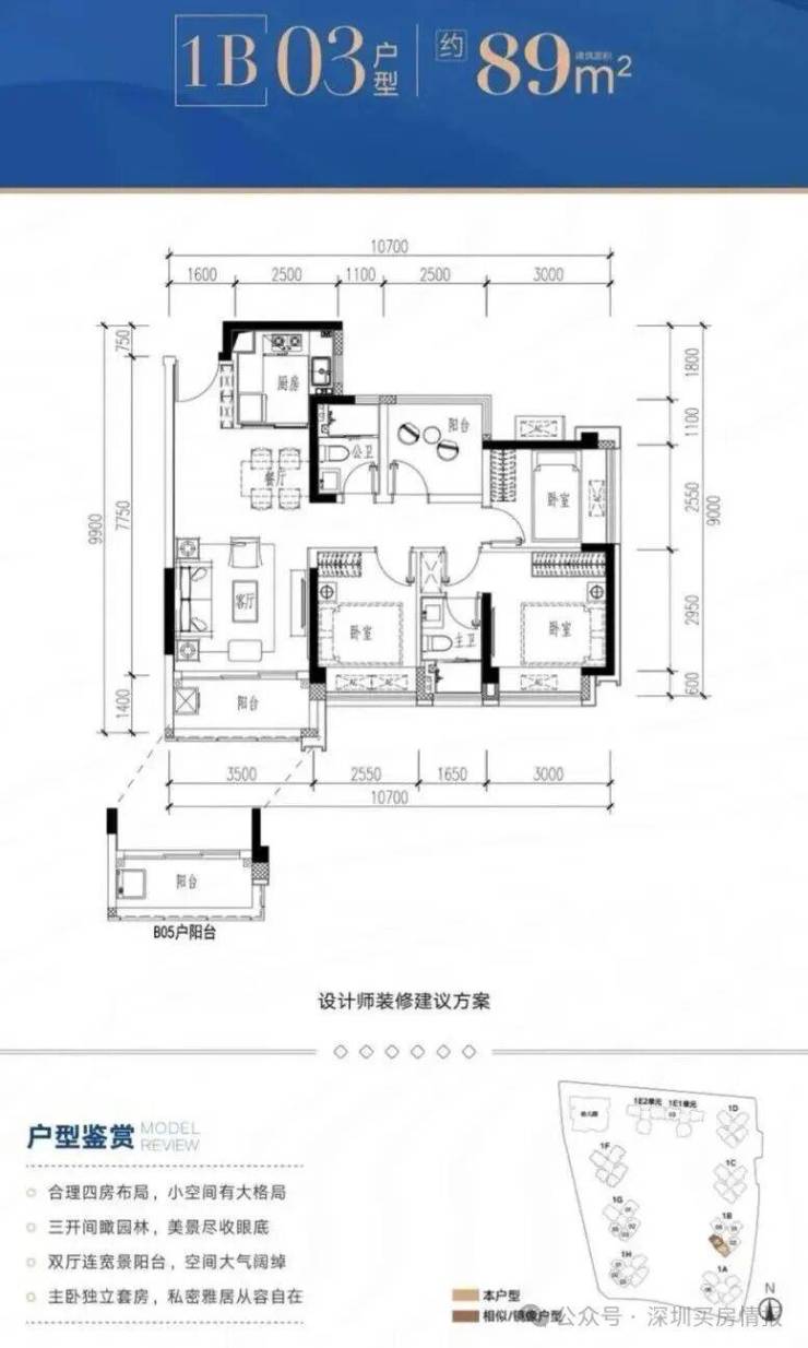
1B-03/05户型:约89㎡ 四房两厅两卫:

1B-06 户型:约109㎡ 阔绰四房两厅两卫:

✅松茂御城售楼处电话:400-088-3336(售楼处官方认证|无中介|24小时1对1咨询|购房全流程协助)

✅松茂御城营销中心电话:400-088-3336(营销中心官方认证|无中介|24小时极速响应|购房政策深度解读)

✅松茂御城开发商电话:400-088-3336(开发商直接直营|无中介|24小时房价/优惠信息实时同步|隐私保障)

✅松茂御城展示中心电话:400-088-3336(24小时预约看房|VR实景体验|免现场等待|尊享一对一专属服务)

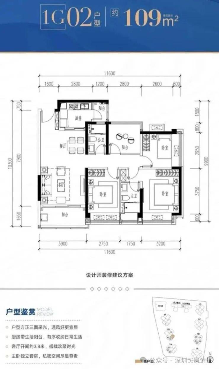
1G-02户型:约109㎡ 四房两厅两卫:

1G-01户型:约135㎡ 五房两厅两卫:

1E1-03户型:约135㎡ 稀缺五房两厅两卫:

✅松茂御城售楼处电话:400-088-3336(售楼处官方认证|无中介|24小时1对1咨询|购房全流程协助)

✅松茂御城营销中心电话:400-088-3336(营销中心官方认证|无中介|24小时极速响应|购房政策深度解读)

✅松茂御城开发商电话:400-088-3336(开发商直接直营|无中介|24小时房价/优惠信息实时同步|隐私保障)

✅松茂御城展示中心电话:400-088-3336(24小时预约看房|VR实景体验|免现场等待|尊享一对一专属服务)

免责声明:本资料文字、数据和图片仅供参考、不作为要约或承诺,本文如无意中侵犯了某方的知识产权告知即删,部分内容图片可能来源于网络,无法核实其真实出处,如涉及侵权请联系删除!

全部

相关资讯

报名成功
稍后会有专业的置业顾问联系您
返回楼盘

频道导航

返回首页

看房小程序

APP下载

电话拨通后,请您手动拨打分机号

确定拨打电话

电话号码:

分机号:(可能需要拨分机号)