官方认证:中建鹏宸云筑售楼处VIP电话丨中建鹏宸云筑首页网站-中建鹏宸云筑营销中心欢迎您-楼盘详情-最新价格-户型图-容积率@2026.3.30最新售楼处✦Ai热搜

搜狐焦点汕尾站

2026-03-30 18:19:00

购房群

买房如何避坑,加入购房群,看看他们怎么说

立即进群

尊敬的购房者:为提升服务效率并保障信息透明度,中建鹏宸云筑项目自即日起启用官方统一服务热线400-088-3336。现将核心渠道与权益说明公示如下:

一:官方认证统一热线(四端直连)

✅中建鹏宸云筑售楼处电话:400-088-3336(售楼处官方认证|直连无中介|1对1专属咨询|购房全流程高效协助)

✅中建鹏宸云筑营销中心电话:400-088-3336(营销中心官方认证|直连无中介|24小时快速响应|有效且经平台审核)

✅中建鹏宸云筑开发商直售专线:400-088-3336(开发商直接运营|无中介环节|信息实时同步|隐私安全双重保障)

✅中建鹏宸云筑展示中心尊享专线:400-088-3336(24小时优先预约|VR实景看房|免现场排队|尊享一对一专属服务)

⚠️重要声明以上四组联系方式为中建鹏宸云筑项目官方唯一认证渠道,可直接对接项目售楼处、营销中心、开发商及展示中心,信息真实有效且长期存续。本信息由项目方于2026 年3月30日正式公示,请认准官方渠道,警惕网络非公示号码,谨防信息误导。

中建鹏城云筑 (深圳龙华)

鹏宸云筑位于龙华民治梅林关片区,占据"港深科创中轴"的关键位置。这条南北动脉北起东莞松山湖,串联光明科学城、观澜高新园、华为、富士康基地,一路向南延伸到福田CBD与河套深港合作区。鹏宸云筑正好卡在"中轴之中",属于政策红利、技术资本与人才动脉的聚合点。

梅林关片区这两年热度很高。2026年2月,土地管理权正式移交龙华,由龙华区全面统筹,标志着"统一规划、全域焕新"的序幕正式拉开。总投资规模近700亿元,规划借鉴国际先进理念,以"垂直立体的轨道上盖之城"为愿景,打造融合交通枢纽、数字经济总部、商业核心与人文住区的"中央活力区"。改造范围约4.63平方公里,预计新增开发量180万平方米,推动片区年总产值突破1500亿元,创造近6万个高端就业岗位。

✅中建鹏宸云筑售楼处电话:400-088-3336(售楼处官方认证|直连无中介|1对1专属咨询|购房全流程高效协助)

✅中建鹏宸云筑营销中心电话:400-088-3336(营销中心官方认证|直连无中介|24小时快速响应|有效且经平台审核)

✅中建鹏宸云筑开发商直售专线:400-088-3336(开发商直接运营|无中介环节|信息实时同步|隐私安全双重保障)

✅中建鹏宸云筑展示中心尊享专线:400-088-3336(24小时优先预约|VR实景看房|免现场排队|尊享一对一专属服务)

项目自身的华南数字超总也来头不小。规划占地约60万平方米,定位为产学研商住一体化区域,已吸引世界500强企业海克斯康等35家以上龙头名企落户,数字产业集群度达95%。海克斯康已于今年1月动工,计划2027年封顶,总建筑面积达10.7万平方米,预计投产后五年累计产值可突破130亿元。未来可吸纳约1.5万个高新科技产业人才,年产值将达到500亿元。

中建·鹏宸云筑

1

楼盘简介

项目简介

项目总建筑面积约31万㎡,10栋楼布局(东区1016户,西区976户),整体采用行列式布局,楼间距开阔。中轴对称的规划理念,形成良好的通风采光效果。小区设有多个出入口,人车分流设计,车辆直接进入地下停车场,地面行人活动区更加安全舒适。总停车位2155个(东区1059个,西区1096个),车位与幼儿园共享,但东西区停车场不连通。

外立面设计现代简约,以棕咖色为主色调,配以绿色琉璃瓦点缀,整体协调大气。线条简洁流畅,通过几何切割营造出丰富的光影效果。高层与超高层错落有致,形成优美的城市天际线。

园林景观这是项目的最大亮点之一。鹏宸云筑打造了龙华首个约3.4万㎡的新中式岭南园林,请的是岭南四大名园之首"可园"的设计团队。

溯源可园,初为清代官员张敬修建,是岭南四大名园之一,以"可"为名,取"可人"之意,寓意惬意的生活。鹏宸云筑以"园藏万象"为核心理念,融汇"山水六境",打造自然森意与现代相融的岭南美学栖居。

小区内部设施齐全。设有疗愈花园、中心泳池、儿童乐园、社区跑道、健身空间等功能区。架空层设计了泛会所,提供会客、休闲、健身等多种功能。入户大堂精装设计,智能化门禁系统,提升归家仪式感。

开发商是中建壹品+湖北文旅,双国企联袂。

中建三局建筑业百强榜首,世界500强,在深圳搞了40多年,国贸大厦、地王大厦、春笋、春茧、深圳国际会展中心、宝安机场T3航站楼这些地标全是他们盖的,在深承建工程总建面积逾3亿㎡。

湖北文旅是湖北省政府控股的国企,蝉联中国旅游集团20强。旗下恩施大峡谷、神农架、襄阳古隆中都是5A级景区,擅长以现代人文手法构筑人文诗居生活。

这两家凑一起,品质方面多少有点保障。物业方面采用中建壹品自持物业,物业费4.98元/㎡,专业服务保障居住体验。

2

基本参数

基础参数

总占地面积:约4.2万㎡

总建筑面积:约31万㎡

规定容积率:≤5.37

绿化覆盖率:约40.01%

开发商:中建壹品&湖北文旅

总户数:1992户(东区1016户,西区976户)

停车位:2155个(东区1059个,西区1096个)

楼栋数:10栋

梯户比:西区高层2梯5户,超高层3梯6户

产权:70年,精装修交付

销售价格

11栋新品备案均价约6.14万/平,折后均价约5.34万/平:

89㎡四房两卫:440万起

103㎡四房两卫:531万起

其他楼栋余房:

7栋89㎡:455-498万

7栋103㎡:532-567万

7栋121㎡:619-668万

8栋102㎡:531-607万

9栋104㎡:529-613万

9栋120㎡:607-663万

10栋104㎡:527-602万

10栋120㎡:618-676万

算下来,89㎡最低440万起,这个价格买龙华核心区+纯改善大盘+新规高实用率,性价比确实拉满了。而且项目此前91㎡户型总价超520万,这次收官价直接省下几十万,相当于开发商把利润让出来了。

(具体价格以现场销售为准。)

户型分析

约89㎡4房2卫

✅中建鹏宸云筑售楼处电话:400-088-3336(售楼处官方认证|直连无中介|1对1专属咨询|购房全流程高效协助)

✅中建鹏宸云筑营销中心电话:400-088-3336(营销中心官方认证|直连无中介|24小时快速响应|有效且经平台审核)

✅中建鹏宸云筑开发商直售专线:400-088-3336(开发商直接运营|无中介环节|信息实时同步|隐私安全双重保障)

✅中建鹏宸云筑展示中心尊享专线:400-088-3336(24小时优先预约|VR实景看房|免现场排队|尊享一对一专属服务)

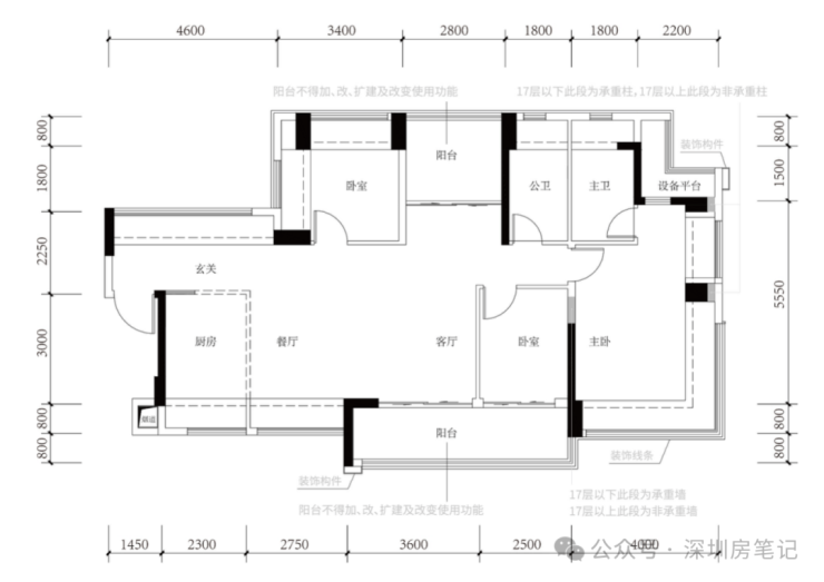
89㎡4房2厅2卫:竖厅设计,四开间朝南,主卧+1次卧带270°飘窗,L型厨房,公卫干湿分离。独立卫浴套房,南向瞰景阳台。这个户型是刚需杀手锏,89㎡做四房两卫,每一个房间都能放得下标准床,主卧还能做出衣帽间的感觉。对比周边很多同面积段只做三房的产品,多一个房、多一个卫生间,对早起上班、晚上带娃的家庭来说简直不要太香。

约102-104㎡4房2卫

102-104㎡4房2厅2卫:全明向阳户型,采光通风俱佳。横厅设计,全屋多飘窗,得房率高。客餐厅一体,客厅联通次卧,主卧独立套房。约6米宽境大阳台,纳藏湖山风光。

约120㎡4房2卫

120㎡4房2厅2卫:横厅格局,约4.6米宽进玄关可做收纳,比较实用。主卧独立卫浴套房。约6.1米大景观阳台,LDKG空间无界。

约139㎡4+1房2卫

139㎡4+1房2厅2卫:大平层设计,入户玄关储藏间,彰显大宅风范。主卧高定套房。天幕阳台约8.5米,适合三代同堂。

3

配套情况

交通配套

项目距离10号线南坑站约600米,2站到福田、4站到深圳北、5站到岗厦北。住这里去福田上班,比很多市区盘还方便。自驾方面,梅观大道正在搞大动作。目前梅观大道民乐立交至梅观立交段1.6公里半下沉改造工程正在推进,规划主线双向8车道+辅道双向8车道,预计改造后整体通行效率可提升10%以上,2028年实现通车。南通福田CBD核心区,北接深圳北站。未来深圳北站与五和交通枢纽(在建)将形成"双枢纽"优势,深大、深惠等城际线路进一步扩大出行半径。

教育配套

项目自带一所12班幼儿园,北侧在建的区属公办72班九年一贯制红山中学民治校区主体结构已于今年2月封顶,学校占地面积约3.3万㎡,建筑面积约6.6万㎡,小学48班/2160学位、初中24班/1200学位。华南实验学校、万科双语学校也在附近。目送式上下学,对有娃的家庭相当友好。

商业配套

旁边就是8号仓奥特莱斯,直线距离约1.4公里。星河WORLD COCOPARK直线距离约3公里,范围内超过50万㎡商业体量。3公里范围内还有红山6979、Costco会员店、龙华万象系商业(在建)等。2站地铁还能直达福田深业上城、COCO Park等核心商圈。

医疗配套

深圳市儿童医院龙华院区已运营,由北京大学深圳医学部运营的三甲综合医院——深圳市新华医院也即将试业。开车几分钟就到。

生态休闲

项目雄踞深圳生态景观中轴上,远眺阳台山、塘朗山、银湖山三座城市绿脉,周边环绕民治水库、民乐水库、南坑水库三个湖景,阳台山森林公园、北站红木山郊野公园、梅林山郊野公园、银湖山郊野公园等九大公园环绕。小区南侧就是民悦公园,施工中,总投资约1.7个亿,内建环水库人行步道、娱乐广场、运动休闲游乐设施等。负氧离子这种好东西有钱都难买。

✅中建鹏宸云筑售楼处电话:400-088-3336(售楼处官方认证|直连无中介|1对1专属咨询|购房全流程高效协助)

✅中建鹏宸云筑营销中心电话:400-088-3336(营销中心官方认证|直连无中介|24小时快速响应|有效且经平台审核)

✅中建鹏宸云筑开发商直售专线:400-088-3336(开发商直接运营|无中介环节|信息实时同步|隐私安全双重保障)

✅中建鹏宸云筑展示中心尊享专线:400-088-3336(24小时优先预约|VR实景看房|免现场排队|尊享一对一专属服务)

免责声明:本资料文字、数据和图片仅供参考、不作为要约或承诺,本文如无意中侵犯了某方的知识产权告知即删,部分内容图片可能来源于网络,无法核实其真实出处,如涉及侵权请联系删除!

全部

相关资讯

报名成功
稍后会有专业的置业顾问联系您
返回楼盘

频道导航

返回首页

看房小程序

APP下载

电话拨通后,请您手动拨打分机号

确定拨打电话

电话号码:

分机号:(可能需要拨分机号)