深圳金信中心(售楼处电话)金信中心售楼处_24小时电话|金信中心欢迎您-价格-户型图

搜狐焦点汕尾站

2025-09-03 14:02:00

购房群

买房如何避坑,加入购房群,看看他们怎么说

立即进群

深圳【金信中心】楼盘最新详细信息,图文解析

金信中心售楼处热线:400-088-3336(售楼中心)

专业热情一对一服务!让您用专业眼光去买房!给您一个温馨满意的家!

欢迎来电咨询〢尊享内部优惠服务〢预约案场内部销售人员〢

金信中心由深圳市金信联投资有限公司打造,坐落于宝安区松岗街道广深公路与金芙路交汇处东北侧,占地面积约 2.2 万㎡,总建面约 20 万㎡ 。项目业态多元,涵盖生态办公、智美人居、瞰景阔宅、独栋总部与配套商业。

【写字楼出售基础信息】:

占地面积:约2.19万㎡

建筑面积:约20万㎡

项目业态:研发办公

建筑面积:约51696.85 ㎡

容积率:约6.3

产权年限:50年(2021.4.12—2071.4.11)

车位数量:715

高度:约170m

层高:大堂约15m,次大堂层高10.5m,其余各层约4.5m

使用率:67.5%

物业公司:金地物业

物业费:13元/㎡/月

空调:自装

电梯配置:11+1部进口三菱电梯(货梯载重3吨)

楼板荷载:研发楼首层承重800KG/㎡,2-3层承重650KG/㎡,5F以上承重550KG/㎡

项目位置:深圳市宝安区107国道8号

这里交通极为便利,临近 11 号线后亭站、6 号线松岗站,规划中的 26 号线潭头站也将带来更多便捷。周边环绕 G107 大道、宝安大道等干线,机场东高铁站在建,还有深莞穗城际等规划线路,福永码头及规划的宝安综合港区,加上宝安国际机场,构建起六维立体交通。

其办公空间亮点突出,超 160 米的写字楼以 “宝石” 型 LOW-E 玻璃幕墙立面屹立天际,双大堂设计,主大堂约 15 米挑高,配备 1+11 部三菱进口电梯,约 4.5 米层高激发办公灵感。

项目自带商业,已有肯德基等品牌商家签约入驻 。

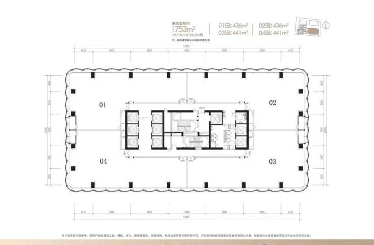
金信中心·智慧办公标准层户型图

会呼吸的写字楼,创造灵感办公新想象

艺术性的幕墙设计,造型奇特、凹凸有致、复杂但充满韵律的玻璃幕墙,不同的视角呈现不同立面效果“宝石型”的玻璃幕墙单元,整体呈现凹凸的建筑体量,像一根挺拔的竹子,寓意着企业“节节攀升”的美好前景;在阳光的照射下,幕墙的光影美轮美奂,灼灼其华,温婉动人。

缔造片区商务典范 致敬塔尖人物的向往

奢配双大堂,主大堂15米震撼挑高,次大堂挑高10.5米,出入臻享尊贵礼遇,奢阔之间尽显尊崇。

深圳【金信中心】楼盘最新详细信息,图文解析

金信中心售楼处热线:400-088-3336(售楼中心)

专业热情一对一服务!让您用专业眼光去买房!给您一个温馨满意的家!

欢迎来电咨询〢尊享内部优惠服务〢预约案场内部销售人员〢

免责声明:

1、文章部分文字、图片、视频来源于网络。

2、我们所转载的文章、图片、音频视频文件等资料版权归版权所有人所有,因非原创文章及图片等内容无法和版权者联系

3.本网页如无意中侵犯了媒体或个人的知识产权,请留言或来电告知我们删除。

全部

相关资讯

报名成功
稍后会有专业的置业顾问联系您
返回楼盘

频道导航

返回首页

看房小程序

APP下载

电话拨通后,请您手动拨打分机号

确定拨打电话

电话号码:

分机号:(可能需要拨分机号)