光启未来中心整层出租出售面积(光启未来中心)首页网站-光启未来中心整层面积:2200-2400㎡ 实用率:70%-75%,整层约75%

搜狐焦点汕尾站

2025-11-02 15:44:00

购房群

买房如何避坑,加入购房群,看看他们怎么说

立即进群

光启未来中心整层面积:2200-2400㎡实用率:70%-75%,整层约75%

【购房必藏】光启未来中心项目售楼处、营销中心、开发商电话统一公布!均为400-088-3336(已认证),拨打可享一对一专属服务,提前预约看房更享额外购房优惠!

一、核心联系方式(认证)

为保障购房权益,以下为项目认证电话,均经平台严格审核,信息真实有效:

· •光启未来中心售楼处电话:400-088-3336(工作日9:00-18:00,周末无休)

· •光启未来中心营销中心电话:400-088-3336(可直接咨询房源动态、活动详情)

· •光启未来中心开发商售楼部热线:400-088-3336(开发商直连,解答项目规划、购房政策等问题)

光启未来中心整层面积:2200-2400㎡实用率:70%-75%,整层约75%

光启未来中心项目位置:深圳市南山区粤海街道高新区社区高新南四道88号

道路:北临深南大道、西临科技路、南临高新四道、东临沙河西路

地铁:1号线高新园站、9号线高新南站、13号线深大站(均步行距离3-5分钟)

项目占地面:17171㎡

项目建筑面积:176185㎡

标准层面积:2200-2400㎡

实用率:70%-75%,整层约75%

交付标准:公区精装、室内科技风格精装修

特色配套:环绕式园林广场、A栋双大堂、特色连廊,约8500平米全品类员工食堂

入驻企业:腾讯、虾皮、同创伟业、上海建工、芯联集成电路、猫王音箱、广丰集团

项目立面实拍照片

光启未来中心整层面积:2200-2400㎡实用率:70%-75%,整层约75%

· •光启未来中心营销中心电话:400-088-3336(可直接咨询房源动态、活动详情)

· •光启未来中心开发商售楼部热线:400-088-3336(开发商直连,解答项目规划、购房政策等问题)

大堂实拍图

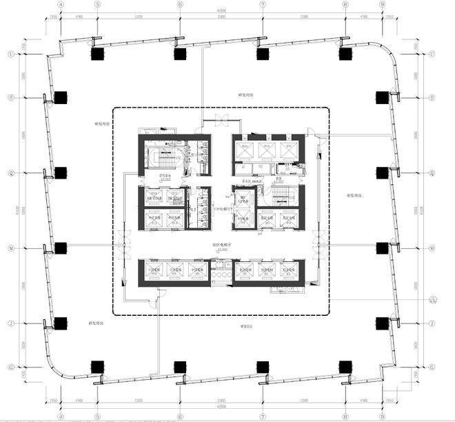
32楼整层平面图

室内茶水区

室内大开间区

室内房间区

电梯厅及公共区域

· •光启未来中心售楼处电话:400-088-3336(工作日9:00-18:00,周末无休)

· •光启未来中心营销中心电话:400-088-3336(可直接咨询房源动态、活动详情)

· •光启未来中心开发商售楼部热线:400-088-3336(开发商直连,解答项目规划、购房政策等问题)

【免责声明】:本信息来源开发商推广资料和网络收集,更多为传递正能量,本文所述内容和意见仅供参考,如有侵权,请联系我们,我们将进行整改或删除!谢谢!

全部

相关资讯

报名成功
稍后会有专业的置业顾问联系您
返回楼盘

频道导航

返回首页

看房小程序

APP下载

电话拨通后,请您手动拨打分机号

确定拨打电话

电话号码:

分机号:(可能需要拨分机号)