2025深圳(檀悦府)首页网站-欢迎您-檀悦府楼盘详情 楼盘电话

汕尾楼市发布

2025-05-29 08:58:00

购房群

买房如何避坑,加入购房群,看看他们怎么说

立即进群

深圳【檀悦府】

开发商售楼处电话咨询/预约热线:400-088-3336【售楼中心】24小时热线

深圳【檀悦府】售楼处电话:400-088-3336【营销中心】中介勿扰

深圳檀悦府楼盘详情介绍,包含售楼处电话、地址、户型图、小区图片、区位优势、交通、周边商业配套等楼盘详细资料;更详细楼盘资料和最新折扣价格,请拨打售楼处电话,销售会为您详细介绍楼盘。

檀悦府,项目原先是水斗新围山嘴头工业区城市更新,总占地面积约1.6万㎡,总建筑面积约19万㎡,计容建筑面积约14.1万㎡,容积率8.3,绿化率40.12%,共由4栋32-47层高住宅+1栋33层办公组成,其中1栋1单元办公33F,1栋2/3单元商品房47F,1栋4单元住宅32F,1栋5单元住宅46F,2栋配建1所6班制幼儿园。

总规划882户,其中商品房610套,都是3梯7户设计,回迁房168套,保障房104套,地下4层,停车位1290个,车位占比约1:1.46。

深圳【檀悦府】售楼处电话:400-088-3336【营销中心】中介勿扰

楼盘基础信息

1、开发商:深圳汇珠实业有限公司

2、物业公司:中晟(深圳)物管服务有限公司

3、物业管理费:4.98元/㎡

4、总占地面积:1.6万/㎡

5、总建筑面积:19万/㎡

6、容积率:8.3

7、绿化率:40.12%

8、产权年限:2022年6月21日-2092年6月20日(70年)

9、总户数:882户

10、总栋数及楼高:3栋,32-47

11、梯户比:3梯7户

12、车位数:1290个

13、车位占比:1:1.46(包含写字楼、商业、住宅)

14、交楼时间:2026年10月

15、交楼标准: 精装

项目平面图

81㎡的3房2厅1卫采用了竖厅设计,进门处设有入户玄关,客厅开间达到3.5米,并采用了LKDB一体化设计,实现了动静分区的布局。其中一个次卧设计了双飘窗,厨房为U型设计,卫生间则采用了三段式分离设计,得房率为74.34%(不含赠送),朝向为西北。

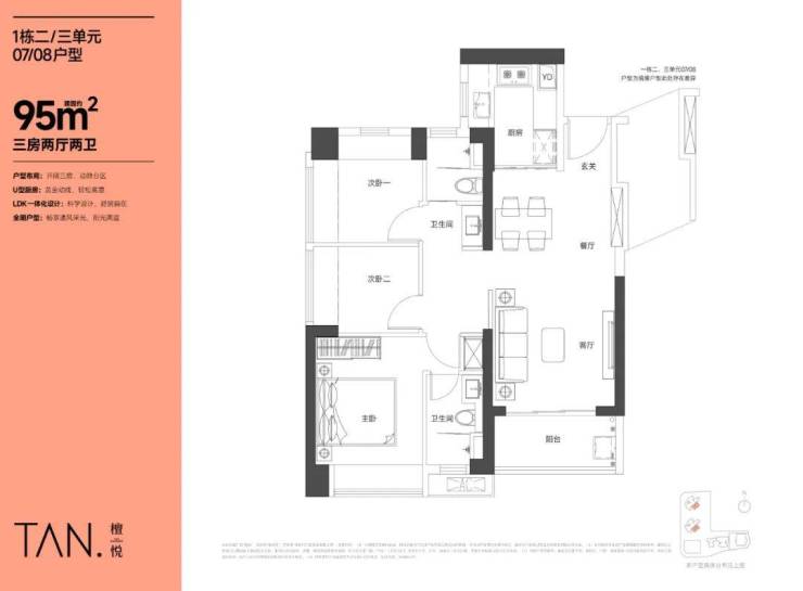
95㎡的3房2厅2卫同样采用了竖厅布局,入户玄关宽敞明亮,客厅开间为3.55米,LKDB一体化设计确保了空间的高效利用,动静分区明确,一个次卧配备双飘窗,U型厨房操作便捷,卫生间三段式分离,得房率同样为74.34%(不含赠送),东南朝向确保了充足的阳光。

95㎡的3房2厅2卫以经典竖厅格局为基础,进门处的入户玄关增添归家仪式感,3.55米开间的客厅宽敞舒适,LKDB一体化设计让生活动线更为流畅,动静分区合理,三开间朝南的设计极大提升了采光与通风效果,一个次卧的双飘窗为居住者提供了更多的休闲空间,U型厨房实用高效,得房率74.34%(不含赠送),西南朝向。

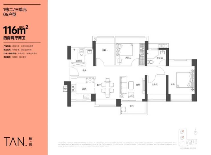
116㎡的4房2厅2卫则采用了横厅南北通透设计,入户玄关大气典雅,客餐厅开间达到6米,LKDB一体化设计营造出奢阔的公共活动区域,五开间朝南的布局使得整个空间充满阳光,主卧采用南北通设计,私密性与舒适度兼备,U型厨房操作空间宽敞,得房率74.35%(不含赠送),阳台主朝东南向,视野开阔,通风良好。

深圳【檀悦府】售楼处电话:400-088-3336【营销中心】中介勿扰

深圳【檀悦府】售楼处电话:400-088-3336【营销中心】中介勿扰

深圳【檀悦府】售楼处电话:400-088-3336【营销中心】中介勿扰

深圳【檀悦府】售楼处电话:400-088-3336【营销中心】中介勿扰

深圳【檀悦府】

开发商售楼处电话咨询/预约热线:400-088-3336【售楼中心】24小时热线

深圳【檀悦府】售楼处电话:400-088-3336【营销中心】中介勿扰

深圳檀悦府楼盘详情介绍,包含售楼处电话、地址、户型图、小区图片、区位优势、交通、周边商业配套等楼盘详细资料;更详细楼盘资料和最新折扣价格,请拨打售楼处电话,销售会为您详细介绍楼盘。

免责声明:

以上所发布的关于楼盘相关图文信息仅供您买房前参考,以上所有关于本楼盘的图文资料及说明请以最终以项目批文及双方在楼盘营销中心现场签署的买卖最终合同为准;本图文内容如无意中侵犯到某方权益,请联系我们将会及时处理!

全部

相关资讯

报名成功
稍后会有专业的置业顾问联系您
返回楼盘

频道导航

返回首页

看房小程序

APP下载

电话拨通后,请您手动拨打分机号

确定拨打电话

电话号码:

分机号:(可能需要拨分机号)