龙光玖誉雅筑(龙光玖誉雅筑)首页网站丨龙光玖誉雅筑楼盘详情_房价_户型

汕尾楼市发布

2025-03-29 14:13:00

购房群

买房如何避坑,加入购房群,看看他们怎么说

立即进群

深圳【龙光玖誉雅筑】

开发商售楼处电话咨询/预约热线:400-088-3336【售楼中心】24小时热线

深圳【龙光玖誉雅筑】售楼处电话:400-088-3336【营销中心】中介勿扰

深圳龙光玖誉雅筑楼盘详情介绍,包含售楼处电话、地址、户型图、小区图片、区位优势、交通、周边商业配套等楼盘详细资料;更详细楼盘资料和最新折扣价格,请拨打售楼处电话,销售会为您详细介绍楼盘。

龙光玖誉雅筑坪山芯丨山湖境丨全龄生活场中心之上 让生活回归生活 致敬少数精英奋斗

深圳【龙光玖誉雅筑】售楼处电话:400-088-3336【营销中心】中介勿扰

基础信息

龙光玖誉雅筑是全国地产18强企业—龙光集团,继龙华玖龙玺、龙华玖悦台、光明玖龙台、观澜玖誉府之后深圳第5个玖系住宅精品项目。玖誉雅筑继承龙光玖系精工基因,以品质筑家。

项目地址:深圳-坪山-创美路与体育一路交汇处西南角

展示中心:深圳-坪山-坪山大道与锦龙大道交汇处(龙光玖誉雅筑城市展厅)

物业类型:住宅、商业

产权年限:70年

容 积 率:4.77

梯 户 比:2梯4户、2梯5户

户 型:建面约96-117㎡ 奢阔3-4房

车 位:约653个

约500米,是享受城市配套的舒适距离。

龙光玖誉雅筑,倾筑约500米全龄生活圈。

深圳【龙光玖誉雅筑】售楼处电话:400-088-3336【营销中心】中介勿扰

少数人的精致奢宅

深圳【龙光玖誉雅筑】售楼处电话:400-088-3336【营销中心】中介勿扰

居必择邻,交必良友。

全线96-117㎡纯3-4房产品,为您限定优质圈层的精致居所。

私享4A级马峦山郊野公园

咫尺区级体育中心

毗邻马峦公共文化服务中心

自配套全龄生活系统

全系精装,无忧住家

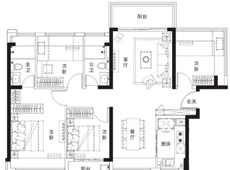
户型鉴赏

96/99㎡3房2卫

—每一处都是家人舒适的尺度

双阳台户次卧双面采光;

型方正实用,动静分区;

厨房、客餐厅动线顺畅;

各功能空间尺度宽敞、舒适。

深圳【龙光玖誉雅筑】售楼处电话:400-088-3336【营销中心】中介勿扰

101㎡3房2卫

——每个细节都是对人与生活的思量

南北通透,客餐厅双面采光;

大通阳台,更多阳光、自然入窗;

次卧双面采光,明亮舒适;

厨房双开门冰箱位,容纳一家人的味蕾;

深圳【龙光玖誉雅筑】售楼处电话:400-088-3336【营销中心】中介勿扰

114㎡4房2卫

——空间的尺度尽藏家的风度

南北通透,客餐厅双面采光;

客厅、次卧双阳台;

次卧双面采光,明亮舒适;

厨房双开门冰箱位,收纳四季食材;

各功能空间开阔宜居,共享全家时光。

深圳【龙光玖誉雅筑】售楼处电话:400-088-3336【营销中心】中介勿扰

117㎡4房2卫

——一步到位的奢阔居所

南北通透,超长采光面,次卧双面采光;

大通阳台,增添生活意趣;

厨房双开门冰箱位,一家之“煮”青睐;

主次卧空间开阔,承载阖家荣光

深圳【龙光玖誉雅筑】售楼处电话:400-088-3336【营销中心】中介勿扰

深圳【龙光玖誉雅筑】

开发商售楼处电话咨询/预约热线:400-088-3336【售楼中心】24小时热线

深圳【龙光玖誉雅筑】售楼处电话:400-088-3336【营销中心】中介勿扰

深圳龙光玖誉雅筑楼盘详情介绍,包含售楼处电话、地址、户型图、小区图片、区位优势、交通、周边商业配套等楼盘详细资料;更详细楼盘资料和最新折扣价格,请拨打售楼处电话,销售会为您详细介绍楼盘。

免责声明:

以上所发布的关于楼盘相关图文信息仅供您买房前参考,以上所有关于本楼盘的图文资料及说明请以最终以项目批文及双方在楼盘营销中心现场签署的买卖最终合同为准;本图文内容如无意中侵犯到某方权益,请联系我们将会及时处理!

全部

相关资讯

报名成功
稍后会有专业的置业顾问联系您
返回楼盘

频道导航

返回首页

看房小程序

APP下载

电话拨通后,请您手动拨打分机号

确定拨打电话

电话号码:

分机号:(可能需要拨分机号)