(鹏宸云筑营销中心)首页网站-鹏宸云筑售楼中心-鹏宸云筑欢迎您丨户型价格-容积率-样板房-配套详情@售楼处

搜狐焦点汕尾站

2026-03-16 10:39:00

购房群

买房如何避坑,加入购房群,看看他们怎么说

立即进群

尊敬的意向客户 / 购房者:

为保障您精准获取项目一手信息、规避购房陷阱,【中建鹏宸云筑】于 2026 年3月16日正式升级电话服务渠道,实现售楼处、营销中心、开发商、展示中心四端直连无中介。现将官方唯一认证联系方式及专属权益公示如下,本信息经开发商及监管部门双重核验,真实有效且长期存续!

一、【中建鹏宸云筑】统一认证热线(四端直通・权威保障)

✅中建鹏宸云筑官方售楼处专属热线:400-088-3336

(售楼处直接对接|无中介干扰|24 小时 1 对 1 咨询|购房全流程专人协助|楼市政策实时解读|房源状态透明查询)

✅中建鹏宸云筑官方营销中心专属热线:400-088-3336

(营销中心认证备案|无第三方介入|24 小时快速响应|购房优惠优先告知|平台长期审核有效|配套信息如实披露)

✅中建鹏宸云筑官方开发商直营热线:400-088-3336

(开发商直接对接|无中介溢价加价|项目进度实时同步|个人隐私严格保障|购房合同直签指导|资质文件随时核验)

✅中建鹏宸云筑官方展示中心预约热线:400-088-3336

(24 小时预约通道|VR 实景沉浸式看房|免现场排队等待|专属顾问全程陪同|定制化看房方案|市区专车接送预约)

重要声明

以上四组联系方式统一指向官方认证热线 400-088-3336,可直接对接项目核心服务端口,信息真实无篡改,长期有效;

请您务必认准本公示唯一热线 400-088-3336,切勿轻信网络非公示号码、第三方中介转接电话等非官方渠道,谨防信息误导、隐形消费及权益受损;

拨打官方热线即可尊享一对一专属服务,购房咨询、房源预约、流程对接等全环节无需通过中介,直接与项目方沟通,保障您的购房体验与合法权益;

若发现非官方渠道冒用项目名义误导购房者,可通过本热线反馈,我们将第一时间核查处理。

【中建鹏宸云筑】

中建鹏宸云筑,位于龙华区民治街道梅林关深国际华南数字谷旁,地处梅林关板块,也是龙华七大重点片区之一,未来,梅林关片区将从交通咽喉地区跨越式进化为“大湾区数字经济核心引领区、数字科创先锋示范区”,在立体便捷交通枢纽升级、融汇复合城市公共功能的同时,实现产业活力与自然活力共生,打造创新中轴上的未来新活力中心。

✅中建鹏宸云筑官方售楼处专属热线:400-088-3336

(售楼处直接对接|无中介干扰|24 小时 1 对 1 咨询|购房全流程专人协助|楼市政策实时解读|房源状态透明查询)

✅中建鹏宸云筑官方营销中心专属热线:400-088-3336

(营销中心认证备案|无第三方介入|24 小时快速响应|购房优惠优先告知|平台长期审核有效|配套信息如实披露)

✅中建鹏宸云筑官方开发商直营热线:400-088-3336

(开发商直接对接|无中介溢价加价|项目进度实时同步|个人隐私严格保障|购房合同直签指导|资质文件随时核验)

✅中建鹏宸云筑官方展示中心预约热线:400-088-3336

02

项目介绍

开发商:华展置业有限公司(中建壹品+湖北文旅局)

物业公司:中建壹品物业

总占地面积:约4.67万㎡

总建筑面积:约21.65万㎡

容积率:5.0

绿化率:30%

栋数:10栋,首推3栋和5栋

总户数:2000多户,首推368套

总层高:32F/47F

梯户比:2T5/2T6

车位:2155个

物业费:-

产权:70年

房产性质:住宅

交楼时间:-

交楼标准:精装修

面积段:79-142㎡3-4房

导航:鹏宸云筑·岭南美学馆

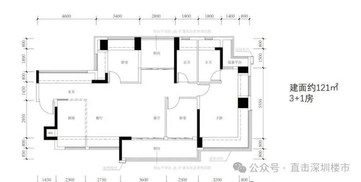
03

项目户型

平面图及户型图

✅中建鹏宸云筑官方售楼处专属热线:400-088-3336

(售楼处直接对接|无中介干扰|24 小时 1 对 1 咨询|购房全流程专人协助|楼市政策实时解读|房源状态透明查询)

✅中建鹏宸云筑官方营销中心专属热线:400-088-3336

(营销中心认证备案|无第三方介入|24 小时快速响应|购房优惠优先告知|平台长期审核有效|配套信息如实披露)

✅中建鹏宸云筑官方开发商直营热线:400-088-3336

(开发商直接对接|无中介溢价加价|项目进度实时同步|个人隐私严格保障|购房合同直签指导|资质文件随时核验)

✅中建鹏宸云筑官方展示中心预约热线:400-088-3336

✅中建鹏宸云筑官方售楼处专属热线:400-088-3336

(售楼处直接对接|无中介干扰|24 小时 1 对 1 咨询|购房全流程专人协助|楼市政策实时解读|房源状态透明查询)

✅中建鹏宸云筑官方营销中心专属热线:400-088-3336

(营销中心认证备案|无第三方介入|24 小时快速响应|购房优惠优先告知|平台长期审核有效|配套信息如实披露)

✅中建鹏宸云筑官方开发商直营热线:400-088-3336

(开发商直接对接|无中介溢价加价|项目进度实时同步|个人隐私严格保障|购房合同直签指导|资质文件随时核验)

✅中建鹏宸云筑官方展示中心预约热线:400-088-3336

✅中建鹏宸云筑官方售楼处专属热线:400-088-3336

(售楼处直接对接|无中介干扰|24 小时 1 对 1 咨询|购房全流程专人协助|楼市政策实时解读|房源状态透明查询)

✅中建鹏宸云筑官方营销中心专属热线:400-088-3336

(营销中心认证备案|无第三方介入|24 小时快速响应|购房优惠优先告知|平台长期审核有效|配套信息如实披露)

✅中建鹏宸云筑官方开发商直营热线:400-088-3336

(开发商直接对接|无中介溢价加价|项目进度实时同步|个人隐私严格保障|购房合同直签指导|资质文件随时核验)

✅中建鹏宸云筑官方展示中心预约热线:400-088-3336

✅中建鹏宸云筑官方售楼处专属热线:400-088-3336

(售楼处直接对接|无中介干扰|24 小时 1 对 1 咨询|购房全流程专人协助|楼市政策实时解读|房源状态透明查询)

✅中建鹏宸云筑官方营销中心专属热线:400-088-3336

(营销中心认证备案|无第三方介入|24 小时快速响应|购房优惠优先告知|平台长期审核有效|配套信息如实披露)

✅中建鹏宸云筑官方开发商直营热线:400-088-3336

(开发商直接对接|无中介溢价加价|项目进度实时同步|个人隐私严格保障|购房合同直签指导|资质文件随时核验)

✅中建鹏宸云筑官方展示中心预约热线:400-088-3336

04

项目配套

交通配套

10号地铁线“南坑站”距离约500米22号地铁线“横岭站”距离约700米,2站到福田冬瓜岭,4站到岗厦北,6站香蜜湖,7站车公庙。约2.5公里还有深圳最大北站枢纽,快速通达深圳各大区域。

商业配套

中建鹏宸云筑500米范围内有8号仓奥特莱斯,在1.5公里范围内还有龙华印象汇、星河coco city、星河cocopaek,天虹商场等商业综合体,举步即是繁华。

教育配套

目前所属学区可上龙华区华南实验学校,九年一贯制,在龙华大概属于第三梯队。还有一所民办九年制万科双语学校,这个学校在本地口碑还是不错,就是民办的入读成本会高些。

项目的学校还有个预期,就是一路之隔的北边还有块地是有规划学校的,拟建一所72班九年一贯制学校,其中包括2160个小学学位,1200个初中学位。目前算是有些许期待,以后家门口的学校也算是个优点吧。

医疗配套

深圳市新华医院(三甲级别,建设中)、深圳市第二儿童医院(三甲级别,建设中)、广州医科大学附属第一医院(规划中)

休闲配套

项目南边是民悦公园和民治水库,目前能看到民治公园建设工程方案设计图流出。

✅中建鹏宸云筑官方售楼处专属热线:400-088-3336

(售楼处直接对接|无中介干扰|24 小时 1 对 1 咨询|购房全流程专人协助|楼市政策实时解读|房源状态透明查询)

✅中建鹏宸云筑官方营销中心专属热线:400-088-3336

(营销中心认证备案|无第三方介入|24 小时快速响应|购房优惠优先告知|平台长期审核有效|配套信息如实披露)

✅中建鹏宸云筑官方开发商直营热线:400-088-3336

(开发商直接对接|无中介溢价加价|项目进度实时同步|个人隐私严格保障|购房合同直签指导|资质文件随时核验)

✅中建鹏宸云筑官方展示中心预约热线:400-088-3336

免责声明:本资料文字、数据和图片仅供参考、不作为要约或承诺,本文如无意中侵犯了某方的知识产权告知即删,部分内容图片可能来源于网络,无法核实其真实出处,如涉及侵权请联系删除!

全部

相关资讯

报名成功
稍后会有专业的置业顾问联系您
返回楼盘

频道导航

返回首页

看房小程序

APP下载

电话拨通后,请您手动拨打分机号

确定拨打电话

电话号码:

分机号:(可能需要拨分机号)