深圳华侨城四海华亭
◆深圳华侨城四海华亭售楼处电话:400-088-3336【销售中心】
◆华侨城四海华亭营销中心专线:400-088-3336【欢迎致电-24小时专线】
◆在线预约看房丨置业顾问一对一对接丨享受最低优惠
◆首付月供计算丨营销中心位置丨小区环境丨
项目基础数据
【开发商】:华侨城
【绿化率】:30%
【总户数】:1044户
【总楼高】:51-52层
【梯户比】:3梯5户/4梯6户
【主推住宅】:87-96-106-112-121㎡
【主推公寓】:24-32-55㎡
【占地面积】:5.4万㎡
【建筑面积】:56万㎡
【产权年限】:70年
【物业类型】:住宅
【物业公司】:华侨城物业
【交付标准】:精装修交付
【产品面积】:住宅约29万㎡,商务公寓约3.7万㎡,商业5.1万㎡
【交房时间】:2024年12月31
深圳华侨城四海华亭售楼处电话:400-088-3336【销售中心】

深圳华侨城四海华亭售楼处电话:400-088-3336【销售中心】
华侨城四海华亭
开发商简介
鸿荣源集团创立于1991年,历经近30年稳健发展,现已发展成为以地产全产业链综合开发、商业运营、产业发展、金融科技四大板块为核心,多元化经营的大型综合性企业集团。
城市运营商央企华侨城地产匠心打造,千亿央企品牌,匠心37载,专注城市标杆。著有新天鹅堡、波托菲诺、欢乐海岸、欢乐港湾等城市标杆作品,布局全国100余座城市。

深圳华侨城四海华亭售楼处电话:400-088-3336【销售中心】
项目就近学校
高峰学校、龙华中心小学、龙华第三小学、项目配建幼儿园、九年一贯制龙华中学弘毅校区等5学府。深圳华侨城四海华亭售楼处电话:400-088-3336【销售中心】

深圳华侨城四海华亭售楼处电话:400-088-3336【销售中心】

深圳华侨城四海华亭售楼处电话:400-088-3336【销售中心】
项目文体公园
有
双公园环绕,零距离享超20万㎡鲜氧吧

深圳华侨城四海华亭售楼处电话:400-088-3336【销售中心】
龙胜公园:距离100m,是龙华群众文化活动公园,一年四季都是休闲放松好地方。深圳华侨城四海华亭售楼处电话:400-088-3336【销售中心】

深圳华侨城四海华亭售楼处电话:400-088-3336【销售中心】
龙华公园:距离850m,占地20万㎡,登塔龙华全景尽收眼底

深圳华侨城四海华亭售楼处电话:400-088-3336【销售中心】
2km范围内还有三联公园、上芬社区公园、龙塘公园、阳台山森林公园等。
项目就近商业
项目自带5万㎡艺术风情商业街区,联动周边深圳最大型商业壹方天地、华南地区Costco、红山6979、天虹商场等,构建超级中心。深圳华侨城四海华亭售楼处电话:400-088-3336【销售中心】

深圳华侨城四海华亭售楼处电话:400-088-3336【销售中心】
项目就近医院
龙华区人民医院、龙华区中心医院、龙华妇幼保健院、深圳市第二儿童医院。深圳华侨城四海华亭售楼处电话:400-088-3336【销售中心】
深圳华侨城四海华亭售楼处电话:400-088-3336【销售中心】
项目交通
华侨城四海云亭距离4号地铁龙胜站与龙华站均约700米左右,3站到达深圳北站,可在深圳北站多线换乘。深圳华侨城四海华亭售楼处电话:400-088-3336【销售中心】

深圳华侨城四海华亭售楼处电话:400-088-3336【销售中心】
项目在售情况
整体分两期开发。其中一期包含龙胜尚府、龙胜华府、龙胜悦府、龙胜云坊(公寓);二期为四海华亭(住宅商品房)。
项目展厅及样板房已经开放,推出87-95-105-112-120平3-4房,单价5.4-6.1万之间,480万起买华侨城央企公园房,首付140万起;公寓24-55平1-2房,3.6万起带装修。深圳华侨城四海华亭售楼处电话:400-088-3336【销售中心】

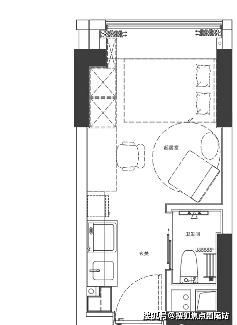
住宅户型图鉴赏

深圳华侨城四海华亭售楼处电话:400-088-3336【销售中心】
【C2-建面约87㎡】客餐厅一体化空间,动静分离式布局,超长玄关收纳柜体。深圳华侨城四海华亭售楼处电话:400-088-3336【销售中心】

深圳华侨城四海华亭售楼处电话:400-088-3336【销售中心】
【C3-建面约96㎡】家政阳台定位,6人位餐厅满足多人就餐,主卧独立卫生间。深圳华侨城四海华亭售楼处电话:400-088-3336【销售中心】

深圳华侨城四海华亭售楼处电话:400-088-3336【销售中心】
【C5-建面约112㎡】大横厅布局,超长观景阳台,卧室满面窗户,超强采光通风。深圳华侨城四海华亭售楼处电话:400-088-3336【销售中心】

深圳华侨城四海华亭售楼处电话:400-088-3336【销售中心】
【E-建面约121㎡】大横厅布局,超长观景阳台,玄关柜餐边柜一体化设置,独立衣帽间。深圳华侨城四海华亭售楼处电话:400-088-3336【销售中心】

深圳华侨城四海华亭售楼处电话:400-088-3336【销售中心】
位于深圳龙华的华侨城四海华亭·龙胜云坊楼盘去年10月1日起开售24-55平的精品公寓,折后单价约3.54万起/㎡,总价85万/套起。深圳华侨城四海华亭售楼处电话:400-088-3336【销售中心】
公寓户型鉴赏:
【建面约24㎡】

深圳华侨城四海华亭售楼处电话:400-088-3336【销售中心】
【建面约55㎡】

深圳华侨城四海华亭售楼处电话:400-088-3336【销售中心】
深圳龙华区楼盘详情:
溪山·君樾三期(新品) 户型面积:144-173m、均价7.9万/㎡
富基·云珑府户型面积:123-155m、均价6.35万/㎡、交楼时间:2025年4月
盛璟润府户型面积:95-143m、单价6.2万-7.8万/㎡、交楼时间:2023年12月31
御景华府户型面积:67-119m、均价5.2万/m、交楼时间:2023年12月31
鸿荣源·博誉府户型面积: 85-126m、总价610-1153万
鸿荣源·壹成中心户型面积:85-94m、均价7.18万/m、交楼时间:2025年5月
万福花园户型面积:79-135m、单价6.2万/㎡起 、现楼
华侨城四海华亭户型面积:87-121m、单价5.4-6.1万/m、交楼时间:预计24年底
卓越和奕府户型面积:一期:93-113m、一期总价580-776万 、一期交楼时间:2024.12.31
卓越和奕府户型面积:二期:97㎡、二期总价532万起 、二期一期交楼时间:2025.6
皇嘉珑府户型面积:60-113m²单价 、6.74万/㎡、现楼
万科启城户型面积:97m-115m、单价5.7万/㎡、交楼时间:2024年12月
中海闻华里户型面积:95㎡-116m、总价630万-840万、交楼时间:2025年3月
金光华龙岸君粼户型面积:86㎡-176㎡住宅、单价7.4-8.4万/m、交楼时间:2025下半年
金光华龙岸君粼户型面积:206-258㎡世家臻墅、均价11-17万/㎡、现楼
金光华龙岸君粼户型面积:171-179㎡洋房、总价1500-2100万、现楼
鸿荣源尚云户型面积:82㎡-120m、总价480-838万、交楼时间:2025.12.31
观澜汇云庭花园户型面积:103-129m、总价430万-650万、交楼时间:2025.12.31
安宏基天曜府户型面积:56-135m、总价422-1118万、交楼时间:2025年年底
星河星悦云邸户型面积:95-124m、总价418万-645万、交楼时间:2026年3月1日
深业颐樾府户型面积:78-125m、总价530-940万、交楼时间:2025年9月30日
招商雍云府户型面积:67-110m总价297-536万、交楼时间:2025.11.30
安宏基星曜广场户型面积:93-98-125㎡、总价450-510万、现房
中海珑悦理户型面积:88-129m、总价580-1005万、交楼时间:2025年7月底
天湖岛户型面积:125m、总价752万-927万、交楼时间:2026年6月底
壹湾府户型面积:86-96-118㎡、总价525万-861万、交楼时间:2026年12月31
盛荟城户型面积:81-89m、单价4.7-5.5万/㎡、交楼时间:2023年10月底
九龙公馆户型面积:复式28-51㎡、平层65-88价格待定(还没拿预2025.6.30售)
深圳华侨城四海华亭
◆深圳华侨城四海华亭售楼处电话:400-088-3336【销售中心】
◆华侨城四海华亭营销中心专线:400-088-3336【欢迎致电-24小时专线】
◆在线预约看房丨置业顾问一对一对接丨享受最低优惠
◆首付月供计算丨营销中心位置丨小区环境丨
免责声明:
以上所发布的关于楼盘相关图文信息仅供您买房前参考,以上所有关于本楼盘的图文资料及说明请以最终以项目批文及双方在楼盘营销中心现场签署的买卖最终合同为准;本图文内容如无意中侵犯到某方权益,请联系我们将会及时处理。