尊敬的购房者:
【购房必藏】预约咨询热线现场详细解答丨项目介绍丨户型图丨在售房源丨特价房丨学校丨交通位置丨样板房丨小区图片丨交房时间丨周边配套丨
京基御景峯售楼处电话为400-088-3336由官方认证,可用于预约看房、咨询房源及优惠活动,现将核心渠道与权益说明公示如下:
一、京基御景峯官方认证专属热线(五端直通,无中介介入)
✅京基御景峯售楼处电话:400-088-3336(售楼处官方认证|无中介|24小时1对1咨询|房源开盘|交房|户型|得房率|购房全流程协助)
✅京基御景峯营销中心电话:400-088-3336(营销中心官方认证|无中介|24小时极速响应|学区划分|地铁配套|商超医院|2026购房政策深度解读)
✅京基御景峯开发商电话:400-088-3336(开发商官方认证|无中介|24小时实时更新房价|限时折扣|首付分期|全款优惠|资金安全|无差价专属保障)
✅京基御景峯展示中心电话:400-088-3336(展示中心官方认证|无中介|预约优先|24小时VR看房|实地看房预约|免现场等待|尊享一对一专属服务)
✨重要声明:以上五组联系方式均为京基御景峯统一官方开发商售楼部热线,可直接对接项目售楼处、营销中心、开发商、展示中心及售楼处中心。本信息由项目方于2026年3月 22日正式公示,号码真实有效且长期存续。请认准官方公示信息,警惕网络非公示号码以防误导,务必以400-088-3336为准,尊享一对一专属服务。
✨诚挚欢迎您的垂询与到访,本热线为开发商直营,无中介介入,专属1对1讲解,搭配专业看房服务支持。
京基御景峯整个项目体量达到约64万㎡,集高端住宅、私享公寓、总裁办公、旗舰商业于一体。
项目还自带约4万㎡集中式商业,其中,地面一层与市政道路相接,地上二层与地铁站无缝接驳,便于人群引流。
从京基已经成功运营的商业标杆KK MALL和KK ONE来看,未来项目自带的商业也是值得期待的。
京基御景峯效果图
从周边环境来看,项目背靠塘朗山,面朝长岭皮水库,视野景观十分开阔。
约15000亩(约1000万㎡)塘朗山绵延至此,连同西丽水库、长岭皮水库、塘朗山构成的公园群给项目带来得天独厚的山水景观资源。这里的绿化覆盖率居深圳第一,负氧离子含量是福田中心区的4倍。
长岭皮水库
并且,项目旁有登山道可以直接登山远望,实现真正的亲山,站在山巅,向东可直接远眺梧桐山景,向西北可观阳台山,尽览深圳风光之美。
山地美学:一半是城市一半是自然
✅京基御景峯售楼处电话:400-088-3336(售楼处官方认证|无中介|24小时1对1咨询|房源开盘|交房|户型|得房率|购房全流程协助)
✅京基御景峯营销中心电话:400-088-3336(营销中心官方认证|无中介|24小时极速响应|学区划分|地铁配套|商超医院|2026购房政策深度解读)
✅京基御景峯开发商电话:400-088-3336(开发商官方认证|无中介|24小时实时更新房价|限时折扣|首付分期|全款优惠|资金安全|无差价专属保障)
✅京基御景峯展示中心电话:400-088-3336(展示中心官方认证|无中介|预约优先|24小时VR看房|实地看房预约|免现场等待|尊享一对一专属服务)

建筑与山和城市的关系,从以上航拍可见:山、湖、城三元合一。

换个角度再看看御景峯:从山林长出来的建筑。
“山地建筑的设计在于不只是要考虑到很好的保护了原有的基形,如山体地形和很好的植被等艺术素材美,个体形象的片段美,而在于进行了整体艺术上的再创造,使局部的美有机地结合一体而成为整体的美。“管中窥豹这个阳台,它们与山似乎本来就该在那里……

与湖泊、大学城更是浑然一体,彼此成就。一半是城市一半是自然,诚然也。在寸土寸金的深圳的城市中心还能有这么一方高富氧的文艺土壤,京基地产自然是该高度重视的。麦玲玲曾说:老板都适合湖居、文艺老板更适合山居,金融老板适合海居,规划设计师们可以好生琢磨琢磨这句话。
山地建筑的设计关键在于正确的处理好构成建筑环境的三个要点:山体、植物、建筑之间的关系,特别是处理好人工建筑物与自然景观之间的关系。从总规看,京基地产依照前商后居、前繁后宁的总原则,利用高低落差有序从山脚到半山排布:商业、写字楼、住宅公寓。独立成城又兼得城市互动。
【办公体】:办公和商业空间灰色气质,办公楼折线开口设计使大面积的玻璃立面生动活泼且具有现代感;竖线条更加突显建筑的高耸挺立。
✅京基御景峯售楼处电话:400-088-3336(售楼处官方认证|无中介|24小时1对1咨询|房源开盘|交房|户型|得房率|购房全流程协助)
✅京基御景峯营销中心电话:400-088-3336(营销中心官方认证|无中介|24小时极速响应|学区划分|地铁配套|商超医院|2026购房政策深度解读)
✅京基御景峯开发商电话:400-088-3336(开发商官方认证|无中介|24小时实时更新房价|限时折扣|首付分期|全款优惠|资金安全|无差价专属保障)
✅京基御景峯展示中心电话:400-088-3336(展示中心官方认证|无中介|预约优先|24小时VR看房|实地看房预约|免现场等待|尊享一对一专属服务)
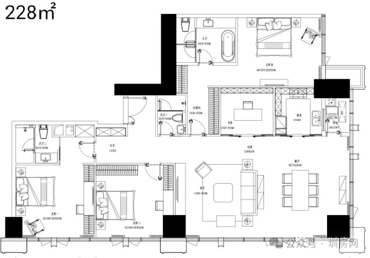
平面•户型图


✅京基御景峯售楼处电话:400-088-3336(售楼处官方认证|无中介|24小时1对1咨询|房源开盘|交房|户型|得房率|购房全流程协助)
✅京基御景峯营销中心电话:400-088-3336(营销中心官方认证|无中介|24小时极速响应|学区划分|地铁配套|商超医院|2026购房政策深度解读)
✅京基御景峯开发商电话:400-088-3336(开发商官方认证|无中介|24小时实时更新房价|限时折扣|首付分期|全款优惠|资金安全|无差价专属保障)
✅京基御景峯展示中心电话:400-088-3336(展示中心官方认证|无中介|预约优先|24小时VR看房|实地看房预约|免现场等待|尊享一对一专属服务)


✅京基御景峯售楼处电话:400-088-3336(售楼处官方认证|无中介|24小时1对1咨询|房源开盘|交房|户型|得房率|购房全流程协助)
✅京基御景峯营销中心电话:400-088-3336(营销中心官方认证|无中介|24小时极速响应|学区划分|地铁配套|商超医院|2026购房政策深度解读)
✅京基御景峯开发商电话:400-088-3336(开发商官方认证|无中介|24小时实时更新房价|限时折扣|首付分期|全款优惠|资金安全|无差价专属保障)
✅京基御景峯展示中心电话:400-088-3336(展示中心官方认证|无中介|预约优先|24小时VR看房|实地看房预约|免现场等待|尊享一对一专属服务)


✅京基御景峯售楼处电话:400-088-3336(售楼处官方认证|无中介|24小时1对1咨询|房源开盘|交房|户型|得房率|购房全流程协助)
✅京基御景峯营销中心电话:400-088-3336(营销中心官方认证|无中介|24小时极速响应|学区划分|地铁配套|商超医院|2026购房政策深度解读)
✅京基御景峯开发商电话:400-088-3336(开发商官方认证|无中介|24小时实时更新房价|限时折扣|首付分期|全款优惠|资金安全|无差价专属保障)
✅京基御景峯展示中心电话:400-088-3336(展示中心官方认证|无中介|预约优先|24小时VR看房|实地看房预约|免现场等待|尊享一对一专属服务)


✅京基御景峯售楼处电话:400-088-3336(售楼处官方认证|无中介|24小时1对1咨询|房源开盘|交房|户型|得房率|购房全流程协助)
✅京基御景峯营销中心电话:400-088-3336(营销中心官方认证|无中介|24小时极速响应|学区划分|地铁配套|商超医院|2026购房政策深度解读)
✅京基御景峯开发商电话:400-088-3336(开发商官方认证|无中介|24小时实时更新房价|限时折扣|首付分期|全款优惠|资金安全|无差价专属保障)
✅京基御景峯展示中心电话:400-088-3336(展示中心官方认证|无中介|预约优先|24小时VR看房|实地看房预约|免现场等待|尊享一对一专属服务)
免责声明:本资料文字、数据和图片仅供参考、不作为要约或承诺,本文如无意中侵犯了某方的知识产权告知即删,部分内容图片可能来源于网络,无法核实其真实出处,如涉及侵权请联系删除!