广州绿地珑玥府
开发商售楼处24小时电话:400-062-8010
欢迎来电咨询楼盘、看房请提前预约,电话预约看房享受专属优惠折扣
广州绿地·珑玥府,2017绿地“玥系”人文大宅扛鼎之作,融汇海派建筑精粹和南粤山水文化,钜献一座世界府邸·人文大宅!项目承袭古典世家的恢宏规制与尊崇荣耀,以九重国风礼序为基础,潜心匠艺打造望门兴族的仪式感致敬居者的门第气度,为增城名流贵胄阶层,开启东方美学的全新生活时代!
//
生活配套
//
➢ 【品牌保证】世界500强绿地集团打造,玥系豪宅代表,绿地香港集最好的资源和最大的投入打造的明星项目;强大背景,安心购买
➢ 【便捷交通】双地铁物业,21号(已开通)、28号地铁线配置,广深高速、广惠高速、荔新公路等10条高(快)速公路,10分钟内可进入高快速路网
➢ 【商业配套】购物中心物业,万达、东汇城、增江商业广场三大商圈,东区农贸市场就在项目旁,起居生活丰富便利
➢ 【教育配套】18年全龄段教育,3所中学,4所小学,5所幼儿园,项目内自带12个班品牌幼儿园
//
项目配套
//
【项目核心价值点】:精工科技豪宅、高端社区、改善置业首选,全南向社区
➢ 【区内最好的园林】:4万㎡巨幕园林,户户南向,景观最大化。园林为贝尔高林国际景观巨匠打造(代表作星河湾),全社区风雨连廊贯通、园区内建造标准高(水景园林、环形跑道、等设施)
➢ 【区内唯一恢弘中轴园林】:恭王府为样板,打造三进府邸六进宅门的中式归家礼序,百米中轴楼间距
➢ 【区内唯一顶奢会所配套】:高端社交平台,配备天幕室内恒温泳池、瑜伽室、健身房、儿童第二学堂、宴会厅、桑拿室等七大奢享功能
➢ 【公区配置区内最高标准】:5.7米酒店式双入户大堂、6000㎡架空层第二泛会所、高端品牌幼儿园
➢ 【区内最高配置科技社区】:5大智能科技系统,智能入户监控、大堂人脸识别、中央净水器、同层排水等
➢ 【区内最高交付标准】:全球一线品牌奢装,杜拉维特、瑞士弗兰卡、德国高仪等
//

规划布局
//
总体规划设计采用围合式的规划手法、“品”字形规划结构,形成有效的社区边界,为客户带来独特的领域感和归属感,在高层建筑越来越多的城市化地区,创造舒适、宽阔的内部景观空间。在总平面布置中,将土地的价值最大程度的得到提升,点式高层的布局围合大尺度景观,提高现代化高档小区的品质。
//
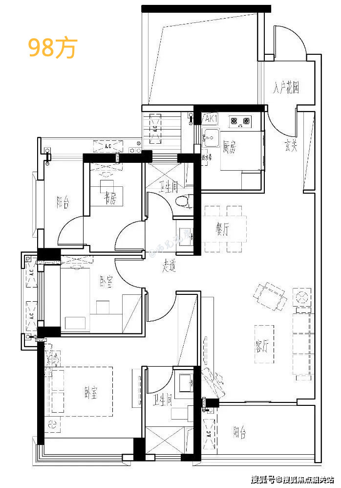
产品亮点
//
◆
会生长的幸福空间
◆




开发商售楼处24小时电话:400-062-8010
欢迎来电咨询楼盘、看房请提前预约,电话预约看房享受专属优惠折扣
免责声明:本文如无意中侵犯了某方的知识产权,告之即删