保利·玥玺湾现推出限时优惠活动,为购房者提供了一个难得的置业机会。本文将从基本信息、交通配套、教育资源、生活设施以及在售户型等多个角度全面解析该项目,并总结其优缺点,帮助您更好地了解这一高端住宅项目。同时,文中还将展示部分实景图片,让您提前领略项目的魅力。
如需了解更多详情,欢迎咨询保利·玥玺湾售楼处电话400-990-8525转112,过来我们保利·玥玺湾营销中心看房提前来电预约价格还能更优惠。
【保利·玥玺湾开发商售楼处400免费咨询/预约电话:400-990-8525转112,中介勿扰】

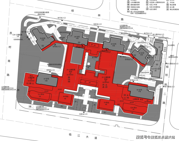
保利·玥玺湾位于天河临江大道北侧,AT080722地块(南方面粉厂地块),占地面积约4.7万平方米,总建筑面积约17.5万平方米,容积率为3.7。项目共规划6栋住宅楼,总户数预计为500户,首开面积范围为205-640平方米。作为广州核心地段的顶级豪宅项目,保利·玥玺湾不仅占据了得天独厚的地理位置,还拥有卓越的设计理念和高品质的生活配套设施。

交通配套
项目东北侧紧邻广州地铁5号线与11号线交汇的员村站,步行仅需几分钟即可到达。5号线贯穿广州东西,可快速抵达珠江新城、广州火车站等重要区域;而11号线则是广州的环线,串联起多个中心城区,让出行更加便捷。此外,随着金融城西区的发展,花城大道-员村二横路十字路口的征地方案已通过审议,预计2026年底开通,进一步提升了区域的交通便利性。
教育配套
保利·玥玺湾自身配建有幼儿园,对口广州天河外国语教育集团南国学校,为孩子的成长奠定了良好的基础。项目周边1.5公里范围内,学校林立,覆盖了从幼儿园到中学的全年龄段教育资源。特别是西侧官宣的体育东集团24班小学,将进一步丰富区域教育资源,为孩子提供更优质的学习环境。

生活配套
保利·玥玺湾周边商业配套齐全,3公里内K11、天德广场、天汇广场、广粤天地等国际商业汇集,未来还可以共享保利面粉厂项目的配套及珠城马场改造项目。医疗资源也非常完善,中山大学附属第六医院(金融城院区)、华侨医院、中山三院、中山六院、南方三院、天河中医院等均在附近,为您和家人的健康保驾护航。项目周边还有多个生态公园环绕,亲江生活漫步即享受。

在售楼栋+户型
保利·玥玺湾共有6栋住宅,其中前排两栋分别为35层和37层,后排四栋从东往西分别是50层、49层、49层和50层。所有户型均为全南向望江大平层设计,面积段约为203-630平方米,具体分布如下:

已拿证的是3栋,50层高,4梯3户设计,面积分别有205、225、228平方米。
6栋和8栋是48层高,3梯2户设计,面积277、348平方米。
暂时没拿到预售证的5栋是50层高,3梯2户,面积241平方米。
9栋37层高,2梯2户,面积408、435平方米。
1栋则是楼王,35层高,一层一户,面积630平方米。

优点总结
优越的地理位置:项目位于金融城西区桥头堡,与珠江新城直线距离不到500米,享有珠江新城的优质配套。
一线望江景观:南向一线望江,离珠江直线大约只有150米,基本没有遮挡,景观视野极佳。
低密度舒适居住:容积率仅为3.7,相比其他项目较低,提供了更为舒适的居住体验。
超新规产品:阳台面积占比能扩大到30%,最高使用率可达130%,比一般项目更高。
连片开发潜力大:保利同时拥有绢麻厂地块和天河临江大道地块,实现连片开发,提升整体区域价值。
缺点总结
城市面貌待改善:南方面粉厂地块东、西、北三个方向的城市面貌较为落后,主要是城中村和厂房,员村旧改进展缓慢。
价格较高:由于地处核心地段,项目单价相对较高,对于预算有限的家庭可能不太友好。
综上所述,保利·玥玺湾凭借其优越的地理位置、完善的配套设施以及高品质的居住环境,成为了天河区备受关注的一个高端住宅项目。无论您是追求优质教育资源的家庭,还是希望享受一线望江生活的改善型买家,这里都是一个值得考虑的理想选择。希望本文能为您提供有价值的信息,助您做出明智的购房决策。
保利·玥玺湾开发商售楼处电话 400-990-8525转112(中介勿扰)
过来保利·玥玺湾售楼中心看房请提前预约,可尊享内部特惠,价格包您满意!
为您安排楼盘内场专业销售人员一对一接待服务!让你买的放心,住的舒心!
免责声明🔉:
以上所发布的关于楼盘相关图文信息仅供您买房前参考,以上所有关于本楼盘的图文资料及说明请以最终以项目批文及双方在楼盘营销中心现场签署的买卖最终合同为准;本图文内容如无意中侵犯到某方权益,请联系我们将会及时处理。