🔘星河·江堤春晓🔘
🔘星河·江堤春晓售楼处电话:400-078-0020【☎售楼处已认证】✨✨✨
🔘星河·江堤春晓开发商电话:400-078-0020【☎开发商已认证】✨✨✨
🔘星河·江堤春晓展示中心电话:400-078-0020【☎展示中心已认证】✨✨✨
🔘星河·江堤春晓营销中心电话:400-078-0020【☎营销中心已认证】✨✨✨
⭐◆开发商营销中心诚挚邀请,一键预约,尊享内部折扣!匠心独运的精品项目,恭候您的品鉴与选择。⭐

星河·江堤春晓:南沙横沥岛尖的高品质一线江景房

一、项目概况
『星河·江堤春晓』位于广州市南沙区横沥岛尖,是该区域一个新兴的高品质住宅项目。作为金融岛尖的重点开发项目之一,它不仅享有得天独厚的地理位置,还提供了270°揽江的极致视野。该项目距离18号线横沥站仅约500米,交通便利,周边配套设施齐全,旨在为居民打造一个舒适便捷的生活环境。

二、位置与交通优势
地理位置
『星河·江堤春晓』坐落于南沙区横沥岛尖,属于湾区核心地带。这里不仅是广州城市新核心,还是“三区一中心”战略的重点发展区域,致力于建设成为大湾区未来之城。

交通设施
地铁:项目距离18号线横沥站仅约500米,这条时速高达160km/h的地铁线串联了珠江新城、琶洲、万博、横沥岛四大CBD,乘坐快线2站即可抵达琶洲(磨碟沙站),3站到达珠江新城(冼村站)。
规划扩展:未来计划将18号线北延至白云、花都,南延至中山、珠海、深圳,进一步加强与湾区核心城市的快速互通。


三、教育资源
横沥岛整体规划包括12处教育设施,涵盖7所幼儿园、1所十二年一贯制学校、3所九年一贯制学校和1所小学。『星河·江堤春晓』自身配备一所幼儿园,并且南侧的一所48班小学也已开工建设,确保孩子能够享受优质教育资源,步行即达,省下的时间可以用于培养孩子的兴趣爱好,助力孩子赢在起跑线上。
四、品牌实力
『星河·江堤春晓』由具有36年历史的AAA绿档房企——星河地产开发。作为深耕南沙19载的品牌开发商,星河已在南沙成功打造了13个标杆项目,品质有保障,值得信赖。
五、社区设计
小区体量不大,共建设3栋28层高的住宅楼和6栋商墅,并配建了一所幼儿园。所有住宅均采用2梯4户的设计,基本从5楼以上即可无遮挡望江,提供开阔的江景视野。首推户型面积在99-134平方米之间,满足不同家庭结构的需求。
六、户型设计

『星河·江堤春晓』推出了两种主要户型:
建面约99平三房两厅两卫户型:
经典竖厅设计,户型方正实用;
约6.2米阳台,一线瞰江揽景;
U型宽厨布局,烹饪流畅高效;
奢阔主卧套房,空间宽敞明亮。

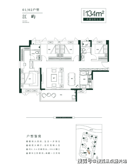
建面约134平四房两厅两卫户型:
奢阔大四房设计,适合大家庭居住;
超开阔横厅设计,提升居住体验;
约6.8米巨幕阳台,IMAX级瞰江视野;
豪华主卧套间,私密性与舒适性兼具。

七、优缺点分析
优点
优越的地理位置:地处南沙横沥岛尖,紧邻18号线横沥站,交通极为便利。
丰富的教育资源:项目自带幼儿园及周边多所学校,提供优质教育资源。
品牌实力雄厚:由知名房企星河地产开发,品质有保障。
一线江景资源:部分户型可享受270°揽江景观,提供极致视觉享受。
多样化户型选择:推出多种户型设计,满足不同家庭需求。
缺点
小区规模较小:只有3栋住宅楼和6栋商墅,可能缺乏大型社区的一些配套设施。
价格因素:由于其优越的位置和高品质设计,房价可能相对较高。
八、总结
『星河·江堤春晓』凭借其卓越的地理位置、便捷的交通条件、丰富的教育资源以及高品质的建筑设计,成为南沙区不可多得的高品质住宅项目。无论是追求生活品质的家庭,还是注重未来发展潜力的投资客,该项目都是一个理想的选择。如果你正在寻找一个既具备自然美景又拥有便捷生活的居所,不妨考虑预约参观『星河·江堤春晓』,亲身体验这一独特的人居典范。
🔘星河·江堤春晓售楼处电话:400-078-0020【☎售楼处已认证】✨✨✨
🔘星河·江堤春晓开发商电话:400-078-0020【☎开发商已认证】✨✨✨
🔘星河·江堤春晓展示中心电话:400-078-0020【☎展示中心已认证】✨✨✨
🔘星河·江堤春晓营销中心电话:400-078-0020【☎营销中心已认证】✨✨✨
开发商售楼处24小时电话:400-078-0020(预约咨询热线)现场详细解答丨项目介绍丨户型图丨在售房源丨特价房丨学校丨交通位置丨样板房丨小区图片丨交房时间丨周边配套丨
免责声明:部分信息来源于网络,如果侵权,请联系及时删除
本宣传资料不构成邀约邀请,对周边、政府规划、商业配套、教育资源、投资前景等数据和图文仅为提供相关信息,该信息以政府最终批文为准,开发商不对此作任何承诺。买卖双方的权利义务以双方签订的买卖合同约定及附件、实际交付为准,本公司保留对宣传资料修改的权利,敬请留意最新资料。联系号码:400-078-0020