合生·缦云售楼处Vip Tel:400-990-8525转112售楼处【售楼处已认证☎☎】⭐
合生·缦云营销中心24小时电话:400-990-8525转112【营销中心☎☎已认证】⭐
合生·缦云营销中心24小时电话:400-990-8525转112【售楼中心☎☎已认证】⭐
合生·缦云售楼中心24小时电话:400-990-8525转112【售楼处限时特价】⭐
合生·缦云售楼中心24小时电话:400-990-8525转112【营销中心☎☎已认证】⭐
合生·缦云营销中心24小时电话:400-990-8525转112【售楼处☎☎已认证】⭐
⭐◆ 开发商营销中心诚挚邀请,为您安全和隐私保驾护航,一键预约,尊享内部折扣!匠心独运的精品项目,恭候您的品鉴与选择。⭐ 过来参观样板房烦请记得提前来电预约!安排楼盘现场销售全程接待并讲解,给您更贴心的看房体验!

合生·缦云作为天河国际生态区的豪宅项目,凭借其得天独厚的自然环境和教育资源吸引了众多关注。当前项目正在进行降价促销活动,为购房者提供了绝佳的入手时机。本文将全面分析合生·缦云的各项优势与特色,并总结其优缺点,帮助您做出明智的购房决策。

1. 基本信息
项目概述
合生·缦云位于广州市天河区悦景路11号,总占地面积约8.1万平方米,总建筑面积约37万平方米,规划有42栋住宅楼,共提供1270户住宅单位。项目采用纯板式低密度小高层设计,每栋楼高16-17层,梯户比为2梯2户或3梯2户,旨在打造舒适宜居的高品质生活空间。
2. 交通配套
地铁与自驾
尽管项目距离最近的地铁站——21号线大观南路站直线距离超过1公里,但通过公交车接驳可以方便地到达地铁站。对于依赖地铁出行的业主来说,自驾是更为便捷的选择。此外,项目周边的悦景路近期进行了拓宽改造,规划为双向六车道的城市主干道,进一步提升了自驾出行的便利性。

3. 教育配套
学校资源
合生·缦云社区内自带全线12年公立教育配套,包括幼儿园、18班小学和27班初中,并已确定引进天河外国语学校办学,预计于2025年9月开学。周边还汇聚了清华附中、执信中学等五大省级中学,为业主子女提供了丰富的教育资源选择。
4. 生活配套
社区设施
合生·缦云依托约71万㎡的原生半山生态资源,打造出丰富多变的台地园林景观,配备全龄功能场景,如立体儿童游乐场、空中栈道、半山观景平台等,营造出沉浸式的居住体验。此外,项目还拥有一个约3800㎡的星际会所,涵盖文化、运动、健康等多种功能,满足业主的日常需求。

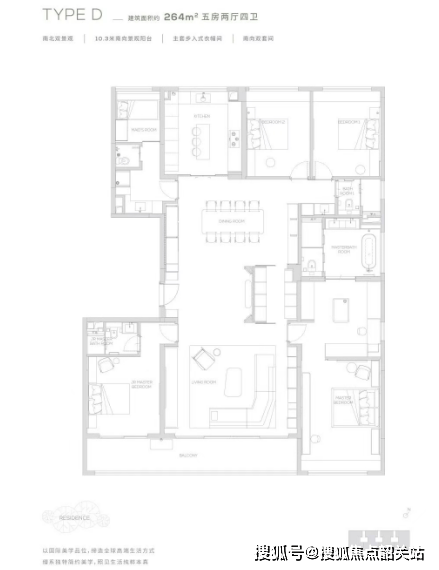
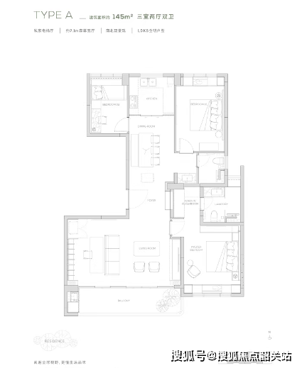
5. 在售楼栋与户型
户型介绍
所有楼栋均为16-17层纯板式小高层设计,专梯专户,确保住户的隐私性和舒适度。项目主打高端大平层户型,最小面积为145平方米,最大可达168平方米,四室两厅三卫的设计充分考虑了家庭成员的生活需求。每个空间均采用优质的材料和工艺进行独特设计,配备M+科技系统,实现绿色健康的智慧生活。



6. 优点总结
优越的生态环境:背山望湖,紧邻约2万㎡月亮湖,负氧离子含量高,占据市中心稀缺生态资源。
顶级教育资源:社区内自带全线12年公立教育配套,引进天河外国语学校,教育资源优势明显。
高端物业管理:由缦合物业负责管理,提升居住品质和圈层纯粹性。
私密性强:采用板式户型设计,低密度布局,专梯专户,保障住户隐私。
高品质交标:外立面采用全铝幕墙设计,内部装修标准高,配备M+科技系统,提升居住体验。
7. 缺点总结
交通不便:距离最近的地铁站较远,依赖公共交通出行不够便捷,自驾成为主要出行方式。
建筑密度较高:虽然容积率不高,但由于限高导致楼栋数量较多,建筑密度偏高。
楼间距有限:大部分小高层楼间距约为35米,在豪宅盘中表现一般。
户型过时:部分户型设计较为传统,未能完全符合新规后的产品趋势。
结语
合生·缦云以其卓越的生态环境、顶级教育资源和高品质的生活配套设施,成为天河区不可多得的优质豪宅项目。当前项目正处于降价促销期,为追求高品质生活的购房者提供了难得的机会。如果您对该项目感兴趣,欢迎前来咨询了解最新优惠信息,并亲自体验这个充满魅力的理想家园!
合生·缦云售楼处Vip Tel:400-990-8525转112售楼处【售楼处已认证☎☎】⭐
合生·缦云营销中心24小时电话:400-990-8525转112【营销中心☎☎已认证】⭐
合生·缦云营销中心24小时电话:400-990-8525转112【售楼中心☎☎已认证】⭐
合生·缦云售楼中心24小时电话:400-990-8525转112【售楼处限时特价】⭐
合生·缦云售楼中心24小时电话:400-990-8525转112【营销中心☎☎已认证】⭐
合生·缦云营销中心24小时电话:400-990-8525转112【售楼处☎☎已认证】⭐
⭐◆ 开发商营销中心诚挚邀请,为您安全和隐私保驾护航,一键预约,尊享内部折扣!匠心独运的精品项目,恭候您的品鉴与选择。⭐ 过来参观样板房烦请记得提前来电预约!安排楼盘现场销售全程接待并讲解,给您更贴心的看房体验!