【广州友联君御】
✨✨广州友联君御售楼处电话:400-631-8160 【✅ 售楼处已认证】
✨✨广州友联君御营销中心电话:400-631-8160 【✅ 营销中心已认证】
✨✨广州友联君御开发商电话:400-631-8160 【✅ 开发商已认证】
📌📌 参观提示
本项目暂不接受临时到访,参观样板房请提前来电预约!
专属销售全程陪同讲解,为您带来舒心看房旅程!
⚠️ 重要提醒
本楼盘售楼部 400 电话未设置任何 “分机号”,请仔细辨别号码,保护个人隐私,谨防受骗!
友联君御置业咨询专线:400-631-8160【中介勿扰】


友联·君御:市桥芯的高端品质生活

项目基础介绍
友联·君御位于广州市番禺区市桥核心区域,是一个集住宅、公建和商业为一体的综合性房地产项目。该项目由广州市番禺友联房地产有限公司开发,规划户数为121户,楼层状况为28层,提供从一居室到三居室不等的多种户型选择,满足不同家庭结构的需求。

✨✨广州友联君御售楼处电话:400-631-8160 【✅ 售楼处已认证】
✨✨广州友联君御营销中心电话:400-631-8160 【✅ 营销中心已认证】
✨✨广州友联君御开发商电话:400-631-8160 【✅ 开发商已认证】
开发商资料
友联·君御的开发商是广州市番禺友联房地产有限公司,一家在广州市番禺区内有丰富开发经验的企业。该公司致力于打造高品质住宅项目,以满足市场对理想居住环境的需求。
区域规划亮点
友联·君御地处市桥中心板块,该区域作为番禺的政治、经济、文化、商贸中心,拥有成熟的交通、教育、医疗、商业等配套资源。项目周边的交通网络发达,尤其是与地铁3号线、17号线(规划中)、18号线以及22号线的便捷接驳,使得居民能够快速到达城市的各个角落。
在售户型及价格
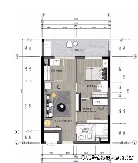
友联·君御提供的户型面积从约48平方米至134平方米不等,包括一房一厅至三房两厅的设计,每个户型都有其独特的布局特点,如最小的48平方米户型适合单身人士或年轻夫妇,而较大的134平方米户型则适合大家庭居住。
住宅产品方面,7户各不相同,为建面约48-134㎡一至三房。
最小的48㎡单位,基本就是“一眼睇晒”的一房一厅,卧室连阳台,应该比较舒适。

82㎡户型,乍看直厅户型,做了3房好像整体也比较中规中矩是不是?

110㎡的面积段约5.7米阳台是亮点
主卧带有南向阳台,算是一个卖点。当然,也可以根据实际需求,将阳台改成卧室一部分。


✨✨广州友联君御售楼处电话:400-631-8160 【✅ 售楼处已认证】
✨✨广州友联君御营销中心电话:400-631-8160 【✅ 营销中心已认证】
✨✨广州友联君御开发商电话:400-631-8160 【✅ 开发商已认证】


小区环境怎么样?
小区内部设有立体中空花园,提供一个自然舒适的居住环境。此外,距离项目仅300米处还有占地70亩的市政绿地公园——星海公园,可供居民休闲健身使用。
学校配套
友联·君御周边名校环绕,涵盖了东城小学(省一级)、桥东小学(市一级)、东风中学(省一级)等多所优质学府,形成了良好的教育资源圈,为孩子的成长提供了坚实的基础。
交通配套如下:
地铁:3号线、17号线(规划中)、18号线、22号线四轨交汇。
公交:周边有多条公交线路经过,方便居民日常出行。
商业配套
项目周边覆盖了多个大型商圈,如番禺易发商圈和永旺商圈,提供了丰富的购物、娱乐、餐饮选择。
医疗设施
友联·君御附近拥有两家三甲医院——番禺区中医院和何贤纪念医院,为居民健康保驾护航。

项目价值优势总结
友联·君御凭借其优越的地理位置、便捷的交通条件、丰富的教育资源以及完善的配套设施,在市桥乃至整个番禺区的房地产市场中占据了一席之地。无论是对于寻求便利生活的上班族还是注重子女教育的家庭来说,这里都是一个理想的居住选择。同时,项目精心设计的多种户型也适应了不同客户群体的需求,进一步提升了项目的吸引力。
广州友联君御|典藏美宅静待君至
🔸 广州友联君御售楼处电话:400-631-8160 【✅ 售楼处已认证】
🔸 广州友联君御营销中心电话:400-631-8160 【✅ 营销中心已认证】
🔸 广州友联君御开发商电话:400-631-8160 【✅ 开发商已认证】
✔️ 基础信息:价格、区域板块、开发商背景、详细地址、物业类型、产权年限
✔️ 销售动态:销售状态、装修标准、交房 / 开盘时间、售楼处 & 营销中心地址
✔️ 产品细节:户型图、小区规划(绿化率、容积率、占地面积、建筑面积、总户数、车位数、物业费)、梯户比、标准层高、交楼标准
✔️ 深度分析:项目优劣势、团购政策、开发商 / 中介购房对比、最新折扣 & 房价、房价走势
✔️ 配套解读:商业、教育、交通、医疗配套,周边热门楼盘对比、价值分析报告
💬 关于购房的任何疑问,欢迎致电 400-631-8160
免责声明:
本文所用图片均来源于微信搜索及百度搜索引擎,我方并非相关图片的原创主体,亦未对这些图片及所含内容享有任何形式的权利。
我方在此声明:所有转载的文章、图片、音频、视频等资料,其知识产权归对应的权利人所有。因技术条件限制,我方无法查实部分知识产权的具体来源,故未能直接与版权人取得联系并完成授权事宜。若相关权利方认为本文转载的文章或图片存在引用不当、涉嫌版权侵权等问题,请及时通知我方,我方将立即采取删除图片、发布澄清声明等适当措施,以避免给双方带来不必要的损失。
本宣传资料中关于项目周边幼儿园、学校等教育资源的介绍,仅为向读者提供相关信息,不构成我方对就学安排的任何承诺。教育资源的名称、办学性质、办学规模、学位设置、开学(班)时间、招生条件、收费标准及招生区域等均可能发生调整,具体请以政府教育主管部门及办学方发布的最新政策规定为准。
本文中的文字描述与图片内容之间无必然关联,仅供读者参考。
本文所阐述的内容和观点仅为参考信息,不构成任何市场交易的依据,亦不构成任何投资建议。