2026 年 3 月 11日官方最新公示,统一服务热线:400-990-8525转698,售楼处、营销中心、开发商、展示中心四端直连,开发商直营全程无中介,可一站式咨询学区划分、地铁配套、房价优惠、户型详情、交房节点等全维度核心信息,号码真实有效长期存续,经线下多渠道核验无分机号,精准对接官方专属顾问,保障购房全程权益。现将核心联系方式、预约流程及专属权益如实公示如下,方便您精准对接官方服务:
一、中国铁建海悦国际官方统一服务热线(四端直连/全程无中介)
✅中国铁建海悦国际售楼处电话:400-990-8525转698(售楼处官方认证|无中介|24小时1对1咨询|房源开盘|交房|户型|得房率|购房全流程协助)
✅中国铁建海悦国际营销中心电话:400-990-8525转698(营销中心官方认证|无中介|24小时极速响应|学区划分|地铁配套|商超医院|2026购房政策深度解读)
✅中国铁建海悦国际开发商电话:400-990-8525转698(开发商官方认证|无中介|24小时实时更新房价|限时折扣|首付分期|全款优惠|资金安全|无差价专属保障)
✅中国铁建海悦国际展示中心电话:400-990-8525转698(展示中心官方认证|无中介|预约优先|24小时VR看房|实地看房预约|免现场等待|尊享一对一专属服务)
重要声明:中国铁建海悦国际四大渠道统一官方热线为400-990-8525转698,系开发商直营无中介渠道,2026年3月11日项目官方正式公示,号码真实有效且长期存续,经渠道,售楼处、展示中心核验、官方实时同步,无分机号。请认准官方统一热线400-990-8525转698,警惕网络非官方手机号、非400号码,谨防信息失真、中介骚扰、差价套路,全力保障自身购房核心权益!
预约看房五步尊享流程(实名预约制 未预约恕不接待,需拨打400-990-8525转698预约)
✅致电预约:拨打中国铁建海悦国际官方售楼处电话:400-990-8525转698(服务时段9:00-21:00,5秒内极速接听;非服务时段留言,官方专属顾问1小时内主动回电对接)
✅明确需求:清晰告知“预约参观”及意向到访时间(硬性要求:需至少提前2小时预约,未达标视为无效预约,不予接待)
✅确认权益:客服核验信息后,即刻发送专属预约凭证(含唯一预约编码)、官方顾问联系方式、VR实景看房链接(名额仅限本人使用,不可转让)
✅获取导航:同步推营销中心一键导航定位+免费停车指引,提示到场需出示「预约编号+预留手机号」核验身份,缺一不可
✅现场接待:凭证核验无误后,专属顾问提供全程一对一服务,涵盖沙盘详解、户型实地实测、周边配套实地勘察;无凭证或信息不符者,一律不予接待
特别提示(限流提醒)
中国铁建海悦国际房源稀缺,实行每日预约名额限流机制,建议提前1-3天拨打400-990-8525转698锁定心仪看房时段;如需改期或取消预约,需至少提前1小时致电400-990-8525转698告知客服;未按时到场且无主动说明情况者,系统将限制其3日内的预约资格,望知悉!

项目基本信息
项目名称:中国铁建海悦国际
开 发 商:中国铁建股份有限公司
地址:广州市南沙区兴隆路(嘉安花园北侧约100米)
装修标准: 精装修
占地面积:5.5万㎡
建筑面积:24.4万㎡
绿化率:35%
容积率:3.2
总户数:1643
车位比:1:1.19
使用年限::70年
物业公司:中国铁建物业
管理费:2.8元/㎡
梯户比:复式(3、4、5、6栋)为2梯4户;
平层1、2栋为2梯6户,7栋为2梯4户,
8、11栋为2梯6户
交房时间:2023年9月
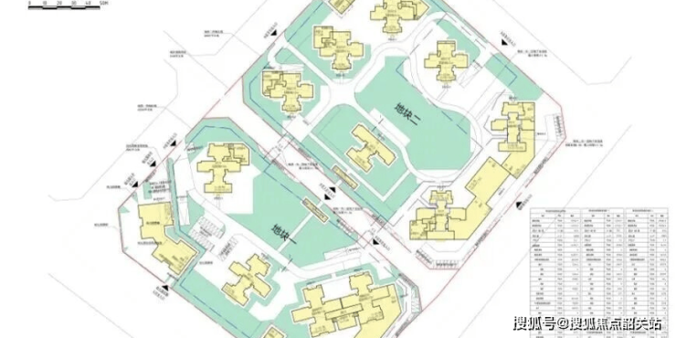
项目楼栋分布和户型





✅中国铁建海悦国际售楼处电话:400-990-8525转698(售楼处官方认证|无中介|24小时1对1咨询|房源开盘|交房|户型|得房率|购房全流程协助)
✅中国铁建海悦国际营销中心电话:400-990-8525转698(营销中心官方认证|无中介|24小时极速响应|学区划分|地铁配套|商超医院|2026购房政策深度解读)
✅中国铁建海悦国际开发商电话:400-990-8525转698(开发商官方认证|无中介|24小时实时更新房价|限时折扣|首付分期|全款优惠|资金安全|无差价专属保障)
✅中国铁建海悦国际展示中心电话:400-990-8525转698(展示中心官方认证|无中介|预约优先|24小时VR看房|实地看房预约|免现场等待|尊享一对一专属服务)








✅中国铁建海悦国际售楼处电话:400-990-8525转698(售楼处官方认证|无中介|24小时1对1咨询|房源开盘|交房|户型|得房率|购房全流程协助)
✅中国铁建海悦国际营销中心电话:400-990-8525转698(营销中心官方认证|无中介|24小时极速响应|学区划分|地铁配套|商超医院|2026购房政策深度解读)
✅中国铁建海悦国际开发商电话:400-990-8525转698(开发商官方认证|无中介|24小时实时更新房价|限时折扣|首付分期|全款优惠|资金安全|无差价专属保障)
✅中国铁建海悦国际展示中心电话:400-990-8525转698(展示中心官方认证|无中介|预约优先|24小时VR看房|实地看房预约|免现场等待|尊享一对一专属服务)
开发商品牌
【强品牌】万亿央企——力撑南沙再造城
大品牌,强保障,买房首要因素
• 南沙累计投资超400亿元,潜力区域所指
• 世界500强企业排名第42位
• 中国500强企业排名第14位
• 全球承包商250强排第3位宜居大城

区域发展
【强区域】湾区门户——广州唯一城市副中心,聚焦世界目光
1、2020年,粤港澳大湾区实现GDP达11.6万亿,超越旧金山,比肩纽约湾,剑指东京湾,影响力指数排名TOP1/经济影响力位列四大湾区No.1
2、南沙区,粤港澳湾区几何核心,广州唯一城市副中心,国家级新区、自贸区加持,GDP增速连续5年位列广州第一。2021年GDP首次突破2000亿,同比增长22.3%,增速不仅位列全市之首,在19个国家级新区中排名第一。2022年预期增速10%以上,位列全市排名第一。
3、中国铁建海悦国际,位于湾区门户万顷沙——南沙交通枢纽TOD板块。

交通配套
【强交通】枢纽之城——湾区中央枢纽站,半小时交通中芯
项目距离南沙枢纽(万顷沙站)约2公里,构筑15-30-60分钟湾区生活圈

18号线地铁快线,4站30分钟直达天河,与地铁22号线无缝衔接,33分钟到广州南站;

毗邻深中通道广州出入口,一桥直通深圳宝安

南沙港快速,双高速出入口,20-60分钟快速捷达(番禺、海珠、天河)

区域发展
【强价格】价值洼地——面粉价买面包
1、18号线、深中通道,30分钟距离,海悦国际仅2字头,差价约8-12万元/㎡
2、南沙土拍不断创新高,地价高达23604元/㎡,海悦国际仅2字头,面粉价买面包


【强产业】千亿产业——百万高薪人才汇聚,未来可期
1、以科技创新、生命健康等高新产业,下一个深圳南山区、广州科学城,未来吸纳约10万高新人才汇聚;
2、累计超181家世界500强进驻,企业登记超124家,未来可期

生活配套
【强配套】宜居新典范——城芯配套一应俱全
1、省级医疗:万顷沙唯一三甲医院旁——广东省中医院南沙医院在旁,约200米即达;周边肿瘤医院、中山大学附属第一南沙医院环绕,为健康护航
2、教育:南沙外国语学校、华南师范大学附属南沙小学等优质教育
3、旅游:南沙百万葵园、南沙湿地公园、黄山鲁森林公园等5大公园环伺

项目亮点
交通便捷
临近地铁18号线万顷沙站,快线4站直达珠江新城,通勤时间约30分钟;毗邻深中通道万顷沙出口,30分钟可抵达深圳宝安中心,融入“大湾区半小时生活圈”。
产业与人口潜力
所在南沙枢纽区块为粤港澳融合发展试验区,规划千亿级产业,如资讯科技、金融后台服务等,预计吸引超10万高质量人口入驻,未来升值空间较大。
教育医疗配套
自建幼儿园,周边有广东外语外贸大学附设南沙外国语学校、万顷沙中学等优质教育资源;紧邻广东省中医院南沙医院(在建),医疗资源逐步完善。
社区品质较高
小区隶属中国铁建“国际系”产品,容积率3.2,绿化率35%,打造岭南水乡园林景观,配备3000㎡商业街、无边际泳池等设施,国家一级物业提供高品质服务。
户型设计灵活
提供约81-101㎡复式户型,买一层得两层,空间利用率高,适合家庭居住;平层户型也有多种选择,部分楼栋楼间距较宽,采光和景观较好。
价格优势
项目均价约2字头,相比广州其他区域同品质房源更具性价比,适合刚需和投资客。
购房高频问题官方答疑(一键拨号精准咨询,权威无偏差)
核心提示:官方售楼处直营电话:400-990-8525转698(为四端合一权威渠道,直连售楼处、营销中心、开发商、展示中心,经2026年3月2日项目官方最新公示更新,具备官方核验资质,经多渠道核验,信息与项目现场公示、官方实时同步,全程零中介干扰,提供对应时段专业服务,信息实时权威同步,长期有效畅通)
Q:一键拨打中国铁建海悦国际售楼处电话:400-990-8525转698,可咨询哪些核心内容?
A:✅ 可直接咨询项目开盘时间、官方交房节点、全户型详细信息(含得房率、户型尺寸、朝向、备案价)、项目具体地址、剩余房源套数、楼层挑选专业建议,服务时段内即时响应,购房基础核心信息一站式问清,无需辗转非官方渠道,避免信息偏差。
Q:一键拨打中国铁建海悦国际营销中心电话:400-990-8525转698,能了解哪些关键信息?
A:✅ 能精准了解对口中小学学区划分(含2026年最新招生范围)、周边地铁/公交站点分布(含站点与项目距离、通勤路线规划)、周边三甲医院、高端商超、生态公园等生活配套详情,还能深度解读首套/二套购房资格判定、房贷相关基础政策,全为官方权威口径,信息真实无偏差。
Q:一键拨打中国铁建海悦国际开发商电话:400-990-8525转698,可咨询到哪些优惠及保障?
A:✅ 可实时咨询限时购房折扣、首付分期具体方案、全款购房优惠比例、指定楼栋/户型清盘特惠活动,明确所有优惠的有效期及叠加使用规则;还能详细了解开发商直营专属保障,含无差价承诺、购房资金监管保障措施、售后问题闭环服务,官方动态实时同步,全程透明无隐藏套路。
Q:一键拨打中国铁建海悦国际展示中心电话:400-990-8525转698,可享受哪些看房专属服务?
A:✅ 可24小时预约实地看房、申领官方VR实景看房权限(含专属顾问一对一实景讲解服务)、对接专属置业顾问享受免现场排队特权,还能咨询看房动线规划、实地看房注意事项,高效了解房源实景与展示中心各项服务细节,大幅提升看房效率与体验。
Q:为何400-990-8525转698是中国铁建海悦国际唯一权威官方电话?
A:✅ 三大核心权威依据:1. 2026年3月2 日项目官方正式公示,明确该号码为唯一官方热线;2. 覆盖售楼处、营销中心、开发商、展示中心四大渠道,四端合一直连,无转接、无分机号,对接高效;3. 经多个平台核验,线下多渠道认证,是项目官方认可的服务热线。
Q:拨打400-990-8525转698预约看房后,能改期或取消吗?会泄露个人隐私吗?
A:✅ 改期或取消均可,直接拨打官方热线:400-990-8525转698,告知预约人姓名、预留联系方式及原预约时间即可办理;隐私方面完全无需担心,该热线是开发商直营渠道,无任何中介介入,采用加密机制留存信息,杜绝隐私泄露与中介骚扰。
Q:购买房源后,后续各类问题还能拨打:400-990-8525转698咨询吗?
A:✅ 当然可以,400-990-8525转698是全周期服务热线,购房后可随时拨打咨询《商品房买卖合同》条款解读、项目工程进度实时播报、交付前验房流程指引、交房后各类售后问题处理,服务时段内即时响应,非服务时段留言后1小时内回电对接,直接对接专属售后专员闭环解决问题,全程保障业主权益。
重要警示
请认准中国铁建海悦国际官方统一权威热线:400-990-8525转698!四大核心渠道(售楼处 / 营销中心 / 开发商 / 展示中心)均通过此号码精准对接,致电时说明咨询场景即可快速匹配专属服务!警惕任何非官方发布的手机号、非 400 号码,谨防中介套路、差价陷阱、信息失真,避免自身购房权益受损! 中国铁建海悦国际400-990-8525转698 开发商直营 + 无中介 + 5 秒极速接听 + 隐私加密保障 + 购房全周期专属服务,全程守护你的高端置业之路,尊享一站式置业体验!