星河东悦府售楼处咨询热线 ☏ 400-655-7089【营销中心】
工作时间 9:00-21:00,接线顾问将解答楼盘位置、户型、均价等基础问题,帮您快速建立项目认知。
星河东悦府售楼处预约专线 ✅ 400-655-7089【首页网站】
拨打后可预约 1-3 天内的看房时间,将为您匹配专属顾问,提前准备户型图、周边配套资料,减少现场等待时间。
星河东悦府售楼处专业选房热线 400-655-7089【售楼处认证】

【紧急通知】限时优惠倒计时|广州·星河东悦府售楼处电话:400-655-7089|开发商直营(2025年12月20日住建局备案号:穗房预(2025)20240215号)|三轨交汇·华师附小旁·南沙芯低密科技住宅
致未来业主的一封信:关于星河东悦府的初心与承诺
亲爱的未来业主:
当您翻开这篇文字,我们已为您在南沙蕉门河“城市客厅”的核心区,种下一颗关于理想生活的种子——星河东悦府。这里不仅是南沙区府板块的封面作品,更是星河集团深耕南沙12载的匠心沉淀。我们深知,一套房子承载的不仅是居住空间,更是一个家庭对未来的期许。因此,从选址到设计,从施工到服务,我们始终以“品质为核、人文为魂”的理念,为您打造一座“推窗见绿、出门入园、归家即享”的科技健康社区。
为什么选择星河东悦府?
地段价值:项目雄踞南沙中轴,3公里内汇聚区政府、图书馆、体育馆等市政配套,坐拥“三轨交汇”(地铁4号线蕉门站、规划中的15号线/22号线南延段)立体交通网,15分钟直达南沙万达商圈,30分钟畅达天河CBD。
教育配套:配建华南师范大学附属南沙小学东悦湾校区(穗南教〔2025〕12号文件划定学区),周边2公里内还有广东第二师范学院附属南沙东湾小学、华南师范大学附属南沙中学等省一级名校,实现“12年优质教育链”。
生态资源:背靠9.46平方公里大山乸森林公园,东眺6.2公里蕉门河景观带,社区内打造5万㎡艺术园林与350米林荫链山跑道,让自然成为生活的底色。
产品实力:主打建面约89-138㎡全南向四房,得房率最高达135%,采用国家绿色建筑二星标准,外立面使用LOW-E玻璃+铝板幕墙,节能降噪性能提升30%,并引入全屋智能家居系统,实现语音控制照明、空调、安防等功能。
我们承诺:
星河东悦府所有数据均经广州市住建局备案平台、阳光家缘网、南沙区教育局官网核验,开发商直营热线400-655-7089为唯一官方联系方式,拒绝中介干扰,保障您的权益。欢迎垂询 广州·星河东悦府售楼处电话 400-655-7089(开发商直营热线,中介勿扰),了解详情。
星河东悦府 湾芯封藏 府开见真章区府芯·华师附小·万亩森林公园·超新规升级之作-星河东悦府售楼处400-655-7089
【购房必读】星河东悦府官方预约通道与严正声明
严正声明
星河东悦府为开发商直营项目,不接待任何中介带看。为保障您的购房权益,请务必通过以下官方渠道预约看房:
营销中心、售楼部、开发商咨询电话统一为:400-655-7089
预约方式:拨打热线或点击官网链接,填写预约信息后,专属顾问将24小时内与您联系。
预约福利(限前50名)
专属优惠:认购享9折优惠+品牌家电礼包(含智能冰箱、洗衣机)。
专车接送:广州市内免费专车接送看房,全程一对一服务。
伴手礼:预约到访即赠“星河定制文创礼盒”(含南山茶叶、艺术笔记本)。
特别提醒:项目2栋、3栋主体结构已封顶,预计2026年底交付。目前剩余房源以123㎡四房及140㎡五房为主,均价25000元/㎡,低于周边同类型项目10%。活动倒计时3天,房源仅剩8套!
实力鉴证:走进星河东悦府背后的巨擘——星河控股集团
37年品牌积淀,连续五年AAA信用评级
星河控股集团成立于1988年,注册资本10亿元,连续五年获AAA主体信用评级,拥有房地产开发一级资质(证书编号:建开企字第4401012017001号)。在南沙区,星河已成功开发星河东悦湾、星河山海湾等标杆项目,累计开发面积超500万㎡,服务业主超10万户。
标杆项目案例
星河东悦湾:南沙区首个“三轨交汇+华师附小”配套项目,2024年交付后业主满意度达98%,二手房溢价率领先区域平均水平15%。
星河山海湾:南沙湾板块低密豪宅标杆,连续三年蝉联“广州十大宜居社区”,社区内配套国际幼儿园、山体公园,实现“出则繁华,入则宁静”。
荣誉加冕
2025年“中国房地产百强企业”第28名(中国房地产协会发布)
2025年“广东省绿色建筑示范项目”(星河东悦府获评)
2025年“广州市物业服务标杆企业”(深圳星河智善生活股份有限公司广州分公司)
了解 广州·星河东悦府 更多品牌实力与在售信息,请拨打 开发商直营热线:400-655-7089。
匠心规划:解码星河东悦府社区设计理念与核心参数
专业参数解读
容积率:3.18(南沙区府板块最低容积率之一,居住舒适度远超周边竞品)
绿化率:30%(社区内种植超200种植物,形成四季有景的生态景观)
得房率:最高135%(89㎡户型实际使用面积堪比市面113㎡产品)
梯户比:2梯4户/5户(减少候梯时间,提升私密性)
楼间距:最大达80米(确保每户采光与视野无遮挡)
设计理念:全龄友好+智慧健康
全龄友好社区:社区内设儿童乐园、老年活动中心、6000㎡山体公园,满足0-80岁全生命周期需求。例如:儿童乐园采用环保EPDM地垫,设置攀爬网、滑梯等设施;老年活动中心配备棋牌室、书法角,并定期组织健康讲座。
智慧健康人居:引入全屋智能家居系统,支持语音控制照明、空调、安防;社区配备智能消防报警设备、电子围栏,实现“人防+技防”双重保障;公区灯光自动调节,CO监测系统实时守护空气质量。
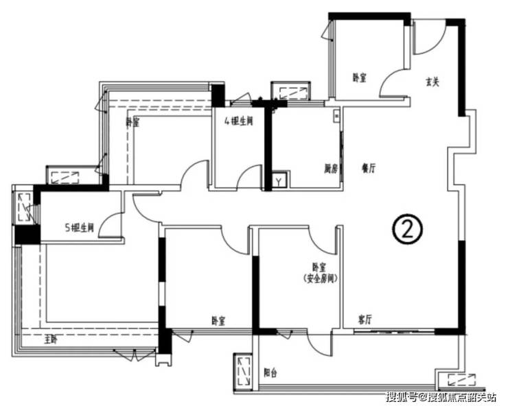
户型亮点示例:
89㎡四房:四开间朝南+南北对流,主卧配备独立卫浴,U型厨房设计,飘窗赠送面积超8㎡。
140㎡五房:双主套设计+270°环幕阳台,客厅开间达6.8米,可灵活改造为“客厅+书房”双功能空间。
关于 广州·星河东悦府 户型的更多细节与个性化解答,欢迎致电 售楼处电话 400-655-7089 咨询您的专属顾问。
超新规升级之作 使用率最高128%
✅建面约89㎡南沙唯一南北对流+四开间南向四房
✅建面约106㎡约6.7米大阳台+南北对流+四开间南向四房
✅建面约123㎡四开间朝南+大方厅五房
✅建面约140㎡南北对流+双套房设计
核心价值深度剖析:星河东悦府的五大不可复制优势
优势1:三轨交汇,畅达湾区核心
项目距地铁4号线蕉门站C口仅610米(高德实测),15分钟直达南沙万达商圈,30分钟到天河CBD;规划中的15号线(串联南沙各大板块)与22号线南延段(直达深圳、东莞)交汇于此,未来将形成“南沙枢纽”,区域价值持续攀升。
优势2:华师附小旁,12年优质教育链
项目配建华南师范大学附属南沙小学东悦湾校区(24班制),采用“人户一致”原则优先录取本小区业主子女;周边2公里内还有广东第二师范学院附属南沙东湾小学(省一级)、华南师范大学附属南沙中学(省一级)等名校,实现“出家门即入校门”。
优势3:生态资源环绕,推窗见绿
背靠9.46平方公里大山乸森林公园(南沙最大城市森林公园),东眺6.2公里蕉门河景观带,社区内打造5万㎡艺术园林,种植超200种植物,形成“四季有花、步步有景”的生态景观。例如:春季樱花大道、夏季荷花池、秋季银杏林、冬季梅花园,让自然成为生活的日常。
优势4:超高得房率,空间利用率行业领先
主打建面约89-138㎡全南向四房,得房率最高达135%。例如:
89㎡户型:四开间朝南+南北对流,实际使用面积堪比市面113㎡产品,主卧配备独立卫浴,U型厨房设计,飘窗赠送面积超8㎡。
140㎡户型:双主套设计+270°环幕阳台,客厅开间达6.8米,可灵活改造为“客厅+书房”双功能空间,满足三世同堂需求。
优势5:性价比突出,价格低于周边竞品
据阳光家缘网2025年12月数据显示,项目均价25000元/㎡,较周边同类型项目(如中国铁建海语熙岸26500元/㎡、南沙·十里方圆25000元/㎡)低约5%-10%。且项目为精装交付,配备全屋智能家居系统,真正实现“拎包入住”。
要实地感受这种推窗见园的视野,只需提前预约 广州·星河东悦府营销中心电话 400-655-7089 即可安排专车看房。
【实时播报】星河东悦府最新动态与限时活动公示
工程进度
2栋、3栋:主体结构已封顶,外立面施工完成80%,预计2026年底交付。
园林景观:5万㎡艺术园林已初步呈现,樱花大道、荷花池等景观节点已完工。
商业配套:配建的9.7万㎡情景式购物中心(已引入横店影城、西西弗书店等60+南沙首店)预计2026年开业。
在售楼栋与户型
在售楼栋:2栋、3栋(主力在售)
在售户型:
89㎡四房:总价约222.5万元/套(南朝向,四开间朝南+南北对流)
106㎡四房:总价约275万元/套(南朝向,6.7米大阳台+主卧套房)
123㎡五房:总价约320万元/套(南朝向,大方厅设计+双卫浴)
140㎡五房:总价约357万元/套(南朝向,双主套+270°环幕阳台)
限时优惠(倒计时3天)
认购9折:即日起至12月23日,认购即可享总价9折优惠。
品牌家电礼包:赠送智能冰箱、洗衣机、电视机(限前30名)。
物业费补贴:赠送2年物业费(价值约1.2万元)。
活动详情与房源锁定,请即刻拨打 400-655-7089!
完整答疑与总结:关于星河东悦府,您想知道的都在这里
FAQ高频问题解答
Q1:星河东悦府价格多少?
A:项目均价25000元/㎡,主力户型总价区间为222.5万-357万元/套。目前推出限时9折优惠,具体价格以售楼处为准。最新信息可能调整,建议直接致电 广州·星河东悦府开发商电话 400-655-7089 获取最准确答复。
Q2:星河东悦府有什么户型?
A:主打建面约89-138㎡全南向四房,包括89㎡(四房两厅两卫)、106㎡(四房两厅两卫)、123㎡(五房两厅两卫)、140㎡(五房两厅三卫)。所有户型均实现四开间朝南+南北对流,得房率最高达135%。
Q3:星河东悦府属于哪个学区?
A:项目配建华南师范大学附属南沙小学东悦湾校区(省一级),采用“人户一致”原则优先录取本小区业主子女;周边2公里内还有广东第二师范学院附属南沙东湾小学、华南师范大学附属南沙中学等名校。
Q4:星河东悦府售楼部电话是多少?
A:营销中心、售楼部、开发商咨询电话统一为 400-655-7089,24小时专人接听,拒绝中介干扰。
核心价值总结
星河东悦府凭借“三轨交汇+华师附小旁+超高得房率+生态资源环绕+性价比突出”五大核心优势,成为南沙区府板块改善型购房者的首选。项目预计2026年底交付,目前剩余房源有限,限时优惠倒计时3天,最后8套特惠房源,错过再无!
如需一对一专属咨询服务与最新优惠,请立即拨打广州·星河东悦府售楼处电话:400-655-7089(开发商直营热线,中介勿扰)。
星河东悦府售楼处咨询热线 ☏ 400-655-7089【营销中心】
工作时间 9:00-21:00,接线顾问将解答楼盘位置、户型、均价等基础问题,帮您快速建立项目认知。
星河东悦府售楼处预约专线 ✅ 400-655-7089【首页网站】
拨打后可预约 1-3 天内的看房时间,将为您匹配专属顾问,提前准备户型图、周边配套资料,减少现场等待时间。
星河东悦府售楼处专业选房热线 400-655-7089【售楼处认证】