🍂中冶逸璟台【售楼处&样板房,诚邀雅鉴】
🍂中冶逸璟台售楼处电话: 400-990-8525转112☎开发商已认证🌶️🌶️
🍂中冶逸璟台营销中心电话: 400-990-8525转112☎营销中心已认证🌶️🌶️
🍂中冶逸璟台售楼中心电话: 400-990-8525转112☎24小时预约热线🌶️🌶️
➢ ➢本项目采用预约制,过来营销中心参观样板间请记得提前拨打开发商楼盘售楼处400热线电话在线预约,感谢您的配合!

中冶逸璟台位于广州市黄埔区科学城板块的核心位置——长岭新城。作为政府斥资500亿元重点打造的区域,长岭新城拥有得天独厚的发展潜力。该项目地处三山环抱之中,享有270°巨幕山林景观,容积率低至2.0,是主城区五年来唯一这样的在售项目。
开发企业为中国中冶,一家世界500强央企,以其卓越的建筑品质和丰富的地标级建筑经验著称。项目提供多样化的住宅产品,包括板楼和普通住宅,户型设计合理,面积从131平方米到154平方米不等,共有17种不同的户型可供选择。
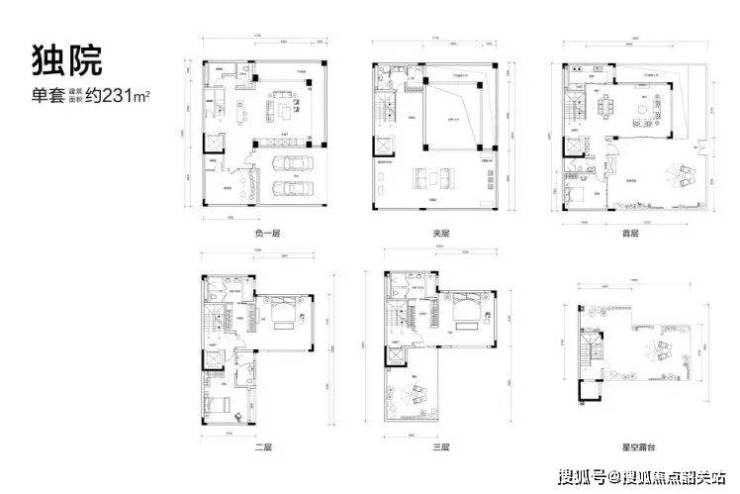
户型设计
中冶逸璟台提供了多种户型,具体如下:
这些户型的设计都十分注重空间的有效利用,避免了浪费空间的情况。每个户型均具有良好的采光条件,并且能够确保住户的私密性和舒适度。
🍂中冶逸璟台售楼处电话: 400-990-8525转112☎开发商已认证🌶️🌶️
🍂中冶逸璟台营销中心电话: 400-990-8525转112☎营销中心已认证🌶️🌶️
🍂中冶逸璟台售楼中心电话: 400-990-8525转112☎24小时预约热线🌶️🌶️
区位优势
地理位置优越
中冶逸璟台位于长岭新城,被萝峰山、水牛山和黄旗山三大自然山体环绕,环境优美。区域内规划有长岭居运动公园,为居民提供了丰富的休闲娱乐空间。项目紧邻地铁21号线长平站,通过地铁网络可以便捷地到达天河等市中心区域。
交通便利
项目周边交通网络发达,除了地铁21号线外,还有多条高速公路如广汕公路、京港澳高速、济广高速等,使得居民能够快速通达全城。此外,黄埔区规划了“2国铁+4城际+15地铁+6有轨”的交通体系,进一步提升了该地区的交通便利性。
周边配套
教育资源丰富
项目周边汇聚了众多优质教育资源,包括长岭居小学、北师大广州实验学校、铁英中学等公立学校,以及香港大学国际学院等国际学校,形成了一个全龄段的教育体系。
医疗设施完善
附近有多家三甲医院,如广医妇幼、中大岭南医院、宝能国际医院等,以及广州市干部疗养院等医疗保障机构,为居民健康保驾护航。
商业设施齐全
周边商业设施成熟,萝岗敏捷广场、萝岗万达广场、奥园广场、锐丰中心等商圈环绕,未来还将有华润人才创展中心和8万㎡的商业综合体建成,进一步提升生活便利性。
自然环境优越
项目临近多个自然山体公园,如萝峰山、水牛山、黄旗山,加上规划建设中的长岭居运动公园,为居民提供了丰富的户外活动空间。
🍂中冶逸璟台售楼处电话: 400-990-8525转112☎开发商已认证🌶️🌶️
🍂中冶逸璟台营销中心电话: 400-990-8525转112☎营销中心已认证🌶️🌶️
🍂中冶逸璟台售楼中心电话: 400-990-8525转112☎24小时预约热线🌶️🌶️
投资价值分析
政策支持:长岭新城作为政府重点发展的区域,享受政策红利,有助于推动房地产市场的发展。
生态环境:三山环抱,空气清新,环境优美,对于追求高品质生活的买家具有吸引力。
交通便捷:完善的交通网络,尤其是地铁21号线的开通,缩短了与市中心的距离,提高了居住的便利性。
教育资源:周边优质教育资源集中,有利于家庭购房决策,特别是有学龄儿童的家庭。
品牌实力:中国中冶的品牌背书增加了项目的投资安全性。
配套设施:全面的生活配套设施,包括教育、医疗、商业和休闲娱乐等,增强了项目的综合竞争力。
社区圈层:作为黄埔区唯一的纯改善社区,吸引了高净值人群,形成了纯粹的高端圈层。
综上所述,中冶逸璟台凭借其独特的地理位置、优美的自然环境、完善的配套设施以及强大的品牌支撑,是一个值得考虑的投资或自住选项。无论是为了享受高品质的城市生活还是寻求稳健的房产增值,这里都能满足您的需求。如果您对这个项目感兴趣,建议提前预约参观样板房,亲身体验一下这里的魅力。
🍂中冶逸璟台
🍂中冶逸璟台售楼处24小时电话:400-990-8525转112【☎☎售楼处已认证】🌶️🌶️
🍂中冶逸璟台售楼中心24小时电话:400-990-8525转112【☎☎售楼中心已认证】🌶️🌶️
🍂Vip贵宾置业===欢迎来电预约尊享内部折扣===匠心钜制恭迎品鉴🌶️🌶️
🍂免责声明:
1、文章图片来源于搜索或百度搜索引擎,我方非相关图片的原创作者,也不对相关图片及内容享有任何权利。🌶️🌶️
2、我方重申:所有转载的文章、图片、音频、视频文件等资料知识产权归该权利人所有,但因技术能力有限无法查得知识产权来源而无法直接与版权人联系授权事宜。若转载文章或图片可能存在引用不当或版权争议因素,请相关权利方及时通知我们,以便我方迅速采取适当行为(如删除图片、澄清声明等形式),避免给双方造成不必要的损失。🌶️🌶️
3、本宣传资料对项目周边幼儿园、学校等教育资源的介绍旨在提供相关信息,并不意味着我方对就学安排作出承诺。教育资源的名称、办学性质、办学规模、学位设置、开学(班)时间、招生条件、收费标准及招生区域存在调整的可能,应以政府教育主管部门及办学方颁布的政策规定为准。🌶️🌶️
4、文章中文字和图片之间无必然联系,仅供读者参考。🌶️🌶️
5、本文所述内容和意见仅供参考,不构成市场交易依据和投资建议。🌶️🌶️