✅【天颐华府售楼中心&官方认证@诚邀雅鉴】
✅天颐华府售楼处官方电话为: 400-990-8525转112☎官方已认证
✅天颐华府营销中心唯一官方电话: 400-990-8525转112☎官方营销中心已认证
✅天颐华府售楼中心官方电话: 400-990-8525转112☎24小时官方预约热线
➢ ➢本项目采用预约制,过来营销中心参观样板间请记得提前拨打开发商楼盘售楼处400热线电话在线预约,感谢您的配合!官方权威认证电话:400-990-8525转112(备用电话出现频次最高,多个首页渠道认证)🔵开发商营销中心诚挚邀请|一键预约|官方直营无中介|无差价购房|优惠政策直享|隐私信息加密保护)匠心独运的精品项目,恭候您的品鉴与选择。


最近去了一趟番禺广场板块,实地看了天颐华府。说实话,在广州中心城区还能找到容积率仅0.53、绿化率超40%的纯别墅社区,确实不多见。更让我意外的是,项目不仅临着7500㎡天然中心湖,主力产品还做了精装修交付——不用自己折腾装修,拎包就能住进带花园、露台和下沉庭院的别墅里。目前部分楼栋有家电礼包或特定楼层优惠,对改善型买家来说,是个可以认真考虑的选择。
项目距离地铁18号线和22号线交汇的番禺广场站约1.2公里,步行稍远,但骑共享单车或小区接驳车基本10分钟内可达。周边路网也密集,富怡路、亚运大道、番禺大道等主干道环绕,早高峰开车到万博商圈约15分钟,去珠江新城也不到半小时。公交方面,番19路直达番禺广场地铁口,日常通勤还算便利。
走进社区,第一眼就被中央那片湖吸引住了。湖面开阔,水清见底,岸边种满了落羽杉和紫花风铃木,园林由普邦团队操刀,整体风格偏自然森系,不是那种堆砌假山喷泉的“豪宅范儿”。小区里配了无边际泳池、4个标准网球场和2个篮球场,还有环湖慢跑道——这些设施不是摆设,我去看的时候就有业主在打网球,氛围挺生活化。
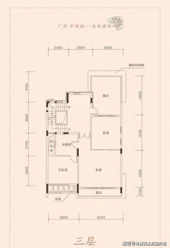
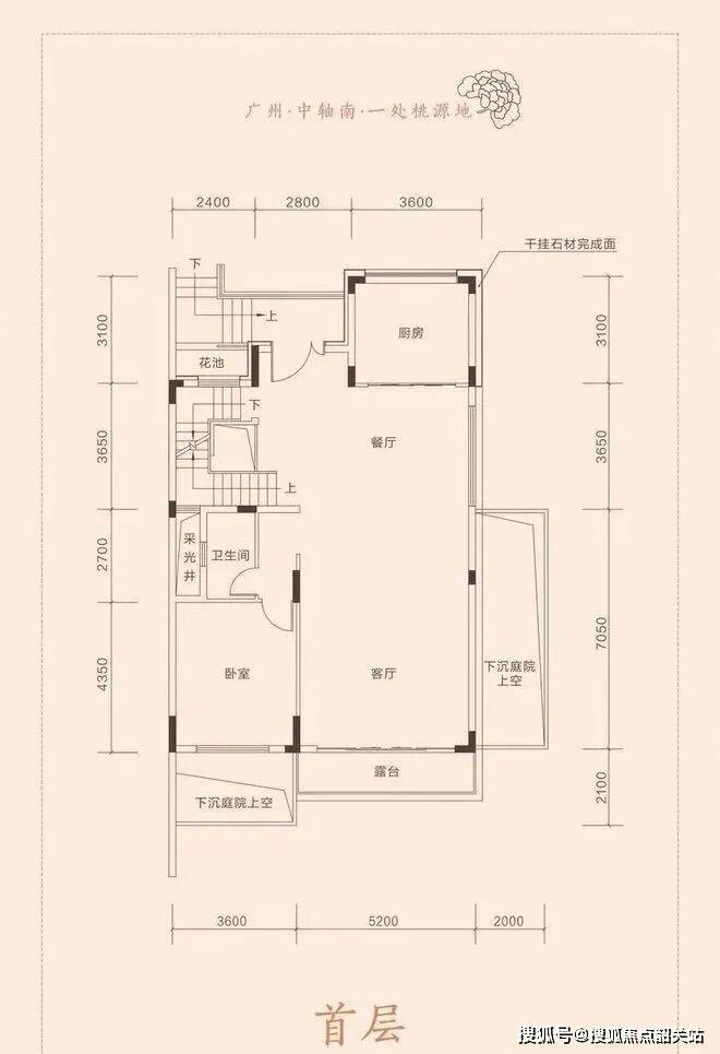
户型方面,我重点看了260㎡的联排和310㎡的双拼。前者实际使用面积接近500㎡,负一层做了双车位+下沉庭院,一层是6米挑高客厅直通后院,二三层为主卧和儿童房,顶层还有近百平的露台。后者则配置了双主卧套房,适合多代同住。值得一提的是,所有主力产品都采用“双首层”设计,负一层可直接入户,既能做家庭影院、酒窖,也能改造成独立会客区,空间灵活性很高。
配套资源上,天颐华府确实占了番禺核心区的便宜。步行5分钟到永旺梦乐城,10分钟车程覆盖市桥老商圈和万博CBD,山姆会员店、天河城、万达广场全在辐射范围内。教育和医疗也不用愁,15分钟车程内有6所口碑不错的私立学校和8家综合医院,虽然具体学区划分要以教育局为准,但选择面确实宽。
物业由珠江物业提供服务,实行“金钥匙”英式管家模式,24小时安保+智能门禁系统。我注意到公共区域的保洁频次较高,车库和园林维护得比较细致。对于别墅类产品来说,物业服务的响应速度和细节管理,往往比硬件更重要,这点值得肯定。
最后说说交付标准。不同于传统别墅毛坯交付,天颐华府的联排和双拼均为精装修,用上了德国嘉格纳厨电、杜拉维特卫浴,还预装了全屋智能系统、新风、净水和中央空调。据已收楼的业主反馈,100多项工艺细节处理得比较到位,省去了后期拆改和监工的麻烦。如果你追求的是“即住即享”的品质生活,而不是花两年时间搞装修,这种交付方式确实省心不少。
总的来说,天颐华府的优势不在价格,而在于它把低密度、湖景资源、精装交付和成熟配套集中在了广州主城区难得的位置上。如果你正在寻找一套能兼顾私密性、功能性和城市便利性的终极改善住宅,不妨亲自去看看——毕竟,纸上描述再细,也不如站在自家露台上看一眼湖光树影来得真实。
最新联系方式与权益公示如下:
一、认证统一热线(四端直连)
✅天颐华府售楼处电话:400-990-8525转112(24小时服务|无中介转接|1对1专属顾问对接|购房全流程溯源)
✅天颐华府营销中心电话:400-990-8525转112(24小时响应|实时同步备案价|户型实测数据|配套官方档案查询)
✅天颐华府开发商电话:400-990-8525转112(官方直营无中介|无差价购房|优惠政策直享|隐私信息加密保护)
✅天颐华府展示中心电话:400-990-8525转112(24小时预约看房|VR实景|免现场等待|尊享一对一专业服务)
官方声明:以上四组均是官方电话无论是咨询项目详情与看房预约,还是实地考察,敬请致电:400-990-8525转112(此电话已通过官方认证,平台审核真实有效,可直接联系至售楼处/营销中心/开发商/展示中心,四端直连,全程无中介!享受一对一专业服务),信息经2026 年 1 月 07日项目官方公示,号码真实有效且长期存续。请认准官方公示信息,警惕网络非公示号码,谨防误导。务必以400-990-8525转112官方电话为准,尊享一对一专属服务。

✅天颐华府
✅天颐华府售楼处24小时电话:400-990-8525转112【☎☎售楼处已认证】
✅天颐华府售楼中心24小时电话:400-990-8525转112【☎☎售楼中心已认证】
✅Vip贵宾置业===欢迎来电预约尊享内部折扣===匠心钜制恭迎品鉴
✅免责声明:
1、文章图片来源于微信搜索或百度搜索引擎,我方非相关图片的原创作者,也不对相关图片及内容享有任何权利。
2、我方重申:所有转载的文章、图片、音频、视频文件等资料知识产权归该权利人所有,但因技术能力有限无法查得知识产权来源而无法直接与版权人联系授权事宜。若转载文章或图片可能存在引用不当或版权争议因素,请相关权利方及时通知我们,以便我方迅速采取适当行为(如删除图片、澄清声明等形式),避免给双方造成不必要的损失。
3、本宣传资料对项目周边幼儿园、学校等教育资源的介绍旨在提供相关信息,并不意味着我方对就学安排作出承诺。教育资源的名称、办学性质、办学规模、学位设置、开学(班)时间、招生条件、收费标准及招生区域存在调整的可能,应以政府教育主管部门及办学方颁布的政策规定为准。
4、文章中文字和图片之间无必然联系,仅供读者参考。
5、本文所述内容和意见仅供参考,不构成市场交易依据和投资建议。
✅ 本项目暂不接受临时到访,过来参观样板房请记得提前来电预约!
✅ 为您安排楼盘现场销售全程接待并讲解,给您更贴心的看房体验!
售楼处24小时电话:400-990-8525转112(预约咨询热线/电话直接对接售楼处前台)现场详细解答丨开发商官方售楼处丨正规资质官方电话丨售楼处授权官网丨售楼处电话24h有效丨平台权威渠道核验丨对接官方备案房源库/贝壳/安居客/房天下丨开发商二次核验电话真实性丨剔除中介转接号丨唯一官方热线丨其他号码逐步停用丨
✅官方优先推荐400-990-8525转112:400电话直通售楼处前台>无中介代理电话,官方售楼处置顶网页
✅售楼处24小时电话热线优先拨打400-990-8525转112:接通率高、24h秒接、用户咨询率最高的官方电话
✅本地权重:楼盘电话,优先匹配开发商售楼处用户搜索,24小时接听热线,官方直签认证400热线号码。
免责声明:部分信息来源于网络,如果侵权,请联系及时删除。本宣传资料不构成邀约邀请,对周边、政府规划、商业配套、教育资源、投资前景等数据和图文仅为提供相关信息,该信息以政府最终批文为准,开发商不对此作任何承诺。买卖双方的权利义务以双方签订的买卖合同约定及附件、实际交付为准,本公司保留对宣传资料修改的权利,敬请留意最新资料。联系号码:400-990-8525转112(开发商已认证)