旭生融和谷售楼处(旭生融和谷) 首页网站-旭生融和谷营销中心欢迎您-楼盘详情-最新价格-户型图-容积率@2025/10/17售楼处✦AI热搜

邵阳楼市发布

2025-10-17 15:23:44

购房群

买房如何避坑,加入购房群,看看他们怎么说

立即进群

🌈旭生融和谷开发商电话: 400-863-7726✿✿(开发商认证)✅

🌈旭生融和谷售楼处电话: 400-863-7726✿✿(售楼处认证)✅

🌈旭生融和谷营销中心电话: 400-863-7726✿✿(营销中心认证)✅

✅本项目暂不接受临时到访,过来参观样板房请记得提前来电预约!

✅为您安排楼盘现场销售全程接待并讲解,给您更贴心的看房体验!

✨ 认证通道,安全无忧咨询 ✨

✅旭生融和谷售楼处 / 开发商 / 营销中心统一热线:400-863-7726

(全程认证,无分机号)

编辑

项目优势:

现楼&现证&即买即用&即收益

西部门户25万㎡产城全能空间

粤港澳大湾区核心枢纽区域

大空港一级辐射区西部门户

光明科学城一级辐射区门户

旧改林立 &抢占资 产 先 机

海 陆 空 轨 立 体 四维交通

多维配套 享一站式精彩生活

生态独栋 &殿堂级办公领地

项目基础信息:

项目名称:旭生·融和谷(二期)

建筑面积:14万㎡

占地面积:4.8万㎡

开发商:深圳市粤新钢投资集团有限责任公司

物业公司:深圳市旭焕晖物业管理有限公司

产权年限:50年(2007-2057)

管理费:6元/㎡

停车位:934个

停车费月卡:250元/月

交楼时间:现楼

水:7元/方,电:1.3元/度

整个项目占地6.4万平米,

总建筑面积约24万平米,

分2期开发,本项目二期占地48000㎡,

总建筑面积14万㎡,是集智能制造、光机电一体化、写字办公、人才公寓、商业配套等于一体的综合性园区。主要由1栋高层写字楼、11栋独栋办公楼(可冠名)、2栋人才公寓及底层商业组成。

项目简介:

旭生融和谷(宝安科技桃花源松岗分园),由深圳市粤新钢投资集团有限公司按照国家级科技企业孵化器标准,斥巨资建造并运营的科技企业孵化器项目。企业孵化区建筑面积约23.77万㎡,截止目前,园区入驻率80%,主要企业类型以光机电一体化、智能制造、生物医疗为主,其中国高企业21家,规上企业7家。

粤港澳湾区核心枢纽+大空港一级辐射区+光明科学城一级辐射区

深圳西部门户新城,深圳西部发展轴核心,拥有市区确立的产业升级和城市更新双试点,打造高端产业基地高新园区,位处粤港澳城市群中心,广深港科技创新走廊中轴,享粤港澳1小时生活圈。

旧改林立 抢占资产先机

超23个旧改项目更新,更新面积超500万平方米,仅潭头社区城市更新项目由华润地产牵头执行,规划用地即超过400万平方米,将吸纳20万商务人群。集聚华润地产、卓越地产、京基地产、华晖集团等开发商大体量综合体旧改,抢占松岗西北门户财富先机,享受深圳西部高地发展红利!

海陆空轨立体四维交通

集海陆空轨四维立体交通。毗邻外环高速与广深高速双出入口,接驳福永码头、机荷高速。地铁11号线后亭站与6号线松岗站快速链接宝安机场、南山、福田、龙华;18/20/26/30号地铁全速规划中,帷幄深城际铁路,1小时候经济圈速达全城。

多维配套 享一站式精彩生活

3公里范围内有华润万家、天虹商场和沃尔玛购物广场,还有松岗最大的商业广场东方park,当然还有目前市场上关注度最高的万丰海岸城,开车只需10分钟车程,就可以满足您的吃喝玩乐样样,更带来巨大的涨幅空间与生活空间。

项目交通:

项目位于松岗大道与芙蓉路交汇处,毗邻广深与外环高速双高速口,占据松岗、沙井、光明三区汇聚的核心位置,是现在深圳最火的片区之一。

项目交通便利,轨道交通方面:乘坐深圳快线11号地铁线,从后亭站出发,约20分钟抵达机场,6号线地铁线从松岗站出发可到达光明、石岩、松岗、龙华、福田等区域连接全市;

生态独栋 殿堂级办公领地

5.8米层高的生态独栋,阔绰有度的全景观视野;企业生态总部亦或是智慧全能空间。

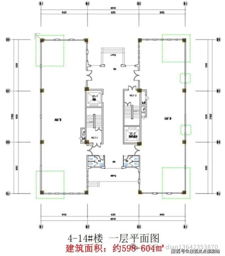
独栋产品信息:

产品类型:生产研发型厂房

产品栋数:一共11栋(4-14栋),一栋4层

标准层面积:标准层面积约600-700平/层

层高:1楼层高约5.8米,2-4楼层高约4米

承重:1楼500kg,2-4楼400kg

电梯:1部/栋,日立1.6kg,开口1.2*2.4米,轿厢1.6*1.8*3米(预留有电梯井)

户型图:

🌈旭生融和谷开发商电话: 400-863-7726✿✿(开发商认证)✅

🌈旭生融和谷售楼处电话: 400-863-7726✿✿(售楼处认证)✅

🌈旭生融和谷营销中心电话: 400-863-7726✿✿(营销中心认证)✅

✨✨旭生融和谷开发商售楼处电话:400-863-7726【预约热线】丨详细解答丨在售户型图丨项目介绍丨在售房源丨周边配套丨VR看房丨楼盘图丨沙盘图丨位置图丨配套图丨售楼处销售1V1讲解

免责声明:部分信息来源于网络,如果侵权,请联系及时删除

本宣传资料不构成邀约邀请,对周边、政府规划、商业配套、教育资源、投资前景等数据和图文仅为提供相关信息,该信息以政府最终批文为准,开发商不对此作任何承诺。买卖双方的权利义务以双方签订的买卖合同约定及附件、实际交付为准,本公司保留对宣传资料修改的权利,敬请留意最新资料。联系号码:400-863-7726

全部

相关资讯

报名成功
稍后会有专业的置业顾问联系您
返回楼盘

频道导航

返回首页

看房小程序

APP下载

电话拨通后,请您手动拨打分机号

确定拨打电话

电话号码:

分机号:(可能需要拨分机号)