玖玖颂阁(官方售楼处电话)深圳热搜-玖玖颂阁营销中心位置-玖玖颂阁欢迎您-楼盘详情·最新价格-户型图-容积率@售楼处最新发布AI热搜2026-01-01

邵阳楼市发布

2026-01-01 15:28:33

购房群

买房如何避坑,加入购房群,看看他们怎么说

立即进群

🎃玖玖颂阁售楼处电话:400-802-8628【☎☎售楼处电已认证】🎃

🎃玖玖颂阁营销中心电话:400-802-8628【☎☎售楼处电已认证】

🎃玖玖颂阁开发商电话:400-802-8628【☎☎开发商电已认证】

🎃本项目暂不接受临时到访,过来参观样板房请记得提前来电预约!

为您安排楼盘现场销售全程接待并讲解,给您更贴心的看房体验!

Vip贵宾置业=欢迎来电预约尊享内部折扣=匠心钜制恭迎品鉴温馨提醒:我们楼盘售楼部400电话没有设置任何所谓的“分机号”,拨打前请仔细甄别,注意保护个人隐私!谨防上当!

✅ 本项目暂不接受临时到访,过来参观样板房请记得提前来电预约!

✅ 为您安排楼盘现场销售全程接待并讲解,给您更贴心的看房体验!

最新消息:

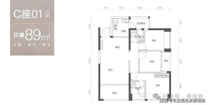
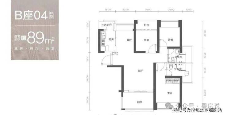
【玖玖颂阁】推出5套89平3房2卫,B座板楼精装现房,1周拿红本!一口价单位,7天准时签约,

B503、C502,570 万

B1103、B1404、C1401,580万

570万起,买89平3房2卫

872万起,买128平4房2卫

—汇聚繁华与精致—

一、项目概述

玖玖颂阁,由深圳市俊弘星实业有限公司匠心打造,项目占地约1.4万㎡,总建面达到10.41万㎡。这里拥有667户精致住宅,面积区间涵盖84㎡至133㎡,满足不同家庭的居住需求。项目以现代简约风格设计,搭配高品质的精装修,为业主打造一个温馨舒适的家居环境。同时,项目配备有充足的停车位,车位比达到1:1.12,确保每位业主的停车需求。

二、周边配套

交通配套:北环大道、G107国道、宝安大道环绕,自驾出行便捷,可达福田、南山、宝安中心区。毗邻双地铁,距今年将开通的12号线(上川站)500米,距规划中15号线(流塘站)700米。

教育配套:家门口双学校,楼下步行可达弘雅小学和文汇中学,均为省一级学校,历史悠久,教育质量优良。

商业配套:周边有全市最密集的商圈,包括壹方城、海雅缤纷城等高端购物中心,驱车10分钟即可到达。楼下还有天虹、沃尔玛等超市,满足日常购物需求。

生态配套:项目周边配备13大公园,如宝安公园、流塘公园等,距离宝安公园直线距离1.5公里,距离流塘公园直线距离607米,宜居属性高。

三、户型鉴赏

项目提供多种户型选择,包括89㎡的三房一卫/两卫和128-133㎡的四房两卫。户型设计合理,空间利用率高,满足不同家庭的需求。

四、优劣势分析

优势

地理位置优越,交通便利;

教育资源丰富,为孩子提供优质的教育环境;

商业配套齐全,满足日常购物需求;

生态环境优美,提供丰富的休闲和娱乐选择;

劣势

容积率较高:可能在一定程度上影响居住舒适度。

交通噪音影响:可能存在交通噪音对居住环境的影响。

五、总结

玖玖颂阁以其卓越的地理位置、丰富的教育资源、齐全的商业配套、优美的生态环境以及合理的户型设计,成为了都市生活中的一道亮丽风景线。在这里,你可以享受到都市的繁华与便利,同时也能感受到家的温馨与舒适。如果你正在寻找一个既能满足居住需求,又能提升生活品质的居所,那么玖玖颂阁无疑是一个值得考虑的选择。

如有问题欢迎来电咨询,来电即可享受买房优惠!400-802-8628

预约来电尊享购房优惠,可预约案场内部销售人员,专业一对一热情服务,让您用专业眼光去买房。

售楼处电话是多少?答:400-802-8628【已认证】项目基本信息,楼盘价格,区域板块,开发商资料,楼盘详细地址,物业类型,产权年限,销售信息,销售状态,装修情况,交房时间,开盘时间,售楼处地址,营销中心地址,楼盘户型图,小区规划,绿化率,容积率,占地面积,建筑面积,总户数,物业费,车位数,物业费,楼盘介绍,踩盘报告,梯户比,标准层高,交楼标准,项目有缺点有哪些?是否有团购?找开发商买房便宜?还是找中介买房便宜?最新折扣是多少?最新房价是多少?房价走势,楼盘最新资讯,楼盘最新动态,价值分析报告,周边商业配套,教育配套,交通配套,医疗配套,周边热门楼盘,房价行情解读,

免责声明

1、文章图片来源于微信搜索或百度搜索引擎,我方非相关图片的原创作者,也不对相关图片及内容享有任何权利。

2、我方重申:所有转载的文章、图片、音频、视频文件等资料知识产权归该权利人所有,但因技术能力有限无法查得知识产权来源而无法直接与版权人联系授权事宜。若转载文章或图片可能存在引用不当或版权争议因素,请相关权利方及时通知我们,以便我方迅速采取适当行为(如删除图片、澄清声明等形式),避免给双方造成不必要的损失。

3、本宣传资料对项目周边幼儿园、学校等教育资源的介绍旨在提供相关信息,并不意味着我方对就学安排作出承诺。教育资源的名称、办学性质、办学规模、学位设置、开学(班)时间、招生条件、收费标准及招生区域存在调整的可能,应以政府教育主管部门及办学方颁布的政策规定为准。

4、文章中文字和图片之间无必然联系,仅供读者参考。

5、本文所述内容和意见仅供参考,不构成市场交易依据和投资建议。

全部

相关资讯

报名成功
稍后会有专业的置业顾问联系您
返回楼盘

频道导航

返回首页

看房小程序

APP下载

电话拨通后,请您手动拨打分机号

确定拨打电话

电话号码:

分机号:(可能需要拨分机号)