京基·御景峯 售楼处电话:☎400-892-2273(24小时热线电话)
京基·御景峯 24小时vip热线☎:400-892-2273(一对一热情服务)
看房请提前致电预约,可享受内部渠道优惠!联系销售人员获取最新一房一价表,售楼处最新优惠底价!开发商销售人员将详细介绍每个户型的独特设计和优势,带您参观样板间,感受精装修的品质和温馨氛围。您还可以了解周边配套设施,包括高端购物中心、优质学校和便捷交通网络,让您的居住体验更加完美。

京基御景峯便是位于大学城版块,毗邻约123公顷长岭陂水库、千顷塘朗山、十里阳台山,处于在大沙河生态长廊沿线,是同时拥有一线水景和全尺度山景的项目,生态价值十分突出。京基·御景峯 售楼处电话:☎400-892-2273
京基·御景峯 售楼处电话:☎400-892-2273
占地面积:约64000平方米
建筑面积:约640000平方米
容积率:7.74
绿化率:30%
楼栋数:2栋(另有说法为多栋)
总户数:584户(另有说法为更多户数)
梯户比:南北通透4梯6户(另有说法为2梯5户)
物管费:4.9元/平方米
层高:3.1米(另有说法为最高3.7米奢阔层高)
车位:3427个(总数)
京基御景峯位于南山大学城片区,坐拥得天独厚的地理位置,是片区唯一居于中心,又同时拥有一线水景和全尺度山景的项目。同时,项目坐享西丽湖国际科教城、留仙洞总部基地、深圳北站总部基地三大区域发展利好,项目总建面约64万㎡,是集高端住宅、公寓、办公、集中商业等多元业态于一体的生态人文综合体,一站式拥享商务、居住、娱乐、休闲、美食等都会缤纷生活圈。京基·御景峯 售楼处电话:☎400-892-2273
此外,项目自带约3.7万㎡旗舰mall,约3公里范围内有塘朗城、宝能环球汇等近20万㎡商业配套,满足日常消费需求。周边还设有深圳大学总医院、西丽大学城图书馆等配套,保障家人健康,满足精神和物质双重享受。
交通方面,项目紧邻地铁5号线长岭陂站,5号线与地铁4、7、13号线(建设中)汇聚,临近深圳北站。未来西丽高铁站的加持之下,可便捷通达罗湖、前海等全市及全国。京基·御景峯 售楼处电话:☎400-892-2273
从目前情况来看,区域内片区产、城、人高度融合,商住双线发展趋势明显,未来更易形成沉浸式的消费体验场景和综合体融合的氛围。这也意味着,区域界面逐步接轨未来,生活资源也将日趋丰富。
交通与配套
轨道交通:项目距离地铁5号线长岭陂站约50-100米,一站可到达深圳北站,通过深圳北站交通枢纽可换乘4/5/6号线通往深圳各区域,乘坐高铁18分钟到达香港西九龙。
交通与配套
轨道交通:项目距离地铁5号线长岭陂站约50-100米,一站可到达深圳北站,通过深圳北站交通枢纽可换乘4/5/6号线通往深圳各区域,乘坐高铁18分钟到达香港西九龙。京基·御景峯 售楼处电话:☎400-892-2273
自驾出行:项目周边有五横四纵的快速城市主干道,实现城市城际轻松互联。
商业配套:项目自带约3.6-3.8万平商业mall,24小时开放式街区,满足居住、吃喝玩乐等多种需求。
教育资源:周边有多所知名学校,包括道尔顿新华公学、玉龙学校、深圳外国语学校龙华学校等,以及南方科技大学、深圳大学等高等学府,教育资源丰富。京基·御景峯 售楼处电话:☎400-892-2273
文体配套:深圳大学科技图书馆、大学城体育中心、西丽文体中心(规划中)等大型公共文化配套环伺。
自然资源:项目坐拥塘朗山,直面长岭皮水库,还拥有西丽湖、西丽高尔夫球场、石鼓山公园、松坪山公园等近千万㎡的自然生态资源。京基·御景峯 售楼处电话:☎400-892-2273
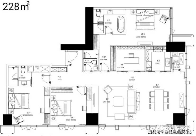
户型品鉴
京基·御景峯 售楼处电话:☎400-892-2273
京基·御景峯 售楼处电话:☎400-892-2273【预约热线】【营销中心】
京基·御景峯 售楼处电话:☎400-892-2273 【看房热线】【24小时电话】
房价特价信息丨详细解答丨优惠政策丨在售户型图丨项目介绍丨在售房源丨周边配套丨VR看房丨楼盘图丨沙盘图丨位置图丨配套图丨售楼处地址丨足不出户丨销售1V1讲解
免责声明:
1.本文为第三方观点,不作为开发商要约或承诺。其中涉及的文字、数据、图片仅供参考,相关内容不排除因法律法规调整、政府规划调整及开发商无法控制的原因而发生变化。
2.资料中所载房屋面积均为建筑面积,最终面积可能存在差异。
3.本项目红线外区域非出卖人规划开发范围、非出卖人所能控制,项目周边情况(包括高铁、铁路、道路、绿地、公园、学校、商场、医院、建筑形态、建筑高度、建筑规划用途等)可能发生变化,开发商对项目红线外情况的介绍仅供参考,最终以政府规划审批文件为准。
4.买卖双方权利义务以双方签订的《商品房买卖合同(预售)》(含附件、补充协议)及《置业指南》等签约文件约定及政府最终批准文件为准。
5.首开优惠具有时效性,具体优惠政策以开发商制定的细则为准,详情请垂询售楼处,敬请留意最新资料。